查看完整案例


收藏

下载
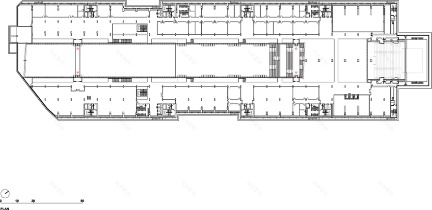
飞是到达首尔Ewha大学新建筑海岸的最佳途径(始建于1886年,Ewhaa欢迎22.000名女学生,并被评为世界上最好的大学之一),这是2003年举办的一场国际建筑竞赛的结果,并于2008年4月29日揭幕。当时,首尔大学的中心地带不仅有一幅建筑作品,还包括一幅建筑作品。在Acampus山谷,自然,运动场,活动地点和教育建筑混合,相互跟随。一条长的沥青带,一端由跑道勾画,完全被自然包围。在梨树和土栖植物统治的地方,排列着自然。黑色的沥青,红色的赛道,绿色的自然,终于出现了白茫茫的山谷。一个山谷,是勇敢地画在地面上,沿着缓缓的斜坡滑行。在山谷的另一端,斜坡变成了胡格斯道,必要时可以用作露天圆形剧场。在山谷的心脏处,有一种梦幻般的浸没。与室外世界相反,一个微妙而宁静的宇宙突然出现了。教室和图书馆,竞技场和礼堂,商店和运动…所有的事情都是在没有任何自然光线的情况下进行的。Perrault容易被掩埋、挖掘和嵌套的地方(巴黎的法国国家图书馆、柏林的Velodromee和奥林匹克游泳池,都意识到,日本关西图书馆的研究和西班牙圣地亚哥的文化中心(…)从物理上讲,佩罗特渴望占领领土,将建筑与地面混为一谈,渴望利用“概念和物质必须与另一种概念相互搏斗”的观念。在埃哈大学,佩罗又投入了一次行动:单词(概念、抽象、几何学、策略、张力、融合、自由、简单、证据…),原理(物理,力学,维数…)和承诺(城市问题、创造地点而不仅仅是建筑、拒绝形式主义和建筑…消失)随着首尔Ewha女子大学的落成,Dominique Perrault证实了他的国际活动(2008年5月在巴塞罗那的ME旅馆,2008年5月的成就,2009年5月在米兰的NH-Fieramilano酒店,2008年12月在卢森堡的欧洲共同体法院,2009年5月在马德里的Tennis体育场,
Firm Dominique Perrault Architecte
YEAR 2008
keywords:architecture, architecture news, interiors, interior design, portfolio, spec, brands, marketplace, products Ewha Womans University
关键词:建筑,建筑新闻,室内设计,组合,规格,品牌,市场,Ewha妇女大学
客服
消息
收藏
下载
最近






































































































