查看完整案例


收藏

下载

翻译
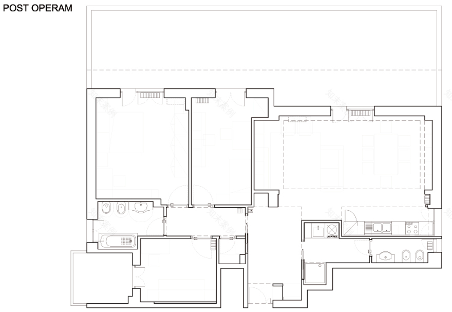
[apr-set ’19] Questo appartamento è sito in una strada relativamente tranquilla di Torrevecchia, un quartiere a nord-ovest della capitale. Esso era stato da poco acquistato da una coppia di architetti e insegnanti con i quali ho curato amichevolmente la progettazione e la direzione lavori. L’intervento si è concentrato principalmente nella creazione del grande ambiente della cucina-soggiorno-pranzo, che è stato variamente e attentamente controsoffittato, attraverso lo studio dettagliato di proporzioni e simmetrie; inoltre l’applicazione studiata di leggere tonalità cromatiche accanto al bianco hanno permesso di differenziare delicatamente i volumi. L’ingresso introduce alle geometrie e alla luminosità del soggiorno, attraverso le concavità di una nicchia e il gioco del controsoffitto ribassato, che affiora in un grande varco asimmetrico dell’ingresso. Il movimento delle pareti del bagno di servizio e dell’antibagno delimita la zona cottura. Nel corridoio controsoffittato della zona notte si scorgono le tonalità cromatiche più forti delle tre stanze da letto. Anche l’illuminazione e l’arredo sono stati attentamente studiati: l’uso delle luci e del nero, del rosso e del rovere sottolineano le articolazioni spaziali e le simmetrie. Un parquet di rovere naturale unifica tutti gli ambienti della casa. L’impianto elettrico e termico sono stati totalmente rifatti. La progettazione è iniziata ad aprile, i lavori affidati a Grigio costruzioni sono iniziati a luglio e finiti a settembre del 2019.
客服
消息
收藏
下载
最近











