查看完整案例


收藏

下载

翻译
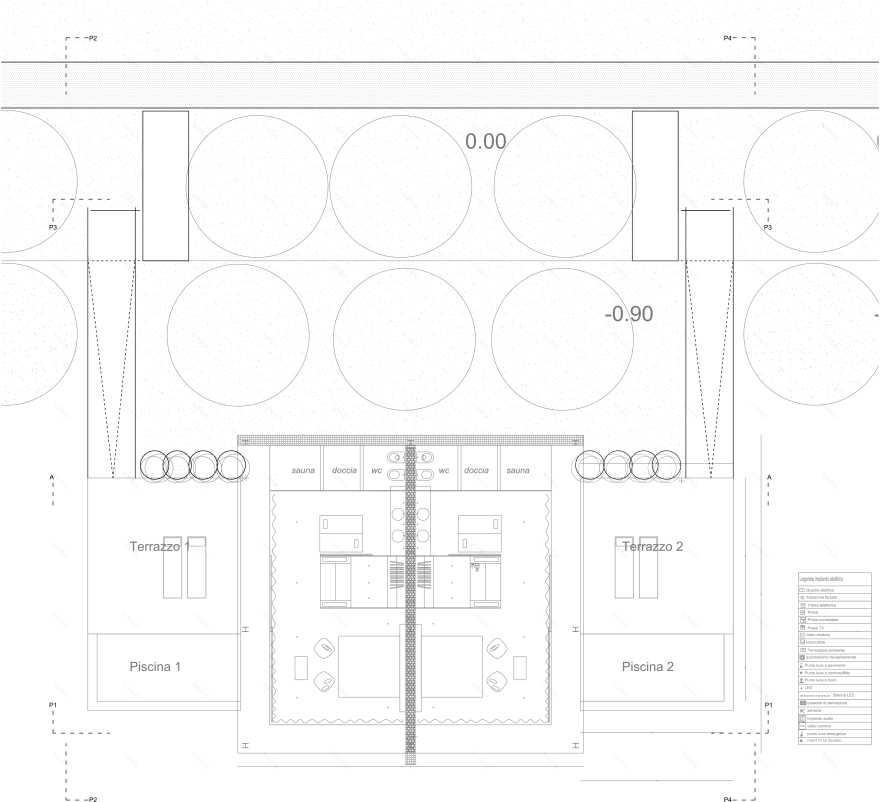
l progetto tende ad esaltare il preesistente assecondando lo spirito del luogo, una casa di campagna. L’intervento architettonico è molto silenzioso ed è tutto giocato sui contrasti Le tracce del passato, gli intonaci polverosi, le murature a secco in pietra lavica, i legni del palmento sono in equilibrio con volumi puri e razionali che, aggiunti per assecondare le esigenze contemporanee, rendono, allo stesso tempo, questi luoghi ancora vivi. L’obiettivo era fare in modo che in ogni momento, in ogni punto della struttura e ad ogni sguardo le aggiunte contemporanee fossero perfettamente riconoscibili, per permettere al visitatore di “sottrarle” immediatamente e poter cogliere l’essenza di quei luoghi. Il leitmotiv che ha guidato il progetto è stata la percezione: tutto deve essere percepito come 100 anni fa e tutti devono sentirsi inebriati dalla natura circostante. Questo concetto è stato declinato in ogni ambiente. Le camere in cantina, per esempio: rimane immutata la percezione dell’unico grande spazio che una volta conteneva le botti in legno, pur essendo ben distinguibili i volumi bianchi che racchiudono al loro interno le camere da letto. Le stanze sono state progettate con l’intenzione di sorprendere il visitatore, non con decorazioni o effetti speciali, ma nella distribuzione degli spazi molto fluidi e senza distinzioni nette tra gli ambienti. Questa precisa volontà progettuale è stata suggerita dall’analisi del comportamento del viaggiatore che, in brevissimo tempo, deve far suo uno spazio tutto nuovo. Il candore degli ambienti, protagonista assoluto di ogni stanza e voluto per esaltare il paesaggio che si impone con la forza della bellezza che lo caratterizza, è una scelta progettuale che si declina anche sugli arredi, tutti “sartoriali” e site specific, per il massimo comfort degli ospiti. Doghe in legno di rovere per i pavimenti, grandi lastre di pietra lavica per i rivestimenti, accompagnati da elementi di design contemporaneo, sono le uniche addizioni a questi spazi che raccontano la storia. Lasciarsi avvolgere dalla natura, da suoni primordiali e profondi, da odori densi e sfuggenti, significa allontanarsi dal quotidiano e tuffarsi in una dimensione di energia positiva. Zash è la natura profonda di un suono, la sua restituzione verbale, quello dell’aria tra le foglie, dell’irruzione di un gesto nei suoi movimenti fluidi, è un suono come i tanti infiniti suoni che solo il vivere in campagna permette di percepire e godere. Ma soprattutto è riscoprire il tempo di vivere un’altra dimensione, fatta di gesti lentu odori intensi visioni inedite e voci misteriose: ZASH..SPLASH..CUCU’.. GRAG..CIUF..DRUUM..PLUFF Questo è il mondo Zash, un COUNTRY BOUTIQUE HOTEL, dove i frammenti storici incontrano il gusto contemporaneo, in un progetto "elegantemente silenzioso", per far emergere la fisicità della natura, rispettare le tracce del passato e assecondare le esigenze dei viaggiatori. Un luogo raffinato negli ambienti, rurale nel contesto, vitale per l'anima. Poche camere per un soggiorno LIMITED EDITION LIVING. Un luogo dove la natura privilegia la trasparenza, poiché grazie alle ampie finestre che si affacciano sulla suggestiva campagna siciliana, si offre agli ospiti la possibilità di vivere una dimensione dove nell’alternanza di luci e ombre si definiscono gli spazi del riposo.
Il progetto tende ad esaltare il preesistente assecondando lo spirito del luogo, una casa di campagna. L’intervento architettonico è molto silenzioso ed è tutto giocato sui contrasti Le tracce del passato, gli intonaci polverosi, le murature a secco in pietra lavica, i legni del palmento sono in equilibrio con volumi puri e razionali che, aggiunti per assecondare le esigenze contemporanee, rendono, allo stesso tempo, questi luoghi ancora vivi. L’obiettivo era fare in modo che in ogni momento, in ogni punto della struttura e ad ogni sguardo le aggiunte contemporanee fossero perfettamente riconoscibili, per permettere al visitatore di “sottrarle” immediatamente e poter cogliere l’essenza di quei luoghi. Il leitmotiv che ha guidato il progetto è stata la percezione: tutto deve essere percepito come 100 anni fa e tutti devono sentirsi inebriati dalla natura circostante. Questo concetto è stato declinato in ogni ambiente. Le camere in cantina, per esempio: rimane immutata la percezione dell’unico grande spazio che una volta conteneva le botti in legno, pur essendo ben distinguibili i volumi bianchi che racchiudono al loro interno le camere da letto. Le stanze sono state progettate con l’intenzione di sorprendere il visitatore, non con decorazioni o effetti speciali, ma nella distribuzione degli spazi molto fluidi e senza distinzioni nette tra gli ambienti. Questa precisa volontà progettuale è stata suggerita dall’analisi del comportamento del viaggiatore che, in brevissimo tempo, deve far suo uno spazio tutto nuovo. Il candore degli ambienti, protagonista assoluto di ogni stanza e voluto per esaltare il paesaggio che si impone con la forza della bellezza che lo caratterizza, è una scelta progettuale che si declina anche sugli arredi, tutti “sartoriali” e site specific, per il massimo comfort degli ospiti. Doghe in legno di rovere per i pavimenti, grandi lastre di pietra lavica per i rivestimenti, accompagnati da elementi di design contemporaneo, sono le uniche addizioni a questi spazi che raccontano la storia.
客服
消息
收藏
下载
最近















































