查看完整案例


收藏

下载
“工作生活帮助”是一个4,000平方米的特殊工作场所,为那些希望在赚取生活工资的同时工作的发展和/或智力残疾者提供帮助。“Lebenshilfe”(救生)客户和发起人,是一个非营利性组织,负责培训和监督工人及其生产的产品。这些人并不总是能够融入一个“正常”的工作环境,有时是由于他们的劳动限制,但也常常是因为他们在各种空间条件或气氛中更容易受到情绪动荡的影响。
特别重要的是,设计一个复杂的,促进移动方便,是抚慰,并赋予集中宁静的气氛。
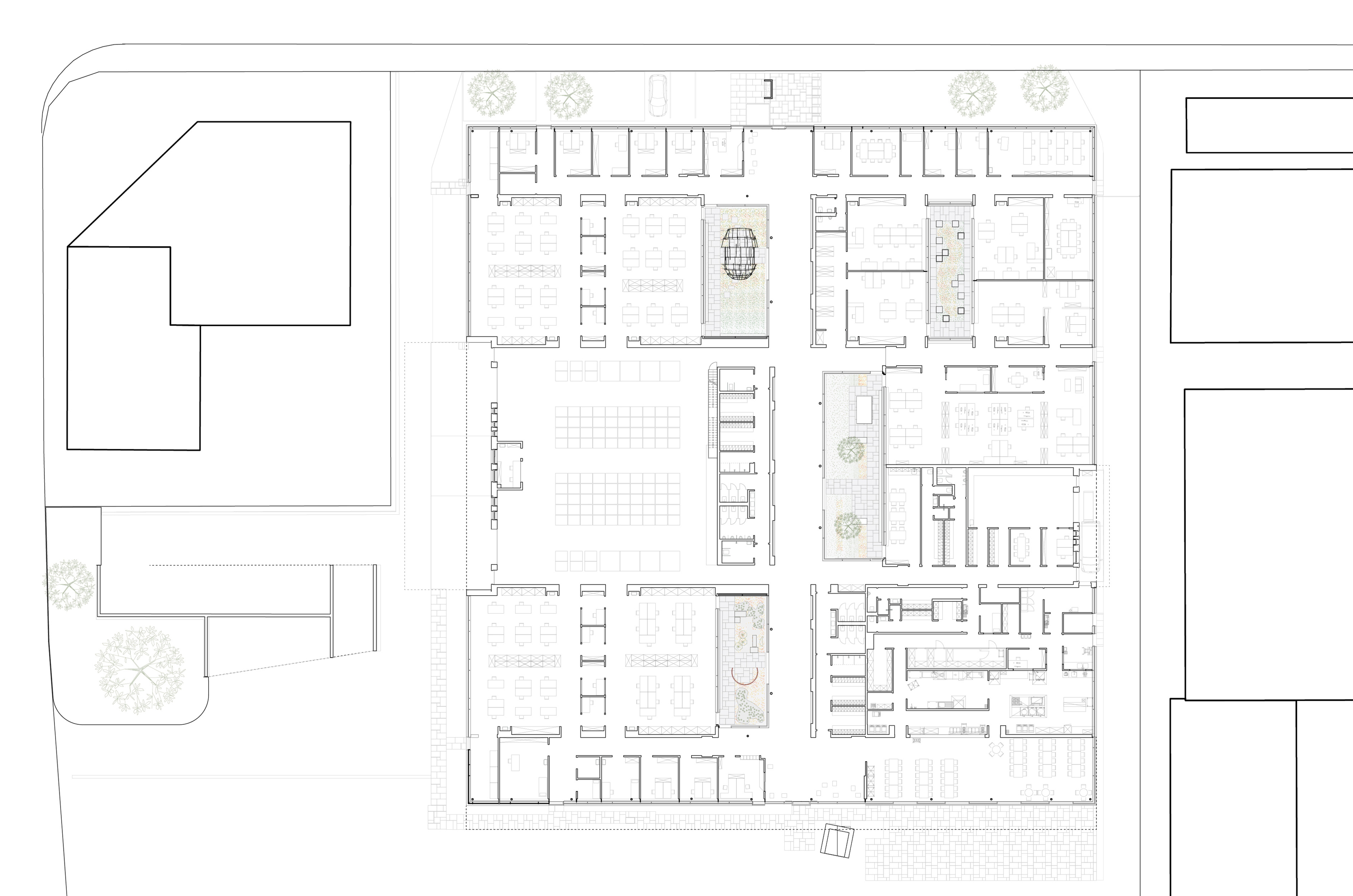
该设计包括方向和休息作为形成的原则,由一个巧妙的雕刻光,声音,材料和纹理。这座建筑是一个65×65米的大广场,透过长长的反光玻璃窗渗透到周围的景观中。
四个小规模的庭院为室内空间提供光线,并通过独特的材料品质和程序,使不同工作区域内的个人定向。这些庭院也是在工作环境中避难和玩耍的时刻。在这里,工人们可以在一个安静的户外环境中进行社交和放纵,那里植被茂盛,空气清新。减少的材料选择(暴露的混凝土、木材和玻璃)、裸露的建筑技术、几何精度和选择性透明使工作环境直观地被理解。这也使建筑费用能够满足预算紧张的限制。
设计这个车间建筑意味着以移情的方式塑造一个提供生产性庇护和潜意识自我平静的环境。
Firm OFICINAA
Type Industrial › Factory
STATUS Built
YEAR 2015
SIZE 10,000 sqft - 25,000 sqft
BUDGET $5M - 10M
keywordsarchitecture, architecture news, interiors, interior design, portfolio, spec, brands, marketplace, products Work Live Help
关键词建筑,建筑新闻,室内设计,组合,规格,品牌,市场,产品现场帮助
客服
消息
收藏
下载
最近

















