查看完整案例


收藏

下载
© Mario Wibowo
马里奥·维博沃
架构师提供的文本描述。巴厘岛上的精品度假村和别墅设计开发项目以其铺张的热带度假胜地的奢华尝试而闻名于世,这些地方装饰着与异国情调“巴厘岛”氛围相关联的工艺复制品。在这种背景下,D-Associates在巴厘岛追求一种卑微的家外感是一项罕见的事业。简单来说,在萨努尔为印度尼西亚的一个大家庭设计一座别墅是最具代表性的南巴厘岛聚居地之一,也是该岛最著名的旅游目的地之一。不处理西方世界对某种“巴厘岛”的异国情调的想象,我们在这里遇到了一种对平静的热带萨努尔风景的更微妙的欣赏。这座别墅被描绘成一座以热带景观为背景的家庭度假胜地,与他们在雅加达的生活形成了鲜明对比,同时学习了巴厘岛本土住宅建筑的空间结构的一个特定方面:强调打破房屋的体积,以及模糊内外空间。
Text description provided by the architects. Boutique resort and villa design developments on the island of Bali are well-known for their extravagant attempts to stage a lush tropical getaway embellished with reproductions of craftsmanship associated with the exotic ‘Balinese’ atmosphere. Against this backdrop, D-Associates’ pursue of a humble sense of home away from home in Bali is a rare undertaking. The brief is simple, to design a villa for an extended Indonesian family in Sanur, one of the most iconic Southern Balinese settlements and the island’s most established tourist destinations. Not dealing with the Western world’s imagination of a somewhat ‘Balinese’ exoticism, here we are encountering a more subtle appreciation of the calm tropical landscape of Sanur. The villa is envisioned as a family retreat set in a tropical landscape, a contrast to their Jakarta living, while learning from a particular aspect of spatial configuration of Bali’s indigenous dwelling architecture: an emphasis in breaking up the volume of a house and in blurring the inside and outside spaces.
© Mario Wibowo
马里奥·维博沃
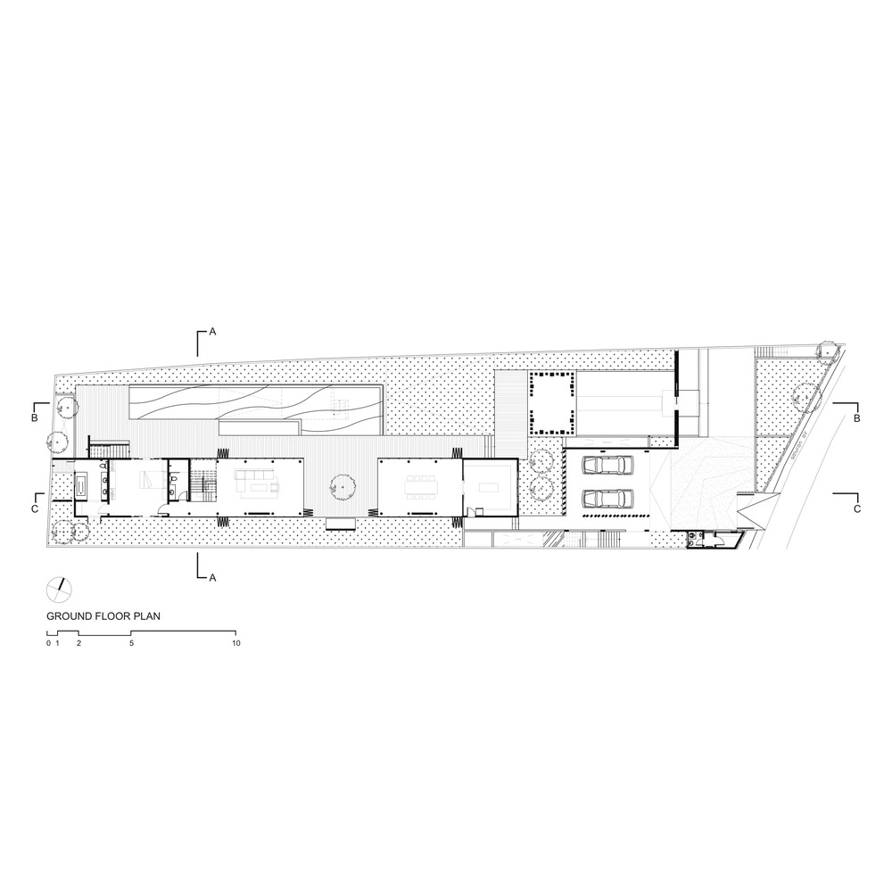
在一个长方形1277平方米的遗址上,两层别墅的主要结构位于长南侧附近,同时在北侧创造了一个宽敞的游泳池和草坪开放区。这种配置允许别墅中的所有房间-每个卧室都配备了自己的浴室、生活、餐饮和厨房-都可以在其南侧和北侧开放(避免直射东西向的热带太阳方向),草坪和游泳池成为整个别墅的主要焦点。从邻里街道上看,别墅主面积相当高的一堆,通过对场地前部的战略配置进行了缩小,其中包括一个封闭的车库区、一个有景观的前院(有一个池塘)和一个门厅亭,其中有一个扁平的木屋顶,充当了通往这座房子的一个简陋的入口。进一步降低体积成分,每个结构元素都被一种独特的天然建筑材料所覆盖-厚重的灰色河流石墙作为汽车围护结构、木柱和门厅的屏风,未完成的混凝土通道被美化的花园和池塘软化。
On a long rectangular shape 1277 M2 site, the main structure of the two-storey villa is located near the long southern side, while creating a generous open area of pool and lawn on the northern side. This configuration allows all the rooms in the villa -- four bedrooms each equipped with its own bathrooms, living, dining, and kitchen to all be opened on both their south and northern sides (avoiding the direct east west sun direction of the tropic) with the lawn and the pool becoming the main focal points throughout the villa. From the neighbourhood street, the considerably tall massing of the main volume of the villa is set back and scaled down through a strategic configuration of the front part of the site where an enclosed carport area, a landscaped front yard (with a pond) and a foyer pavilion with a flat wooden roof act as a humble entry court to the house. Further toning down the volumetric composition, each of the structural elements are covered by a distinct natural building material -- the heavy grey river stonewall as the carport enclosure, the timber columns and screen of the foyer, the unfinished concrete pathway softened by the landscaped garden and the pond.
© Mario Wibowo
马里奥·维博沃
大厅亭是指巴厘岛住宅建筑群中的装饰元素,这是一种过渡的屏幕元素,在这种元素中,进入自己的房子的行为被强调为一种游行,它标志着一所房子的私人空间的开始。在这个项目中,D-Associates将这个传统的表面像建筑元素一样空间化成一个小的门厅空间,由一排回收的Ulin木材(以前用作铁路轨枕)包围和支撑。
The foyer pavilion is a reference to the aling-aling element in Balinese dwelling compound, a transitional screen element where the act of entering one’s house is emphasised as a kind of procession that marks where the private space of a house begins. In this project, D-Associates spatialises this traditionally surface like architectural element into a small foyer space enclosed and supported by a row of recycled ulin timber (previously used as railway track sleepers).
别墅内部的主体结构分为两部分空间:上层空间被配置为一个漂浮的深色木箱,遮挡在底层区域之上,一个明暗透明的对比空间,作为家庭生活活动的平台。这一策略再次淡化了别墅的聚集,以保持一种家的感觉和人的规模。浓重的色调,深颜色的乌林木材和胶合板整理的上部体积带来温暖的别墅,从强烈的热带太阳。较低的体积更像是一个空间平台,它与游泳池和花园融为一体,因为它周围的元素轻盈:柱头般的细长圆形混凝土柱,涂上白色漆,玻璃窗户从地板到天花板,可以完全打开。这种结构也是在东南亚热带地区建造的一种常见的乡土民居-鲁玛庞公(木杆上的木屋)类型的现代拼音。
The main structure of the villa inside is divided into two volumes of space: the upper level area is configured as a floating dark wooden box sheltering over the lower level area, a contrastingly open and light transparent volume that acts as a platform of family living activities. This strategy again tones down the massing of the villa in order to maintain a sense of home and human scale. The heavy tone of the dark coloured ulin timber and plywood finishing of the upper volume introduces warmness into the villa from the strong tropical sun. The lower volume appears more as a platform of space that merges with the pool and the garden due to the lightness of its enclosing elements: the pilotis like row of thin round concrete columns painted in white and the floor to ceiling panels of glass windows that can be thoroughly opened. This configuration is also a modern articulation of the rumah panggung (wooden house on poles) typology, a common vernacular dwelling type built in tropical region in Southeast Asia.
© Mario Wibowo
马里奥·维博沃
整个构图的一个锚是一个两层高的遮蔽露台,打破了别墅中间的长长的堆积如山。这一高大的露台空间是一座空间桥梁,连接上层(包括所有私人卧室单元)和下层(包括所有居住空间)、内部居住空间和周边景观。它放大了一种轻盈和开放的感觉,进入这个大建筑(总建筑面积为1013平方米)。在室内和室外使用相同的装饰材料,使室内和外部的界限变得模糊,使家庭最大限度地体验到巴厘岛的景观。
An anchor to the whole composition is a two-storey height sheltered terrace breaking the long massing of the villa in the middle. This tall terrace space is a spatial bridge that connects the upper level (which contains all the private bedroom units) and the lower level (which contains all the living spaces), the internal living spaces and the surrounding landscape. It amplifies a sense of lightness and openness into this otherwise large structure (with a total floor area of 1013 M2). By using the same finishing materials indoor and outdoor, the boundary between the inside and outside is blurred, maximising the family’s experiencing of retreating into the landscape of Bali.
© Mario Wibowo
马里奥·维博沃
客服
消息
收藏
下载
最近


































