查看完整案例


收藏

下载
© Patkau Architects
c.Patkau建筑师
架构师提供的文本描述。这一项目最初是对1911年曼尼托巴大学音乐和艺术学府Tache Hall的翻修。当2009年经济衰退期间出现联邦刺激资金的机会时,决定单独制定一部分计划,以便能够快速设计和建造,以满足供资期限。这个项目,艺术实验室,成为第一个多阶段的创造性艺术设施。
Text description provided by the architects. This project began as a renovation to Tache Hall, a 1911 student residence, for Music and Art at the University of Manitoba. When an opportunity arose for federal stimulus funding during the 2009 recession, the decision was made to develop a portion of the program separately, so it could be designed and constructed in an expedited manner to meet funding deadlines. This project, the ARTlab, became the first of a multi-phase creative arts facility.
© Patkau Architects
c.Patkau建筑师
6300平方米的艺术项目由艺术学院的大空间组成,以补充塔奇厅内的小空间。包括一个国家标准的画廊,演讲厅,声音舞台,行政,和各种新的和传统的媒体工作室。
The 6300 sqm ARTlab program consists of large spaces for the School of Art to complement small spaces within Tache Hall. Included are a national-standard gallery, lecture hall, soundstage, administration, and a variety of new and traditional media studios.
© Patkau Architects
c.Patkau建筑师
Ground Level
© Patkau Architects
c.Patkau建筑师
艺术实验室的体积与塔奇厅的体积交织在一起,加强了这两座建筑是一个综合的艺术设施,并最大限度地利用了工地上的北白光工作室空间。塔奇大厅拐角处艺术实验室北翼的延伸,突出地将艺术实验室置于校园主要的户外空间达克沃思四合院(Duckworth Quadrangle)上。
The volume of the ARTlab interlocks with that of Tache Hall, reinforcing that the two buildings are an integrated arts facility and maximizing north daylit studio spaces on the site. The extension of the north wing of the ARTlab around the corner of Tache Hall prominently places the ARTlab on the principal outdoor space on campus, Duckworth Quadrangle.
© Patkau Architects
c.Patkau建筑师
为方便与南面的重要城市连接,艺术实验室的北翼高出一层。下面的覆盖区域构成了艺术实验室的入口,并为学校和画廊活动提供了宽敞的室外空间。大型V形立柱在城市规模上为这一空间注入了活力,在建筑物的结构网格上通过了低阶的障碍物。其结果是一个活跃的庭院夹在历史建筑和现代建筑之间。
To facilitate critical urban connections to the south, the north wing of the ARTlab is raised one storey above grade. The covered area below forms the entrance to the ARTlab and a generous covered outdoor space for school and gallery events. Large V-shaped columns animate this space at an urban scale, negotiating the structural grid of the building with below-grade obstacles. The result is a lively courtyard caught between historic and contemporary buildings.
© James Dow
(C)詹姆斯·陶氏
为了方便上层的连接,两座桥梁将艺术实验室的上层与塔奇厅连接起来.低级,艺术实验室与校园隧道网络相连,在严寒的温尼伯冬季,一个关键的行人循环系统。
To facilitate connections above-grade, a pair of bridges link the upper levels of the ARTlab to Tache Hall. Below-grade, the ARTlab ties into the campus tunnel network, a key pedestrian circulation system during the bitterly cold Winnipeg winter months.
© Patkau Architects
c.Patkau建筑师
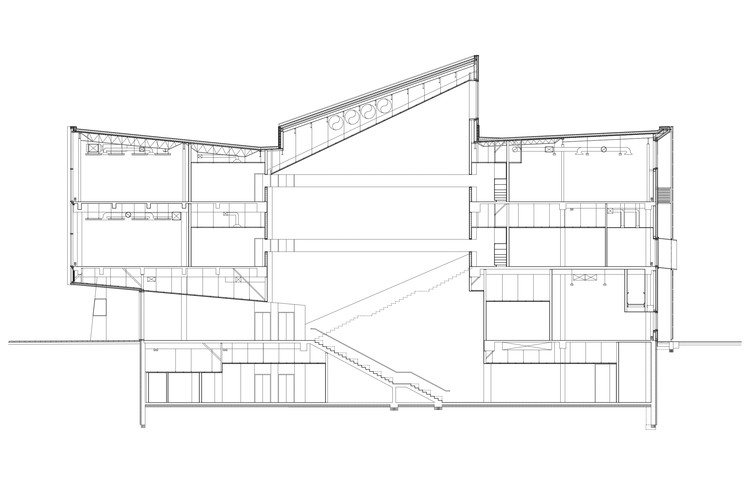
在艺术实验室内,一个狭窄的中庭将上层与下层空间连接起来.在南日光的推动下,这座中庭形成了一个螺旋式的垂直循环空间。
Within the ARTlab, a narrow atrium links upper floors to below-grade spaces. Animated by south daylight, this atrium forms a spiraling vertical circulation space for the building.
© Patkau Architects
c.Patkau建筑师
在地面和隧道层是两个主要的公共空间的建筑物,艺术学院画廊和演讲厅。中庭底部的梯级座位创造了一个多层大厅,将这两个设施连接在一起,将它们连接到小学和低年级的校园循环中。工作室和行政部门都在楼上,以利用自然光线。
On the ground and tunnel levels are the two principal public spaces of the building, The School of Art Gallery and the Lecture Hall. Terraced seating at the base of the atrium creates a multi-level lobby that connects these two facilities together, tying them to both at-grade and below-grade campus circulation. Studios and administration are on the upper floors to take advantage of natural light.
Section Detail
剖面细节
艺术室的外部与历史上的塔奇大厅的砖石建筑并置着现代建筑。北面的立面是全玻璃化的,这样工作室就可以享受漫天的阳光,同时也为下面的公共空间提供了艺术学院生活的一种可见的表现。东部和南部的高地是静谧的,景观墙。铝制格栅遮挡阳光下的信封,并提供附近商学院的隐私。种植在格栅底部的维吉尼亚爬虫最终将形成一个季节性变化的校园规模的垂直干燥景观。
The exterior of the ARTlab juxtaposes modern construction with the historic masonry of Tache Hall. The north elevation is fully glazed, so that the studios enjoy diffuse daylight and, at the same time, provide a visible expression of the life of the School of Art to the public spaces below. The east and south elevations are reticent, landscape walls. Aluminum grilles veil the envelope from sunlight and offer privacy from the nearby School of Business. The Virginia Creeper planted at the base of the grilles will eventually form a seasonably-variable campus-scale vertical xeriscape.
Architects Patkau Architects , LM Architectural Group
Category Student Hall
Area 6300.0 sqm
Project Year 2012
Photographs Patkau Architects
客服
消息
收藏
下载
最近


















