查看完整案例

收藏

下载
© Leonardo Finotti
莱昂纳多·芬诺蒂
架构师提供的文本描述。作为指导方针的阳台
Text description provided by the architects. The veranda as a guideline
高尔夫是一项精确和平衡的运动,我们相信它的建筑也是如此。户外活动,在丰富的自然元素,启发创造空间接近景观,良好的照明,宽,通风和与课程直接接触。这也是一项运动,球员在比赛前,比赛期间和比赛后社交,加强俱乐部建筑的重要性。(鼓掌)
© Leonardo Finotti
莱昂纳多·芬诺蒂
对于奥林匹克会馆,我们选择了设计一座像舒适的阳台一样的建筑,消除了景观、建筑和使用者之间的界限。为此,我们最初创建了一个广场,将课程与周围的规划卷结合起来。然后,它的屋顶是一个巨大的盖,其中掩蔽和阴影,创造了一个愉快的气氛。该提案还利用了巴西的传统建筑元素,如阳伞、砖-Soleis和Cobogós,以创造舒适和舒缓室内和外部空间。因此,对这些中间空间的关注是建筑设计不可分割的一部分。
For the Olympic clubhouse we chose to design a building organized like a comfortable veranda, dissolving the limits between the landscape, the building, and the users. For this purpose we initially created a plaza which articulates the course with the programmatic volumes around it. It was then roofed by a large cover which shelters and shadows, producing a pleasant ambience. The proposal also utilizes traditional Brazilian architectural elements like parasols, brise-soleis and cobogós, in order to create comfort and appease the spaces between interior and exterior. The attention to these intermediate spaces is therefore an inseparable part of the architectural design.
© Leonardo Finotti
莱昂纳多·芬诺蒂
场地法
Site approach
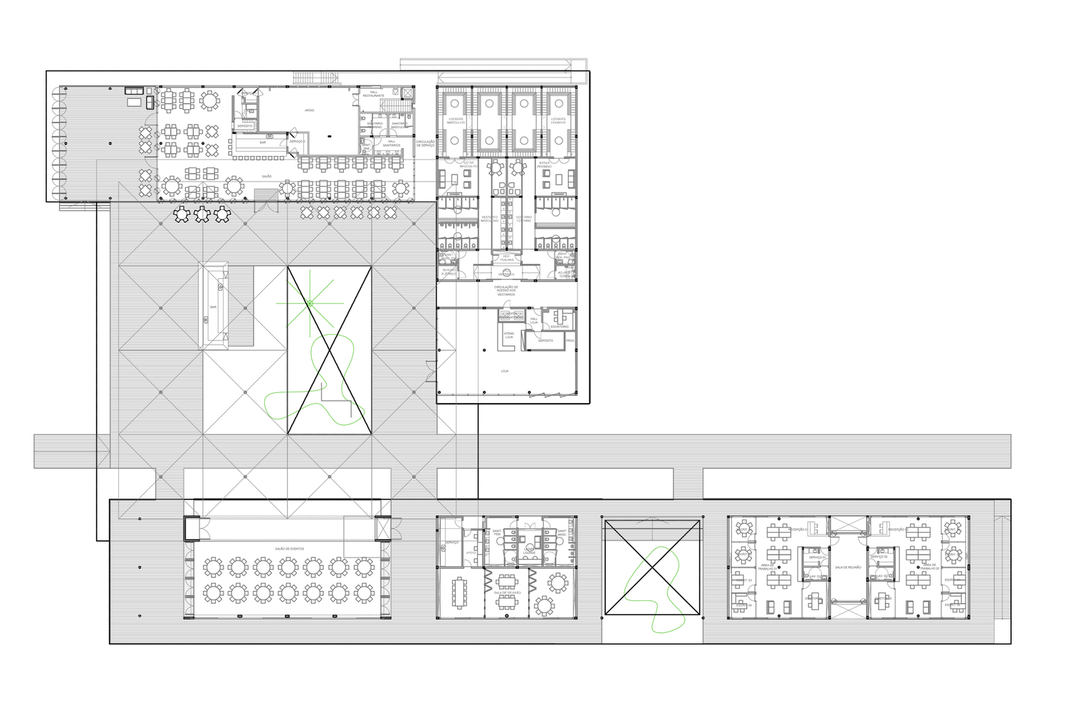
组成会馆的组合的布置遵循了几个主要前提:它与球场和练习场的密切和直接关系;有利于景观的体积破碎;减轻建筑对土壤和当地植被的影响;通过循环轴和广场周围配置建筑。(鼓掌)
The placement of the ensemble which constitutes the clubhouse follows a few main premises: its close and direct relationship to the course and driving range; the fragmentation of the volumes in favor of landscape views, the mitigation of the construction’s impact over the soil and local vegetation; the disposition of architecture through circulation axes and around the plaza.
© Leonardo Finotti
莱昂纳多·芬诺蒂
从入口处,一条宽阔而倾斜的小径朝高尔夫球场走去,有着优越的视野。通过这条道路,我们先后实施了健身房、洗手间、更衣室、专卖店和接待室,最终形成了从一侧向球场倾斜的广场,并容纳了行政总部和社会区域。在它上面,半透明的屋顶捕捉雨水并提供遮荫。内部花园作为周围景观的延伸,从餐厅上方的屋顶花园也可以欣赏到,可以通过坡道到达。
From the entrance a generous inclined pathway heads towards the golf course, with a privileged view. Through this path we implemented successively the gym, restrooms and locker rooms, Pro-Shop and reception, culminating in the plaza which leans onto the course from one side and houses the administrative headquarters and social areas. Above it, the translucent roof captures rain water and provides shade. An internal garden acts as an extension of the surrounding landscape, which can also be appreciated from the roof garden above the restaurant, accessible through a ramp.
© Leonardo Finotti
莱昂纳多·芬诺蒂
玩家通常的流量,主要是在专业商店的课程安排,在更衣室停下来,游戏结束后回到酒吧,在项目的发展中得到了特别的关注。
The usual flux of the players, consisting mainly of the course scheduling in the Pro-Shop store, a stop by the changing rooms and return to the bar after the game, was granted special attention in the project’s development.
巴西高尔夫联合会总部设在地势北部的高尔夫球场附近,以便与会所的其他地区保持一定的独立性。
The headquarters of the Brazilian Golf Confederation was implemented adjacent to the golf course, in the northern part of the terrain, so as to maintain a certain independence from the other areas of the clubhouse.
© Leonardo Finotti
莱昂纳多·芬诺蒂
服务区域是按照提供的效率准则,围绕着一个用于机械操作和课程维护的露台设计的。
The service areas were designed around a patio for the operation of machinery and course maintenance, in accordance to the efficiency guidelines provided.
里约热内卢高尔夫俱乐部通过一座宽敞的建筑,明亮、开放和欢迎现在和未来的体育从业者来确认自己。
The clubhouse of Rio de Janeiro Golf Club affirms itself through a generous architecture, bright, open and welcoming to current and future practitioners of the sport.
© Leonardo Finotti
莱昂纳多·芬诺蒂
Architects RUA Arquitetos
Location Barra da Tijuca, Rio de Janeiro - State of Rio de Janeiro, Brazil
Category Sports Field
Architect in Charge Pedro Évora, Pedro Rivera
Area 6400.0 m2
Project Year 2015
Photographs Leonardo Finotti
Manufacturers Loading...
客服
消息
收藏
下载
最近





















