查看完整案例


收藏

下载
© Spaces & Faces Photography
© Spaces
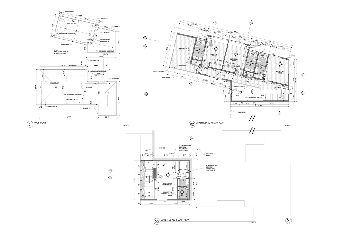
架构师提供的文本描述。将现场的动态景观融入到居民的日常生活中,这座带括号的太空屋被设计成一个有意义的队伍,在整个酒店里都有着微妙的自然照明。一个连续和慢跑挡土墙从外到内嵌入结构低于自然等级在前面与冲过渡在其后面的正面。所有的室内空间都开放到一个庭院,这个庭院一直延伸到树冠上,创造了一个在人造和自然之间很容易看到和占用的过渡空间。
Text description provided by the architects. Incorporating the site’s dynamic landscape into the daily life of its residents, the Bracketed Space House is designed as a meaningfully-framed procession through the property with nuanced natural lighting throughout. A continuous and jogging retaining wall from outside to inside embeds the structure below natural grade at the front with flush transitions at its rear facade. All indoor spaces open up to a courtyard which terraces down to the tree canopy, creating a readily visible and occupiable transitional space between man-made and nature.
© Charles Davis Smith
查尔斯·戴维斯·史密斯
Site + Main Level
场地主水平
© Charles Davis Smith
查尔斯·戴维斯·史密斯
庭院方案由普通的和私人的翅膀简化-由一座玻璃餐厅的“桥”连接。这种透明的空间还能在视觉上将前院与庭院连接起来,为视野扫清,同时保持一条被压抑的街道风貌。楼梯充当一个垂直的“指节”,在调节变化的机翼角度的同时,对比房屋的主要水平。
The courtyard scheme is simplified by the common and private wings - connected by a glass dining “bridge." This transparent volume also visually connects the front yard to the courtyard, clearing for the prospect view, while maintaining a subdued street presence. The staircase acts as a vertical “knuckle,” mediating shifting wing angles while contrasting the predominant horizontality of the house.
© Charles Davis Smith
查尔斯·戴维斯·史密斯
Architects Matt Fajkus Architecture
Location Austin, United States
Category Houses
Design Team Matt Fajkus, AIA; David Birt; Travis Cook; Jayson Kabala
Area 450.0 sqm
Project Year 2016
Photographs Spaces & Faces Photography
客服
消息
收藏
下载
最近
































