查看完整案例


收藏

下载
© Rodrigo Daza
罗德里戈·达扎
架构师提供的文本描述。莱达谷位于智利中部沿海山脉的西侧。大约7公里。来自太平洋沿岸。95公里圣地亚哥西边。
Text description provided by the architects. Leyda Valley is located on the west side of Chile’s central coastal mountain range. About 7 km. from the Pacific Ocean sea side. 95 km. to the west of Santiago.
© Rodrigo Daza
罗德里戈·达扎
雷达谷因靠近海岸而被重新认识,在这一地区有一项重要的葡萄栽培发展。因为它们靠近大海,它们的品种非常特殊。从另一边,在海岸边,有一个大面积的集装箱运输,他们是在圣安东尼奥港卸货,这一活动正在推动城市的限制向东。
The Leyda Valley is reknowned because of it's proximity to the coast, in the area there is an important development of viticulture. Because of their vicinity to the sea, their varieties are very special. From the other side, by the coast, there’s an expansion of large areas for shipping containers; they are unloaded at San Antonio’s Port, this activity is pushing the city limit towards the East.
莱达提出这两种情况之间的边界。
Leyda raises as a frontier between this two situations.
© Rodrigo Daza
罗德里戈·达扎
我们受命在一大片乡村土地上,在一群山丘上设计一座周末别墅。我们被要求特别小心,强调紧缩,一个非常低的预算是强制性的。
We were commissioned to design a weekend house, on top of a group of hills, within a large countryside lot. We were asked to take special care, with an emphasis on austerity, a very low-budget was mandatory.
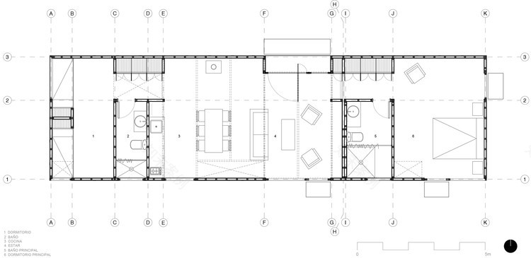
Floor Plan
另一方面,我们发现自己处于这两种活动之间的边界状态,在我们看来,这似乎是一个项目触发器。
On the other hand, we found ourselves in this border situation between two kinds of activities, this seemed to us a project trigger.
© Rodrigo Daza
罗德里戈·达扎
我们对位于东南部的葡萄园有着独特的全景。相比之下,沿海的工业区正在扩张,取代了农村房屋。在这一边,我们想要一个密封工程,但这同时也会使我们很难获得最好的西北阳光。
We had exceptional panoramic views towards the vineyards located to the Southeast. By contrast, there’s an expansion of the industrial quarters, from the coast, displacing rural houses. For this side, we wanted a hermetic project, but this would at the same time make it difficult to get the best Northwest sunlight.
© Rodrigo Daza
罗德里戈·达扎
作为第一种方法,我们试图把这个项目合成一本简单的书,我们从附近草莓作物上使用的临时掩体中获取。从这里到拉斐尔湖东侧,可以找到这样的避难所。我们在这些轻型建筑上看到了一份非常有力的正式指南,有着令人印象深刻的视觉价值,说明了如何解决这座低成本的农村房屋问题。一种综合的形式,通过缺乏特殊性来解决所有的经济问题。这就是为什么视图/太阳光之间的平衡成为了一个机会,它的解决方案给了这个项目的身份。
As a first approach we tried to synthesize the project as a simple volume that we took from the ephemeral shelters used on the nearby strawberry crops. These kind of shelters can be found across the land from here down to the east side of Rapel Lake. We saw on these light constructions a very strong formal guide, with a very impressive visual value, on how this low-cost countryside house could be solved. A synthetic form, solves all economic issues by its lack of particularities. That’s how the equation between views / sun light became an opportunity, and its solution gave identity to the project.
© Rodrigo Daza
罗德里戈·达扎
我们用一种非常简单的方式解决了这个程序。最后是卧室,每个卧室都有自己的浴室,中间是起居室和就餐区。与这一地理位置上通常的方向相反,我们设计了面向南方的房子,突出了葡萄园的景观,葡萄园像毯子一样散布在山谷上,背景是沿海山脉。我们通过屋顶的开口从北方注入光,这就是我们如何实现一个空间,从它的后侧温和的日光浴看风景。
We solved the program in a very simple way. At the ends, the bedrooms, each one with its own bathroom, at the middle, the living and dining areas. In opposition to the usual orientation on this geographic location, we designed the house facing to the South, giving protagonism to the views towards the vineyards, which spread like blankets, over the valley with the coastal mountain range on the background. We injected light from the North through openings in the roof, that’s how we achieved a space that looks toward the landscape with a gentle sunbath from its rear side.
© Rodrigo Daza
罗德里戈·达扎
就重要性而言,该房屋是用传统的木材框架构成的。作为包层,我们使用了一种具有弹性和连续的沥青膜。该体积被认为是整体块而没有任何可识别的部件。没有檐口,没有雨水沟,没有任何接缝或任何类型的接缝线;这是我们如何生成表达式的合成。
In terms of materiality, this house was structured with traditional timber frames. As a cladding we used an asphaltic membrane that is elastic and continuous. The volume was thought as monolithic block without any recognizable parts. There are no eaves, no rain gutters, no seams or joint lines of any kind; this is how we generated a synthesis of the expression.
© Rodrigo Daza
罗德里戈·达扎
这个街区是作为一个坚实的,一个酒吧,在其纯粹的简单达到了经济所需的客户简介。质量被减去,并垂直移动通过体积,这一操作产生了开口,解决了景观,自然照明和一般含义所建议的环境和地点。综合所有这些方面,正式确定项目。
This block was worked as a solid, a bar that in its sheer simplicity reached the economy required by the clients brief. Mass was subtracted and moved vertically through the volume, this operation generated the openings that solve the views, the natural lighting and the general implications suggested by the surroundings and the location. The synthesis of all of this aspects, formally determine the project.
© Rodrigo Daza
罗德里戈·达扎
Architects Alfredo González Briceño, Ignacio Rojas Hirigoyen
Location Leyda, Chile
Category Houses
Area 82.0 m2
Year Project 2015
Photography Rodrigo Daza
Manufacturers Loading...
客服
消息
收藏
下载
最近

















