查看完整案例


收藏

下载
项目:房屋BLANCAYMATEO
类型:现有房屋的翻新和扩建
地点:马略卡,埃斯波拉斯
建筑师:Jaime Salvá
年项目:2014 /建成完成:2016
原建筑面积:178平方米/最终建筑面积:244平方米
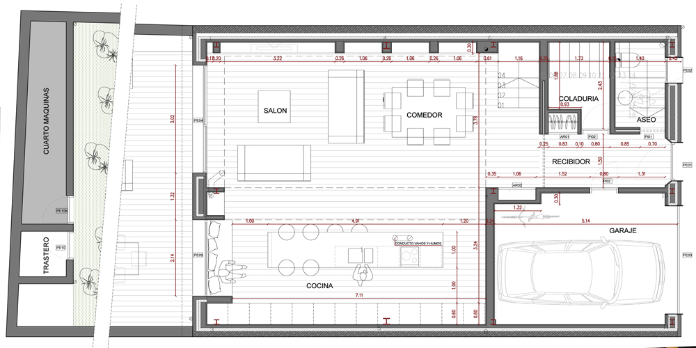
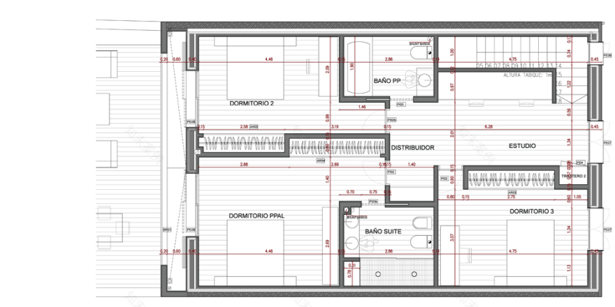
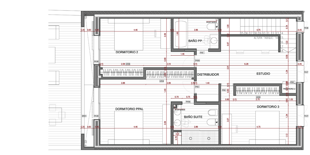
翻修和扩建位于西班牙马略卡镇埃斯波拉斯市中心的现有房屋。
唯一原始的元素是主要的街道外观,这是必要的,以保持符合城市规则。
房子的其余部分是全新的,能够有一个更现代风格的斜面。
这所房子有一个带有小游泳池的后院。
该项目的室内设计是当代的,但符合古镇的风格。天然材料,如木材,石头,玻璃和钢铁使这座房子成为乡村和现代的混合。
Reforma y APLAIACIón de VIVIVERDA存续Enre Medianera en el Cento del pueblo de Esporlas。La Norativa专设一家保存机构:“存在”与“一家公司”,Siendo elúNico Elemento que se Safa de su estado原作。Por otra parte,la fachada transera tiene un aspecto más contemoráneo,fusionando los 2 estilos armisectóNicos。[法][1]:[法][1]:[法]‘.’
Firm JAIME SALVÁ, Architecture & Interior design
Type Residential › Private House
STATUS Built
YEAR 2016
SIZE 1000 sqft - 3000 sqft
keywords:architecture, architecture news, interiors, interior design, portfolio, spec, brands, marketplace, products Blanca & Matteo house. Esporlas, Mallorca
关键词:建筑,建筑新闻,室内设计,组合,规格,品牌,市场,产品布兰卡
客服
消息
收藏
下载
最近




















