查看完整案例


收藏

下载
架构师提供的文本描述。旅行者从阳光中醒来,阳光的空间是开放的。阳光在房子的不同角落里照耀和折射,形成了下一个时刻和脚印落下的痕迹。作为复式建筑,与相邻的房子排在一起,它位于四米窄的小巷里。设计师利用充足的阳光,将大量的自然光线带入黑暗的房子。
Text description provided by the architects. The traveler awakes from the sunlight, and the space is open for the sunlight. The sunlight shines over and refracts within different corners of the house, forming uprises falling at the next moment and footprint. As the building of duplex and row with the adjacent house, it is located in the narrow alley of four meters. The designer makes use of the ample sunlight, bringing in large amounts of the natural light into the dark house.
Courtesy of YU YA CHING Interior Design
余雅青室内设计
白天没有电灯就够亮的了。阳光投射到房子的不规则矩形的实木格栅由铁木在前院。随着时间的推移,它反射出不同种类的光和阴影。视觉效果激活了大楼。晚上,各种光源为室内营造出一种自然而宁静的氛围。
It is bright enough without any electric lights in the daytime. The sunlight casts into the house from the irregular rectangles of solid wood grille made by ironwood in the front yard. With the passage of time, it reflects a distinct variety of light and shadow. The visual effect activates the building. At nighttime, a variety of light sources construct a natural and serene atmosphere for the indoor chamber.
停留几天,与光明和阴影骑马,旅行和与太阳和月亮一起愉快地生活。
Stay for some days, riding with light and shadow, travelling and living pleasantly with the sun and moon alongside.
Courtesy of YU YA CHING Interior Design
余雅青室内设计
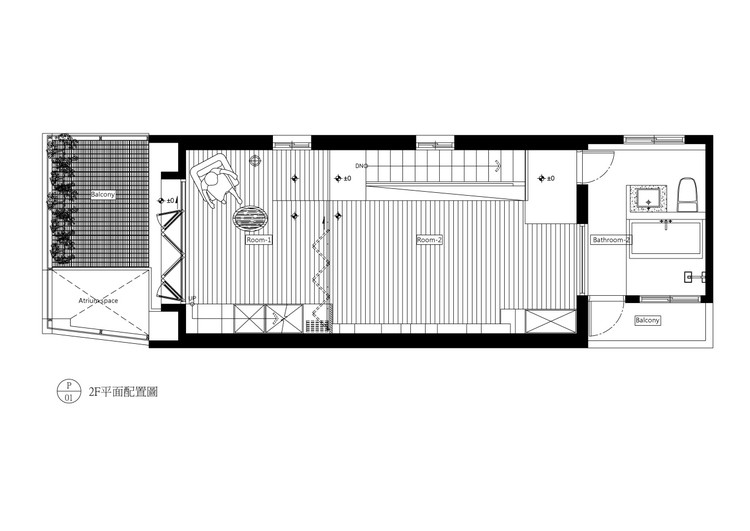
从一楼到二楼,前院到室内,格栅和梯子的梯度排列都有节奏和节拍。前院的入口门迎接阳光,符合当地的热情好客和宁静的特点。从设计的概念到建筑的过程,设计师努力与邻里互动,把当地的人的触觉带到房子里。
From the first floor to the second floor, the front yard to the indoor chamber, the gradient arrangement of grille and ladder has its rhythm and beat. The entrance door open to the front yard greets the sunlight, conforming to the local characteristics of hospitality and tranquility. From the concept of designing to the process of construction, the designer endeavors to interact with the neighborhood, bringing the local human touch into the house.
Courtesy of YU YA CHING Interior Design
余雅青室内设计
一楼的广阔空间可作为亲友聚会或冥想的场所。实木书桌有大面积的慢跑接缝和成品水泥地板,再加上透过窗户可以看到的旧剪纸,显示出它温和而平静的特点。
The wide space of first floor can be taken as the meeting or meditation ground for relatives or friends. The solid wood desk with large surfaces of joggle-joint and the floor of finished cement, supplemented with the old paper-cutting which could be seen through the window, revealing its mild and calm characteristics.
Courtesy of YU YA CHING Interior Design
余雅青室内设计
按照“光与影”和“节奏”的主题,二楼有几何形状的壁橱和橱柜,给用户带来了无与伦比的惊喜。中间层上方的天花板保留了屋顶梁的原有结构,形成了一些天窗,使阳光照在二楼的墙上,随着时间的推移,菱形或矩形的形状发生变化,并从另一个角度投射到整个房屋。
Following the theme of “light and shadow” and “rhythm,”there are closets and cabinets of geometrical shape on the second floor, bringing the users artless surprises. The ceiling above the interlayer retains its original structure of roof beam, creating some skylights for the sunlight falling upon the wall of second floor as the shape of rhombuses or rectangles changing with time and cast through the whole houses from another angle.
稳定,快乐,宁静,在角落里发芽的想象。
Stable, joyful and tranquil, germinating imagination in the corner.
在角落里写故事,在角落里做梦。
Writing stories in the corner, dreaming in the corner.
依偎在角落里,拥抱着日月的景象和温暖的人情味。
Nestling in the corner, embracing the scene of sun and moon and the warmth of human touch.
Courtesy of YU YA CHING Interior Design
余雅青室内设计
客服
消息
收藏
下载
最近


























