查看完整案例


收藏

下载
设计公司:广州李友友室内设计有限公司
设计师:evanslee lynn
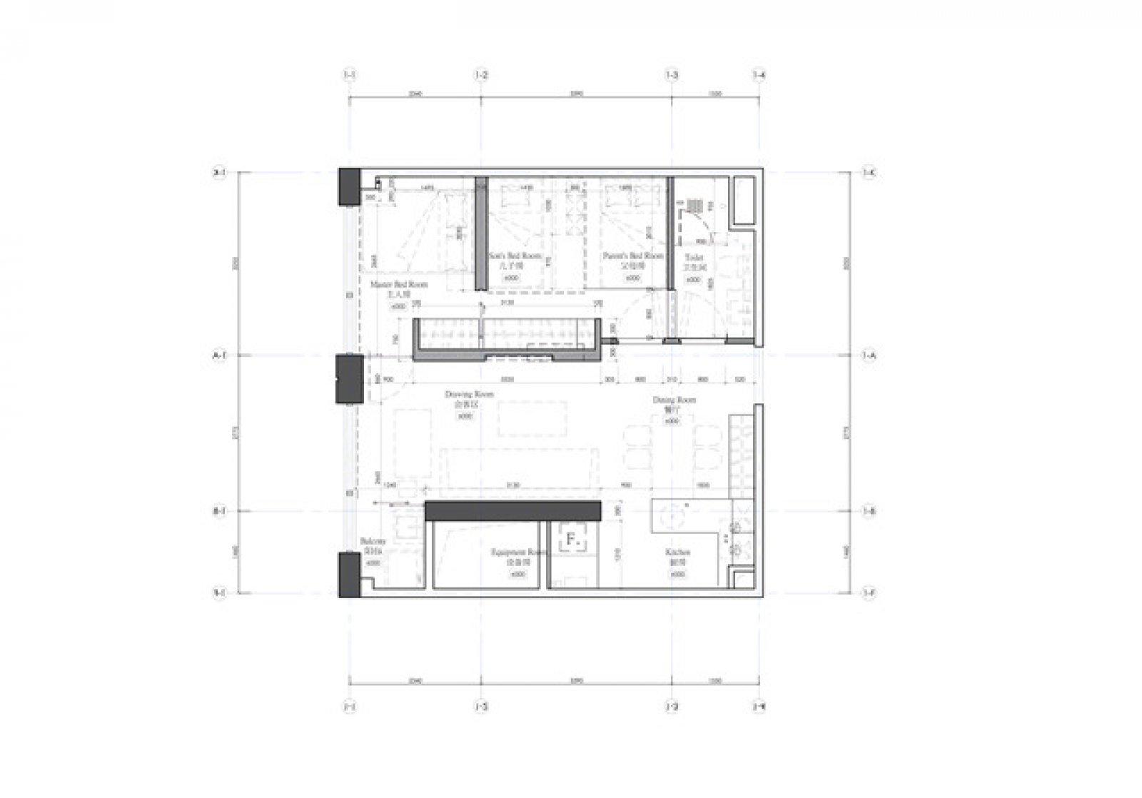
项目名称:广州东方文德广场2203私人住宅
空间格局:3房两厅居室 居住人数: 5人 主要建材:白橡木地台 进口土耳其雪花白 白色乳胶漆 黑钛钢 设计主题:恋恋白色国度 沙发、茶几:Dimension Ghost Chair 灯具:德国垂直吊灯 浴室洁具:德国进口高仪、瑞士劳芬 抽油烟机:西门子
设计说明:屋主一家五口同住,因此设计师把原有主人套房和阳台一分为三,改成主人房、小孩房与父母房,为屋主打造出更合用的间隔,前者分为寝区、浴室、化妆间;步进寝区,感觉温润舒适,这有赖设计师在墙上的清镜、百叶和灯光的搭配处理,使一室洋溢暖意,倍感温馨。父母房放置衣柜和书柜,房间以白色为主调,而且特意铺上木地板,使一室更富温暖感,格局舒适而富成熟韵味。另一间睡房则由孩子拥有,其简约布置配以亮白色调,不失纯真跳脱的气息,加上型格书柜与Ghost chir点缀,赋予一室强烈的时代感。而在主人房的设计时我们希望排除硬朗的线条和深沉的色调,毕竟再刚毅的男人的内心深处也会有柔软的地方,哪怕客户是南方航空公司首席机长—我们希望给他一个悬浮在未来空间 的双人床,诉说着一个成熟的外表下藏着的一颗未泯的童心。
家装设计 住宅设计 现代简约 清新 亮丽
客服
消息
收藏
下载
最近

































