查看完整案例


收藏

下载
© Lara Briz
劳拉·布里兹
架构师提供的文本描述。在坦桑尼亚,用地球建造房屋代表了过去,并与恶劣的生活条件有关。适应环境的传统材料和技术被抛弃,转而进口昂贵的、有时是能源效率低的材料和产品,例如混凝土砌块,只有较先进经济体的制造商才能从中受益。该项目旨在利用传统手工和简单方法,将地球作为一种现代和可持续的建筑材料,以延续当地的农村建筑传统。它还鼓励地方和国际参与,并可作为今后发展建筑以提高坦桑尼亚农村住房质量的范例。
Text description provided by the architects. In Tanzania, building with earth represents the past and is associated with poor living conditions. Traditional materials and techniques adapted to the environment are abandoned in favor of importing expensive and sometimes energy-inefficient materials and products, such as concrete blocks, from which only manufacturers in more advanced economies benefit. The project aims to bring back earth as a modern and sustainable building material, using traditional handcraft and simple methods, for continuing a local rural building tradition. It also encourages local and international participation and can serve as an example for future building developments to improve the quality of Tanzania’s rural housing.
© Lara Briz
劳拉·布里兹
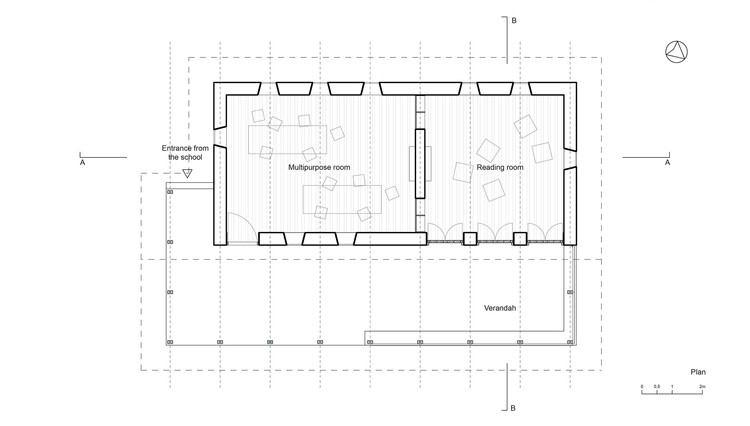
阿马尼图书馆的建筑提供了不同的空间和用途,以促进一种不同的阅读和学习方法,作为典型的正面课程的替代方法。周围有厚厚的土墙和学校的通道,有一个多学科的教室,供研讨会、会议和上课之用。阅览室是明亮和开放的,其中一扇̧连接到阳台,创造了一个很大的娱乐和运动空间。
The Amani library´s architecture provides different kinds of spaces and uses to promote a different approach to reading and learning, as an alternative to the typical frontal approach to lessons. Enclosed by thick earth walls and with access from the school, there is a multidisciplinary room for workshops meetings and lessons. The reading room is light and open with one of the façades connected to the verandah, creating a large space for recreation and movement.
Exploded Axonometric
爆炸轴测
该项目主要使用两种材料建造:从现场挖出的土壤和当地收集的木材。现场生产提供了利用当地材料和同一挖土进行墙体施工的可能性。图书馆的周长是用夯土技术建造的承重墙.除结构容量外,地球还调节室内湿度和温度,节约能源,减少环境污染。此外,它是可重复使用的,并节省了物资采购和运输的费用.除其他外,可以在凉亭的柏木门和竹围上找到地方手工艺品,以此促进和加强当地工匠的参与,并提高对文化遗产价值的认识。
The project is mainly constructed from using two materials: soil excavated from the site and locally collected wood. On-site production offered the possibility of employing local material and the same excavated soil for wall construction. The perimeter of the library is built with load-bearing walls using the rammed earth technique. Apart from its structural capacity, the earth regulates indoor humidity and temperature, saves energy and reduces environmental pollution. Also, it is re-usable and saves expenses in material acquisition and transportation. Local handcraft can be found, among others, on the cypress doors and the bamboo enclosure at the verandah, as a way of promoting and strengthening the participation of local craftsmen, as well as raising awareness to the value of cultural heritage.
© Lara Briz
劳拉·布里兹
Floor Plan
© Lara Briz
劳拉·布里兹
通过一个由基鲍尼居民和国际参与者参加的讲习班,在4个月的短时间内建造了阿马尼图书馆。该讲习班被视为一种学习经验,通过一个沉浸式的,协作的设计-建造项目。这种方法具有发展性质,充当“种子”,因为它寻求形成一个知识库,有助于传统材料和技术的潜在回归,以解决农村环境中的低成本住房问题。
The construction of Amani Library was carried out in a short timeframe of four months through a workshop with both Kibaoni inhabitants and international participants. The workshop was regarded as a learning experience through an immersive, collaborative design-build project. The approach carries a developmental character, acting as “seed”, as it seeks to form a knowledge base that can contribute to the potential return of traditional materials and techniques in solving the problem of low-cost housing in rural environments.
© Lara Briz
劳拉·布里兹
Architects Social Practice Architecture
Location Unnamed Road, Tanzania
Lead Architects Patricia Báscones, Lara Briz
Area 105.0 m2
Project Year 2016
Photographs Lara Briz, Patricia Báscones
Category Library
客服
消息
收藏
下载
最近



























