查看完整案例


收藏

下载
© Kim Jaekyung
c.Kim Jaekyung
架构师提供的文本描述。格瓦乔恩的住宅在建造房屋方面需要一种根本不同的态度和观念。房子由各种主题组成,包括环境友好型特征、现代生活和自然的直接共生、使房子完全成为房子美学的方式、构造的轻巧和简单的逻辑,但一切都包含着“简单”的原则。
Text description provided by the architects. The Gwacheon residence required a fundamentally different attitude and concepts in terms of constructing the house. The house comprises of various motifs, including environmentally friendly features, a direct symbiosis of modern life and nature, ways to generate the house fully becoming the aesthetics of the house, with the light and simple logic of tectonics and, yet everything encapsulates the principles of “simplicity”.
© Kim Jaekyung
c.Kim Jaekyung
该房屋主要面向西南,以及土地的坐标。自然采暖和冷却是一种被动式太阳能技术,它是一种被动的太阳能技术,在冬天,房子变成了温室,夏天的时候,微风向上吹来。即使墙壁提供足够的绝缘,窗户方便交叉通风系统。当屋顶朝南看时,倾斜的屋顶上安装了太阳能电池,以产生能量。屋顶的大小和倾角根据太阳的高度和坡度进行调整。倾斜屋顶被分成几个部分,是“审美意图”和“工程需要”的结果。
The house mainly faces southwest, along with the coordinates of the land. Natural heating and cooling are achieved through the double skin, which is a kind of passive solar energy technique, so the house becomes like a greenhouse in the winter and breezes are funnelled upward during the summer. Even though the walls offer sufficient insulation, the windows facilitate a cross ventilation system. As the roof looks towards the south, solar-cells are installed on the sloped roof to generate the energy. The size and inclination of the roof were adjusted to the altitude and gradient of the sun. The sloped roof is segmented into several sections and is the result of “aesthetic intentions” and “engineering needs”.
© Kim Jaekyung
c.Kim Jaekyung
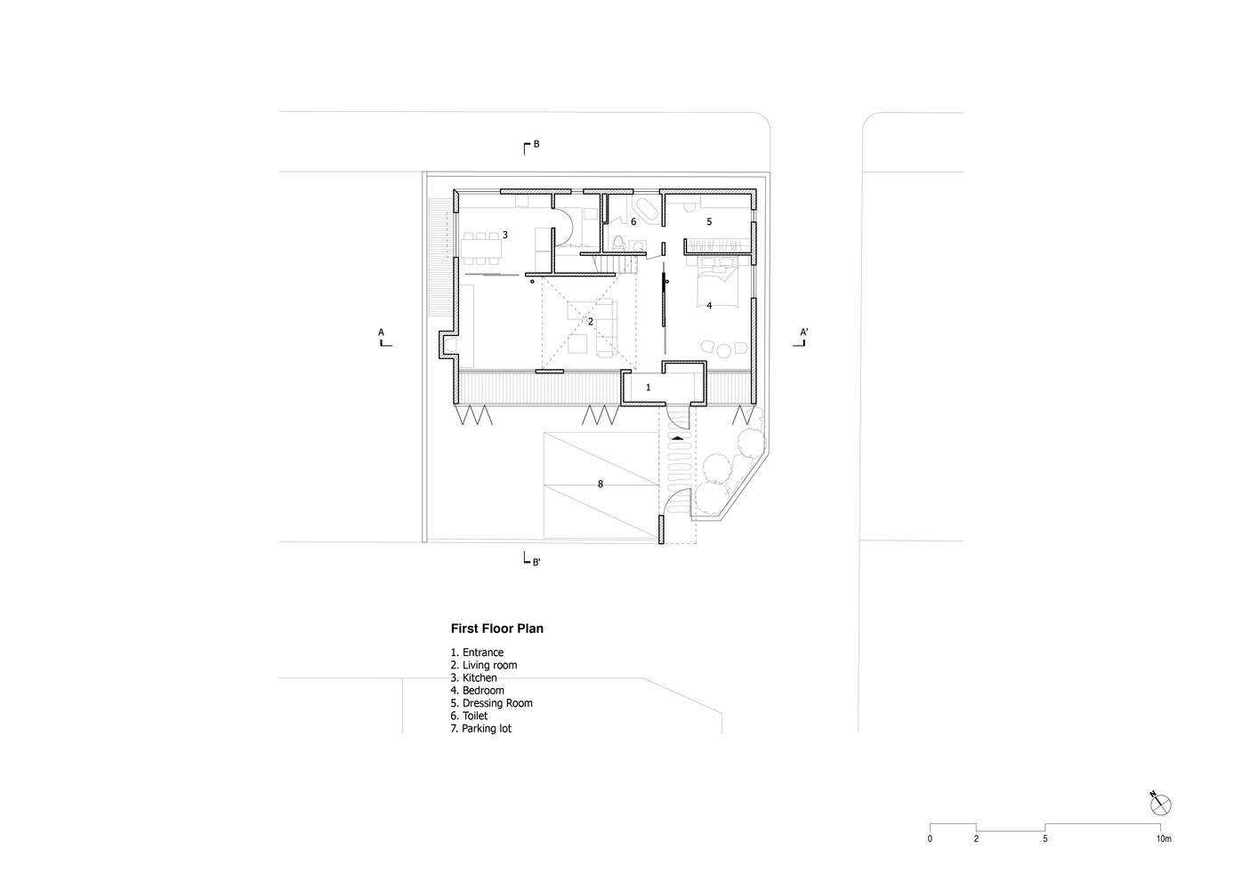
客厅的上部安装了天窗,使明亮的阳光穿透屋内最深处,并邀请天空进入室内,从而从内部呈现太阳、月亮和星星的体验。我设计这座房子的目的是让它拥有尽可能轻的结构,方法是使用最少数量的钢框架材料,将墙的厚度降到最低,在房屋最终被拆除时产生较少的废料,以及利用可回收的部件。房子的组成也很简单。设备核心位于楼梯后面,从而能够有效地进行设备线路的移动。这意味着房子里的大部分区域都可以自由地重新定位和重组。
A skylight was installed on the upper side of the living room, thereby allowing bright sunlight to penetrate the deepest recesses of and to invite the sky into the house, thereby presenting the experience of the sun, the moon and stars from inside. My intention for the house was to give it the most lightweight structure that was possible by using a minimal amount of steel frame materials, reducing the thickness of the walls to a minimum, producing less waste material when the house gets eventually demolished, and making use of recyclable components. The composition of the house is also simple. Facility cores are situated behind the stairway, thus enabling efficient conducting of movement of the facility line. This means that most of the areas in the house can be repositioned and restructured liberally.
System Diagram
将起居室、主卧室和餐厅连接起来的空间汇合成一个大空间,使未来的空间分割更容易调整。在设计Gwacheon住宅时,我不仅仅是为了满足环境目标。这是通过木墙的组成、窗户的部署和侧窗的细节而纳入设计和构造系统的。在所有这些新的尝试中,包括由墙的网格系统和屋顶倾斜侧的角度差异所创造的丰富的空间性,由薄墙、经济成分和简单的细节所创造的物质性,最终最重要的是,我试图坚持我的原则,而不是试图使房子仅仅是美丽的。
The space connecting the living room, the master bedroom and the dining room converge into a large space, allowing space partitioning to be easily adjusted in the future. While designing the Gwacheon residence, I sought not only to satisfy environmental objectives. This was incorporated into the system of design and tectonics through a composition of wooden walls, the deployment of windows, and details from the side windows. In all of these new attempts, including abundant spatiality created by difference in angles of the grid system of walls and the sloped side of the roof, mew materiality created by thin walls, economic components and simple details, what is essentially important in the end, is the fact that I tried to stay true to my principles, not endeavoring to make the house merely beautiful.
© Kim Jaekyung
c.Kim Jaekyung
Architects KYWC Architects, Kim Seunghoy (Seoul National University)
Location Gwacheon-si, South Korea
Lead Architects Kim Seunghoy (Seoul National University) + Kang Wonphil (KYWC)
Project Team Jeong Hwataek, Kim Hana
Area 185.49 m2
Project Year 2007
Photographs Kim Jaekyung
Category Houses
客服
消息
收藏
下载
最近






























