查看完整案例


收藏

下载
© Yoon Dong-gyu
尹东奎
架构师提供的文本描述。这个地区,在那里发现了岩石阴影,是从古老的石器时代的生计。这个地方位于风路上,所以总是有一股来自南方的清新风西边的山在下午挡住了炎热的阳光。而信川河流经山下,所以有足够的水.
Text description provided by the architects. The area, where the remains of Rock shade have been found, is livelihood from old stone age. This place is located in wind path, so there is always a fresh wind from south area - Cheong do, Ga chang. The mountain to the west of site keeps out hot sunlight in the afternoon. And Shin-cheon river flows at the bottom of mountain, so there is enough water.
Birds View
鸟瞰
这座小房子坐落在巴东的入口处,对面是一座公寓楼的大门,南边是12米宽的公路,北边是4米宽的杂乱无章的过路。
This small house situated in an entrance to Pa-dong, is across from an apartment complex gate.The site is adjacent to 12m-wide road to the south and 4m-wide cluttered passing road to the north.
© Yoon Dong-gyu
尹东奎
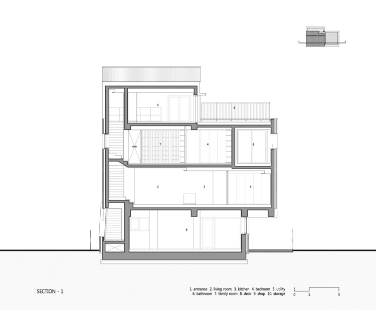
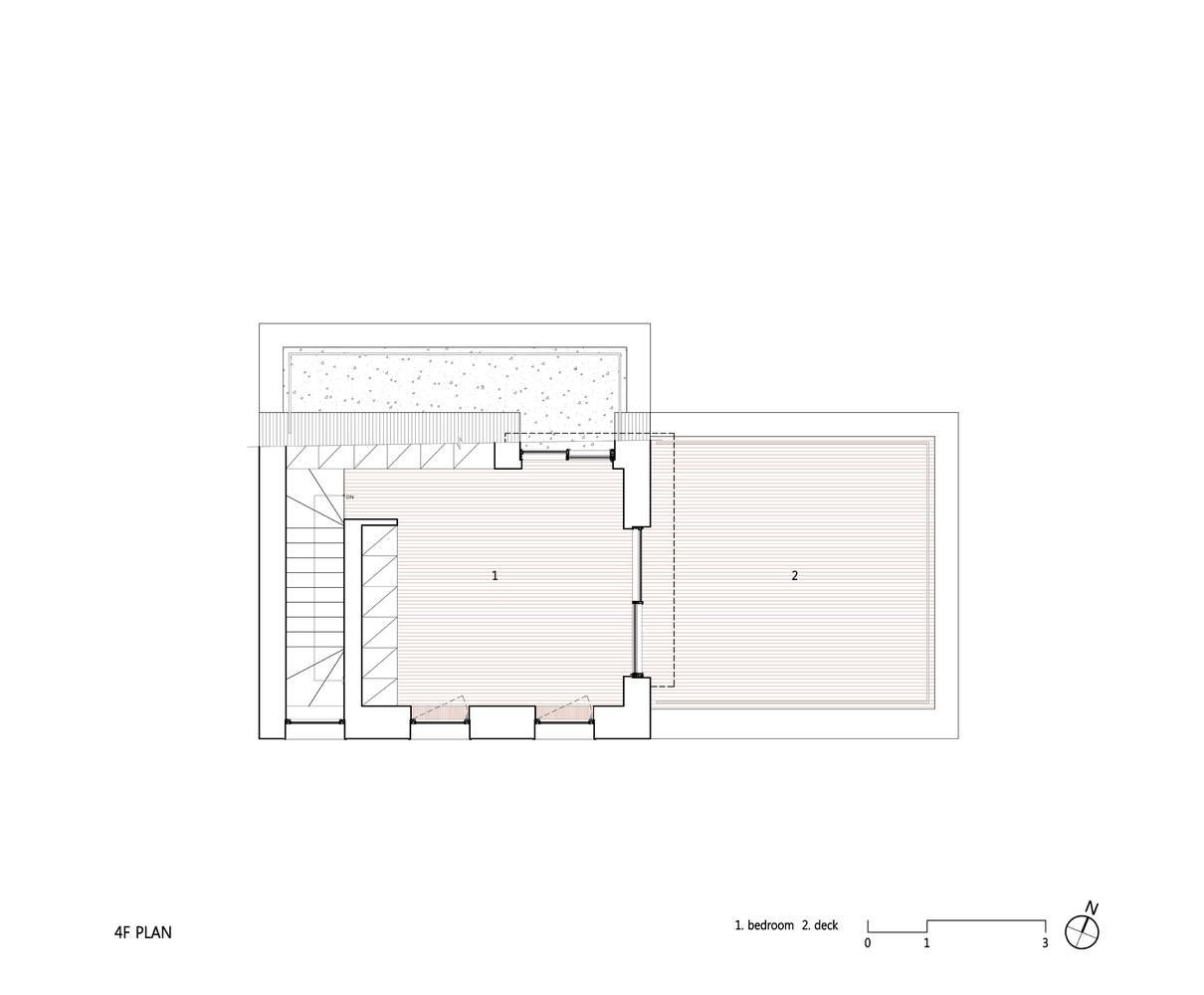
这所房子由一楼的一间商业空间和一间从二楼到四楼有三个孩子的年轻父母的独立住宅组成。
The house consist of one commercial space on first floor and one detached house for young parents with 3 children from the second floor to the fourth floor.
© Yoon Dong-gyu
尹东奎
Section 01
Section 01
© Yoon Dong-gyu
尹东奎
楼梯和停车场的位置是由场地的形状决定的,房子里的所有房间都是面向南方的。
The staircase and parking lot's location was determined by a shape of site, and all rooms in house were planned to face the south.
© Yoon Dong-gyu
尹东奎
整个建筑的外墙采用砖块、镀锌钢板和窗户系统完成。与南路相邻的立面采用砖石砌筑,外排间隔墙保温,墙面保密性强。
Whole building's external facing is finished using bricks and galvanized steel sheets and window system. The facade adjacent to the southern road is finished using brick masonry with space between the rows on outside heat-insulation wall method wall for privacy.
© Yoon Dong-gyu
尹东奎
Architects SMART ARCHITECTURE
Location Pa-dong, South Korea
Lead Architects Kim Gun-cheol
Project team Lee seung-eun
Area 199.19 m2
Project Year 2017
Photographs Yoon Dong-gyu
Category Houses
Manufacturers Loading...
客服
消息
收藏
下载
最近










































