查看完整案例


收藏

下载
© Nic Granleese
C.Nic Granleese
“这种设计与环境、材料选择和空间规划之间的联系让人产生了共鸣。雅芳的名字来源于曾经占据这座建筑的宏伟的昆士兰豪宅,它是为一个年轻的家庭设计和建造的,坐落在乌蒙迪集镇中心一处高耸的山坡上。”
"Simplicity resonates through the design in its connection to environment,material selection and spacial planning. Named after the majestic Queensland house that once occupied the site, Avonlea was designed and built for a young family and stands on a commanding elevated hillside site in the centre of the market town of Eumun
© Nic Granleese
C.Nic Granleese
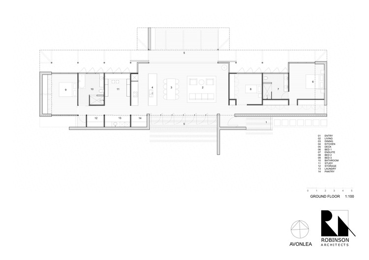
Ground Floor Plan
© Nic Granleese
C.Nic Granleese
9年前,昆士兰的老房子被烧毁了。这幅土地的独特之处在于它的中心位置和面积(5英亩),与一家经批准的区域开发公司(DA)合作,分出了6块土地。这片空置土地的新主人走近乔里恩,设计了这座新房子。考虑到该分区对该镇的影响,人们对如何处理该分区进行了大量的思考。他们决定卖掉6幅中的3幅,建造一幅,另外2幅保留作花园之用。我们认为这是一个难得的机会,可以在城市中如此突出的位置获得一些高质量的建筑。这些街区被私下出售给直接通过罗宾逊建筑师事务所购买的独立买家。唯一的条件是RA将设计这些建筑。它们在规模和预算上都很适中,并且对这个城市的建筑环境和特色都很敏感。乔里恩对该遗址的未来非常感兴趣,不仅因为它对该镇的影响(我们在尤蒙迪的做法),而且老房子曾经是他和他的兄弟们小时候的家。
The old Queensland house burnt down 9 years ago. The site which was unique given is central location and size (5 acres) was sold with an approved DA for a six lot subdivision. The new owners of the vacant land approached Jolyon to design the new house. Considerable thought was given to how the subdivision was to be handled given its impact on the town. It was decided to sell off just 3 of the 6 lots, build on one and retain the other 2 for garden. We saw this as a one off opportunity to get some quality buildings in such a prominent location in town. The blocks were sold privately to independent buyers coming directly through Robinson Architects office. The only condition was that RA would design the buildings. All are modest in terms of size and budget and show a sensitivity to the immediate built environment and character of the town. Jolyon had a keen interest in the future of the site, not only for its impact on the town (our practice located in Eumundi) but the old house had once been the family home when he and his brothers were boys.
© Nic Granleese
C.Nic Granleese
新房子的简约很简单-从长远来看,它将是他们的家。现在,和他们的小儿子在离主人很近的卧室里规划未来是很重要的。当他变老时,房子另一端的客房,有自己的外部通道,就会成为他的卧室。客户和建筑师都认为,未来的房子是居住在工地上的房屋的悠久历史的延续,这座新房子将经受住建筑和工艺质量方面的时间考验。
The brief for the new house was simple- it would be their family home for the long term. Planning for the future was important with their young son in a bedroom close to the master for now. The guest bedroom at the other end of the house with its own access to the outside will become his bedroom when he gets older. The future house was imagined by both client and architect to be a continuation of the long history of people living in a house on the site, and that the new house would stand the test of time both architecturally and quality of workmanship.
Section Scheme
分段计划
卧室位于中央居住空间的尽头,由单一的走廊连接起来。周密的计划避免了浪费空间,如储物柜、储藏室等。以这个轴为食。该布局提供了机会,以密切或分离的安排卧室,以适应家庭的动态。长线图以直角定位于北面的库罗伊山顶。
The bedrooms bookend the central living space and are connected by a single hallway. Careful planning has avoided wasted space with storage cupboards, pantry etc. feeding off this axis. The layout provides opportunities for closeness or separation in the arrangement of bedrooms to accommodate the family dynamic. The long linear plan is orientated at right angles to the top of Cooroy Mountain to the north.
© Nic Granleese
C.Nic Granleese
所有客房都可以看到不断变化的山景和凉爽的交叉通风微风。尤蒙迪地区独特的红土在长线结构南侧的夯土墙中展示,这也是对附近小学和市场交通噪音的缓冲。一个剃须刀薄钢屋顶与大屋檐遮住了建筑物,并提供了与夯土的自然元素形成对比。
All rooms enjoy views to the ever-changing mountain vista and cooling cross ventilating breezes. The Eumundi district’s distinctive red earth is showcased in the rammed earth walls on the southern side of the long linear structure that also act as a buffer to the noise of the nearby primary school and market traffic. A razor thin steel roof with large eaves shade the building and offers a contrast to the natural elements of the rammed earth.
© Nic Granleese
C.Nic Granleese
Architects Robinson Architects
Location Eumundi, Australia
Lead Architect Jolyon Robinson
Area 300.75 m2
Project Year 2017
Photographs Nic Granleese
Category Houses
Manufacturers Loading...
客服
消息
收藏
下载
最近


















