查看完整案例


收藏

下载
架构师提供的文本描述。该项目位于科威特Shaab,地块面积为500平方米。该住宅计划采用清洁的,当代的美学设计,围绕着一个有两个孩子的年轻家庭的需要。小区位于街道对面的邻里公园,屋内大多数房间和空间的业主都鼓励人们欣赏公园的景色。
Text description provided by the architects. The project is located in Shaab, Kuwait with a plot area of 500 m2. The house plan applies a clean, contemporary aesthetic designed around the needs of a young family with 2 children. The plot is located across the street from a neighborhood park and views towards the park were encouraged by the owners from most rooms and spaces within the house.
© Nelson Garrido
NelsonGarrio
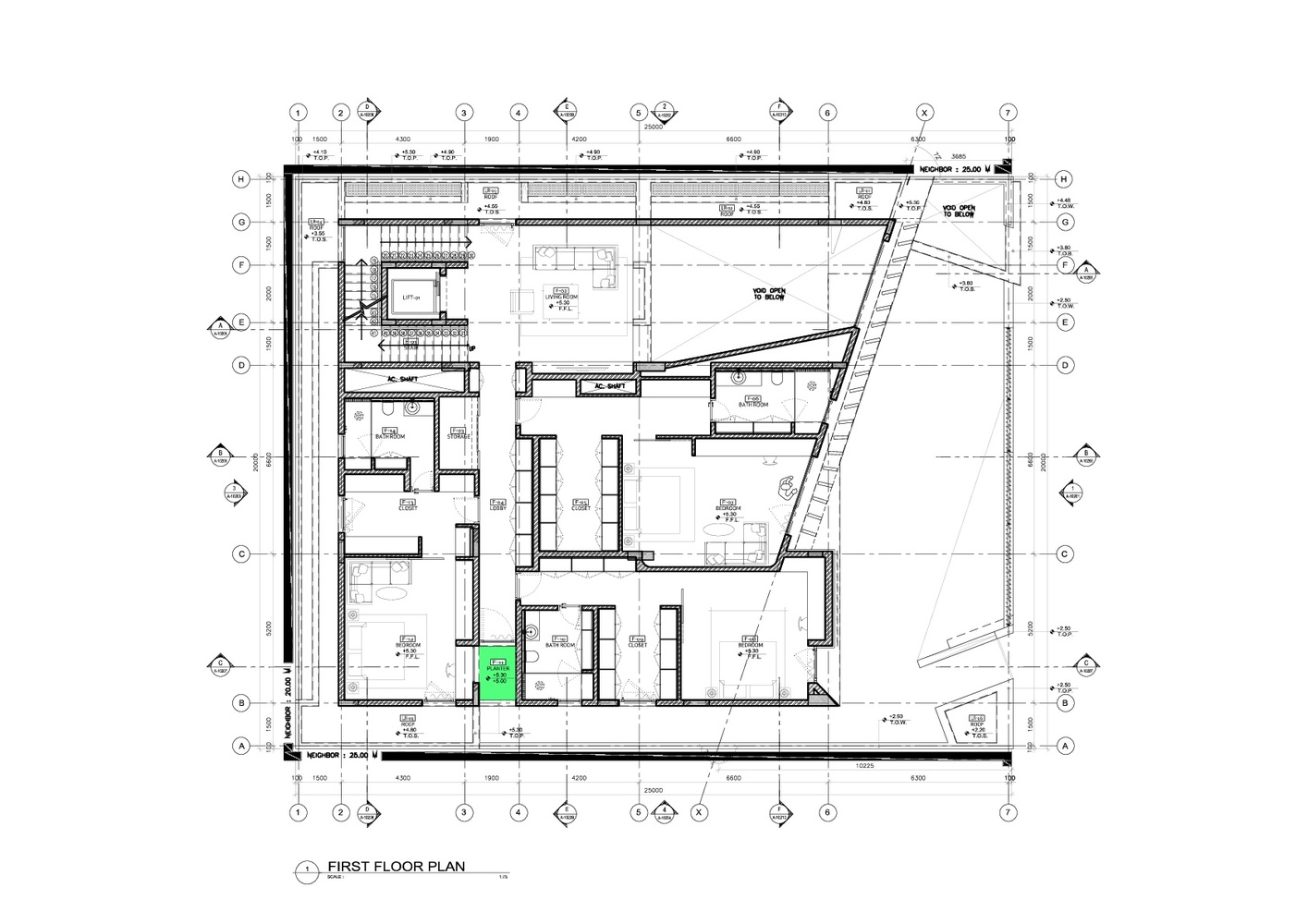
上层包括3间卧室和一间主套房,此外还有一个俯瞰公园、地板到天花板的屋顶露台,用来为直接在前面街道上的卧室提供隐私。此外,百叶窗提供了一定程度的阴影,从严酷的南部/西部的阳光暴露。
The upper floors contain 3 bedrooms and a master suite in addition to a roof top terrace which overlook the park - floor to ceiling louvres were utilized to provide privacy for the bedrooms from the street directly in front. Additionally, the louvres provide a degree of shading from the harsh south/west sun exposure.
© Nelson Garrido
NelsonGarrio
Ground Floor Plan
© Nelson Garrido
NelsonGarrio
一楼采用U形平面,拥抱景观花园.在U计划的中心是一个室外露台,固定日常厨房,接待空间,以及日常生活区域。厨房有可折叠的地板到天花板的玻璃窗,可以打开露台,也可以从旁边的主要接待空间进入,在另一边的日常生活也可以到达。可折叠的地板到天花板玻璃隔板沿露台的边缘,当打开允许自由流动和移动从接待,生活,或厨房通过露台和花园。
The ground floor adopts a U-shaped plan which hugs a landscaped garden. In the center of the U plan is an outdoor covered terrace which anchors the daily kitchen, reception space, as well as the daily living area. The kitchen, with foldable floor to ceiling glass windows can open up onto the terrace; which is also accessible from the main reception space one on side, and the daily living on the other. Foldable floor to ceiling glass partitions line the edge of the terrace and when opened allow for free flow and movement from reception, living, or kitchen through to the terrace and into the garden.
© Nelson Garrido
NelsonGarrio
客服
消息
收藏
下载
最近



















