查看完整案例


收藏

下载
© Neve Tzedek
C.Neve Tzedek
架构师提供的文本描述。这座房子坐落在特拉维夫历史上保存完好的街区之一。M型住宅的设计理念是规划一座现代城市别墅,将当地的乡土风格与现代建筑结合起来。该项目描述了一个欧洲家庭的度假之家,这家家庭常年接待亲戚和朋友。这座房子必须容纳各种功能,并为居民们保持一种“舒适的气氛”。
Text description provided by the architects. The House is set in one of the historically preserved neighborhoods' of Tel Aviv. The M-house design concept was planning a modern urban villa which combines local vernacular with modern architecture. The program has given described a vacation home for a European family which hosts relatives and friends all year long. The house had to accommodate the various function and still keeping a “cozy atmosphere” for the inhabitants.
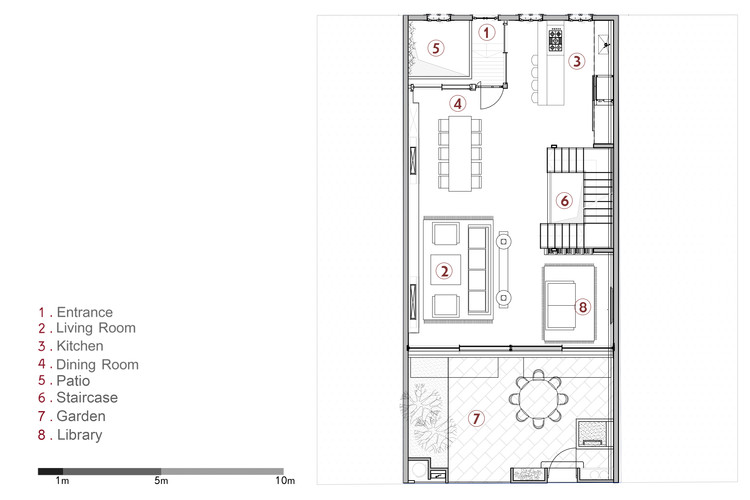
Ground Floor Plan
© Neve Tzedek
C.Neve Tzedek
M屋是一个典型的排屋,有两个正面,一个朝北,另一个朝南。外部花园位于南面的立面上,是作为客厅内部空间的延伸而规划的。北面的立面设计成一个露台,作为房子和街道之间的室外门厅。此外,天井的作用是半透明的“光井”,在白天吸引反射的北方阳光。
M house is a typical row house with two facades one facing north and the other facing south. The exterior garden is located on southern elevation; it was planned as an extension of the interior space of the living room. The northern elevation was designed as a patio that acts as outdoor foyer between the house and the street. Furthermore, the patio functions as a translucent “light well” which attracts reflected northern sunlight during the day.
房屋的底层平面图布局被认为是一个“开放的计划”。这个计划把房子里的大部分公共活动都集中起来了:起居室、读书角、就餐区和厨房。设计的意图是分散这些职能的界限,以便在这些领域之间创造一种视觉上的透明度。底层的玻璃立面是一个动态隔断,允许透过房屋空间进行长角度透视。
The Houses ground floor plan layout was conceived as an “open plan”. The plan assembles most of all the public activities of the house: living room, a reading corner, dining area, and kitchen. The design intention was to diffuse the boundaries of the functions in order to create a visual transparency between these areas. The glass elevation on the ground floor was intended to be a dynamic partition allowing a long perspective through the house spaces.
© Neve Tzedek
C.Neve Tzedek
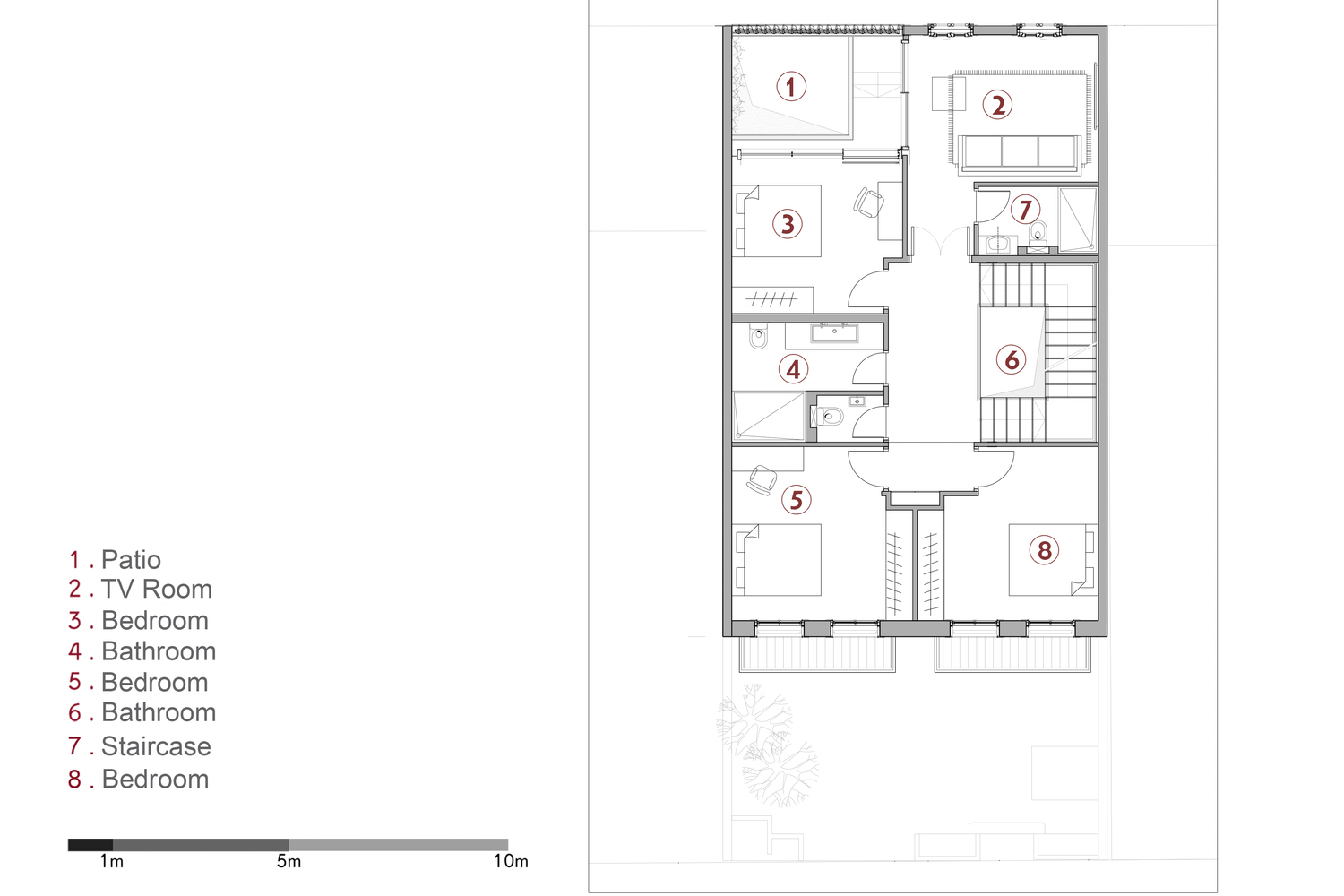
在室内,设计受到强烈的现代法国和意大利家具感的影响。选择温暖和柔软的颜色和织物,以矛盾的主要因素,在内部的房子,钢图书馆和楼梯。这个黑色的钢元素的楼梯和图书馆有一个框架质量的内部空间,它框架所有的内部视图向外部空间。
On the interior, the design is influenced by a strong sense of modern French and Italian furniture. Warm and soft colors and fabrics were chosen to contradict the main element in the interior of the house the steel library and stairs. This black steel element of the stairs and library has a framing quality within the interior space, it frames all interior views towards the exterior space.
© Neve Tzedek
C.Neve Tzedek
在房子的较低部分,地下室作为一个音频和娱乐室,这是计划毗邻的露台。上层是所有的卧室套房。在这些房间里,露台被设计成可以看到南方花园。建筑师的最初计划是寻找一种结合当地参考资料和现代地中海元素的建筑语言。这些地方元素,如露台,梯田和花园被重新定义了现代的解释。
In the lower part of the house, the basement serves as an audio and entertainment room which was planned adjacent to the patio. The upper floors hold all the bedroom suites. In these rooms, terraces were designed to view the southern garden. The architect's initial plan was to search for an architectural language which combines local references and contemporary Mediterranean elements. These local elements such as a patio, terraces, and garden are redefined with a modern interpretation.
© Neve Tzedek
C.Neve Tzedek
Architects Paz Gersh Architects
Location Tel Aviv-Yafo, Israel
Design Team Zvi Gersh (principal), Zohar Shvarzberg, May Alon
Area 350.0 m2
Project Year 2017
Photographs Neve Tzedek, Amit Giron
Category Houses
Manufacturers Loading...
客服
消息
收藏
下载
最近





























