查看完整案例

收藏

下载
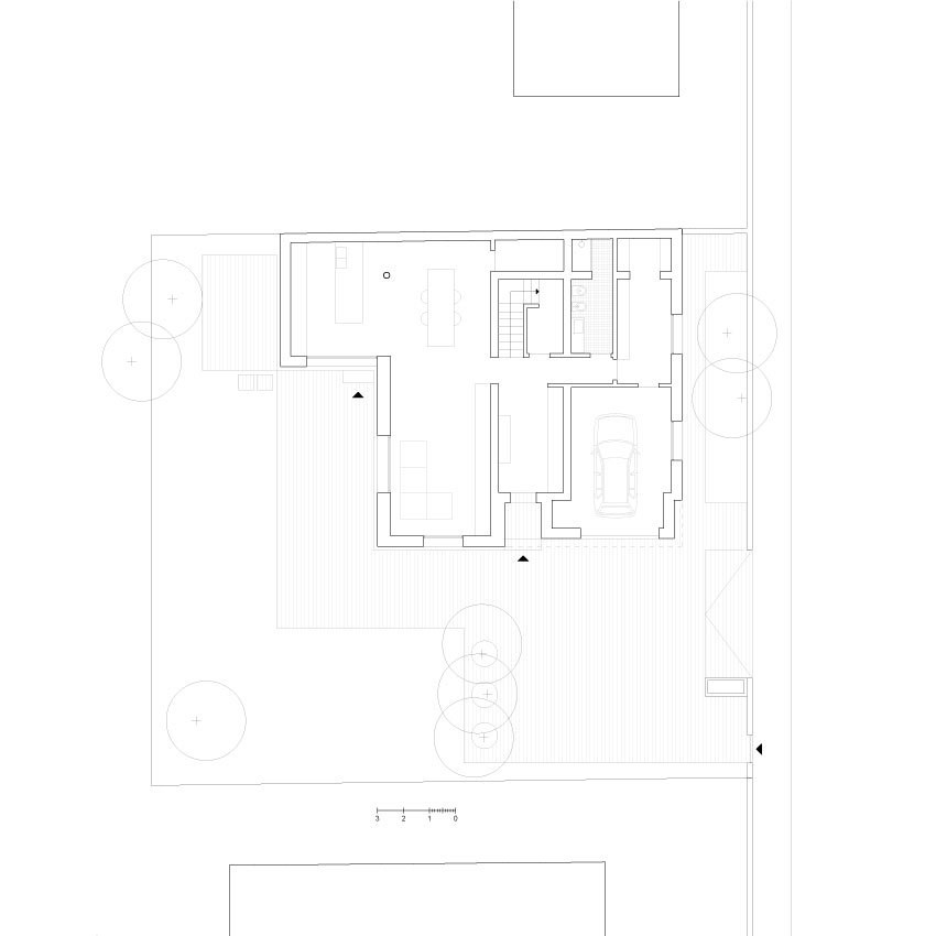
该项目涉及到70年代早期的一处住宅的翻新和扩建,该住宅位于Abano Terme的一个住宅区。项目场地位于地面之上的两层,它忠实于最初的规划,每层有四个大房间,通过中央走廊分布。客户的职能需要与现有的分配相匹配,因此,拟议的项目将尽可能保留现有的砌体,而不破坏原来的计划,从而导致经济上可持续的项目。
重要的变化将主要涉及底层,在那里,需要获得一个广泛的居住区域与花园密切的关系,将需要扩大建筑。立面将通过向私人花园增加大开口来重新诠释,后者将提供额外的自然采光。一楼有衣帽间、起居室、厨房、食品储藏室、浴室、储藏室、储藏室、储藏室、储藏室、洗衣房、车库等活动室和社区活动室。后者是一个覆盖着铝板的体积块,在以灰泥灰泥为特征的新立面的构成中起着重要作用。在同一层,起居区将通过大的开口与花园紧密相连,创造一个理想的外部延伸:一个在阳光明媚的日子里供家庭使用的放松空间。
楼上将被用作睡觉的地方,包括两间单人卧室、一间浴室和一间卧室,以及一间隔壁浴室和步入式衣橱。新建筑的个性将会因所采用的材料的选择而重新焕发活力;粗糙的灰泥墙面与优雅的金属表面之间的对比。
客服
消息
收藏
下载
最近



























