查看完整案例


收藏

下载
© Rasmus Norlander
C.Rasmus Norlande
架构师提供的文本描述。在卢塞恩湖的西南端,在皮拉特斯脚下,坐落在一片树木茂密的山地景观中,有着奥瓦尔德纳社区Alpnach。Küng家族经营着同名的第三代当地木材建筑公司,在那里建造了自己的、创新的住宅建筑。有意识地,该建筑寻求接近传统的欧巴顿木建筑的建筑以及一个建设性的水平,但继续发展这些意义上的当代身份。这样,个体的主题和情绪就脱离了语境,被浓缩成一种新的、独立的表达方式。
Text description provided by the architects. At the southwestern tip of Lake Lucerne, at the foot of Pilatus, nestled in a wooded mountain landscape, lies the Obwaldner community Alpnach. The Küng family, which runs the third-generation local timber construction company of the same name, built their own, innovative residential building there. Consciously, the building seeks to be close to the traditional Obwalden wooden buildings on an architectural as well as a constructive level but continues to develop these in the sense of a contemporary identity. In this way, individual motifs and moods are taken out of context and condensed into a new, independent expression.
© Rasmus Norlander
C.Rasmus Norlande
该地块位于一个建筑异质性居住区的中间。在地势倾斜的地势中,用竹子加固的坚固的混凝土基座构成了房屋的基础。在这座基座之上,矗立着一个三层,优雅的木结构,这是由公司自己的实木系统创造的。木材的独占使用决定了建筑的建筑表现形式。最重要的是,这两种不同的设计和功能,塑造了房子的“脸”。因此,甚至建筑物的遮阳元件也被发展成木制的、自动化的火车商店。
The plot is located in the middle of an architecturally heterogeneous residential area. In the sloping topography of the plot, the solid, concrete pedestal, reinforced with bamboo, forms the foundation of the house. Above this pedestal rises a three-story, elegant timber construction, which was created from the company's own solid wood system. The exclusive use of wood determines the architectural expression of the building. Above all, the two arbors, which differ in design and function, shape the "face" of the house. Consequently, even the shading elements of the building were developed as wooden, automated train shops.
© Rasmus Norlander
C.Rasmus Norlande
包括屋顶在内的所有外部和内壁由未经处理的未经处理的固体木材元件制成并且完全分配附加的绝缘材料。楼板被设计成巨大的板桩天花板。没有金属的家,没有胶水,没有化学建筑材料,只有纯木。
All exterior and interior walls including the roof are made of untreated, untreated solid wood elements and completely dispense with additional insulation materials. The floor slabs are designed as massive board pile ceilings. A home without metal, without glue and without chemical building materials - only the pure wood.
© Rasmus Norlander
C.Rasmus Norlande
由于先进的加工技术和数百年的木材建筑知识,当地用当地云杉/银杉建造的房屋创造了一座用自然和生态建筑材料建造的房子。在蓄热、电烟雾屏蔽、声防火等方面,该系统远远优于传统的木材结构。以一贯的方式,进一步的内部工作也是由天然建筑材料创造的。
Thanks to state-of-the-art processing technology and centuries-old timber construction knowledge, local houses made of local spruce/silver firs created a house made of natural and ecological building materials. In matters of heat storage, shielding of electrosmog, as well as in sound and fire protection, this system is far superior to conventional wood construction. In a consistent manner, the further interior work was also created from natural building materials.
North Elevation
北立面图
© Rasmus Norlander
C.Rasmus Norlande
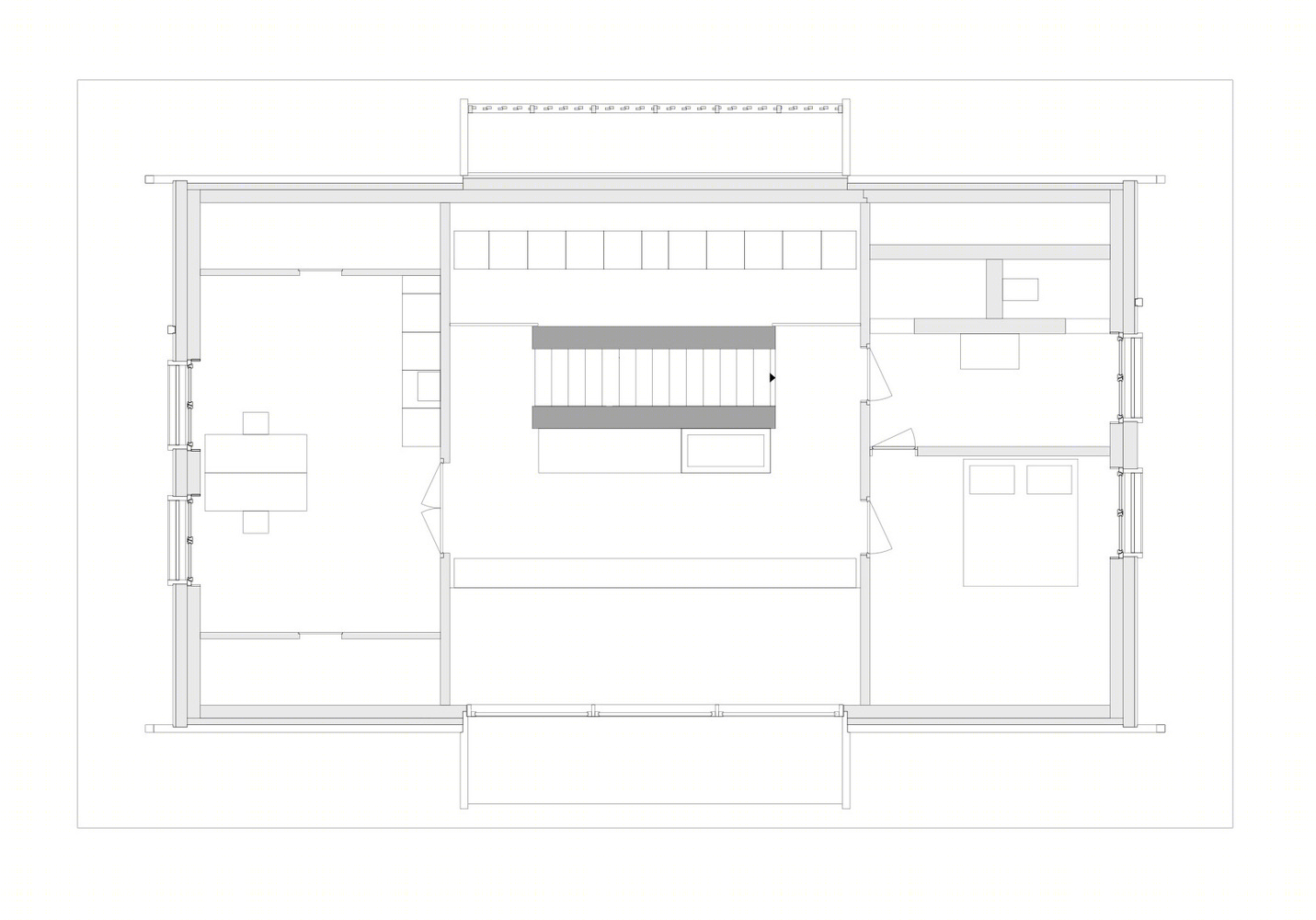
如果你从正门进入房子,内部就会发展成一个中心通道核心周围的连续体。选择不同的方式在不同的房间创造空间慷慨的印象。这是进一步加强在底层的水平使用的房间高滑动门和上层在垂直通过两层画廊区域。
If you enter the house from the main entrance, the interior develops as a continuum around a central access core. The option of going different ways between the individual rooms creates the impression of spatial generosity. This is further enhanced on the ground floor in the horizontal by the use of room-high sliding doors and on the upper floor in the vertical through the two-story gallery area.
© Rasmus Norlander
C.Rasmus Norlande
中央发展核心是由夯土制成的,其材料是从自己的挖掘坑中提取出来的。它连接了四层楼,标志着房子的中心。核心创造了一个令人兴奋的,真实的对比,否则明亮和宽敞的房间。由于它靠近木材燃烧的炉子,它确保了一个理想的,延迟释放所有地板的热量,并完美地调节整个房子的湿度。塔德拉克特的墙壁在潮湿的牢房里,酪蛋白在入口处的地板上,以及在浴室里,完成了各种天然材料。
The central development core is made of rammed earth, the material of which was extracted from its own excavation pit. It connects the four floors and marks the center of the house. The core creates an exciting, earthy contrast to the otherwise bright and spacious rooms. Thanks to its proximity to the wood-burning stove, it ensures an ideal, delayed release of heat over all floors and regulates the humidity in the entire house perfectly. Tadelakt for the walls in the wet cells and casein for the floors in the entrance area as well as in the bathroom complete the range of natural materials.
© Rasmus Norlander
C.Rasmus Norlande
Architects Seilerlinhart
Location Alpnach, Switzerland
Lead Architect Søren Linhart
Area 136.0 m2
Project Year 2018
Photographs Rasmus Norlander
Category Houses
Manufacturers Loading...
客服
消息
收藏
下载
最近



































