查看完整案例


收藏

下载
导语: 新中式风格不是纯粹的元素堆砌,而是通过对传统文化的认识,将现代元素和传统元素结合在一起,以现代的审美需求来打造富有传统韵味的事物,让古典与现代完美结合,传统与时尚并存。
本项目女业主对原有的空间规划和起居生活不太满意,希望通过改造能让空间更舒适,并且重新散发光芒。
通过现场实际勘察,我们发现了原有室内布局存在的一些问题,比如客厅格局过于空旷、陈设物品摆放随意、人员动线不顺畅、中央空调机位等设备类摆放不合理等等。由此我们对以上问题进行了重点改造,并根据客户需求选择了新中式风格。
1、空间改造/硬装设计
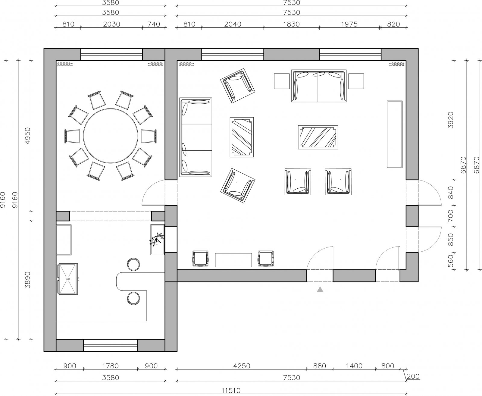
客厅中央有一道南北方向的横梁,如何在隐藏梁位的同时设计好中央空调的出风口位置,并且空间看起来不压抑是本案的难点。
经过设计改造,我们全面调整了客厅格局,重新定义了空间的中轴线,满足空间对称的同时,增强了秩序感。我们通过吊顶和陈设摆放对客厅进行区域划分,从而让空间更加通透,同时也满足了会客、品茶、休息、娱乐等功能。
吊顶设计:吊顶划分为客厅区和门厅区。
客厅区吊顶:我们强调的是家庭的凝聚和围合,所以在灯光设计时,我们选择了无主灯的设计,解决了之前客厅照明不足的问题。
门厅区吊顶:为了隐藏中间梁位,我们通过制作假梁构成多个中式传统藻井天花,同时也成为了进入客厅的过渡区域。如此设计也实现了对中央空调侧出风的遮挡,避免出风口直吹。
餐厅设计:通过传统元素的运用以强调“天圆地方”。“圆”体现施与和灵活;“方”体现承载与稳定。宴请宾客时也能让朋友感受到业主的高尚品格。
地面墙面:地面通铺深色哑光砖,这样可以减弱空间的方向性,而墙面以深胡桃木条将空间区分,以满足空间的对称性,深色与白色墙面的对比,体现出徽派儒雅之气。
二、陈设搭配/色彩选择
陈设选择时,没有选择传统清式家具,而是选择了有明式简洁感的现代家具,让空间看起来没有沉闷感。
沙发的选择以带有木色边框的沙发为主,可以增加家具的体量感,而米色的使用,让整体素雅的空间看起来更加温暖、舒适、放松。而蓝色的点缀,则让空间看起来更加灵动。
由于客厅的空间比较大,所以选择了以山为主题的壁纸,体现出空间的气势磅礴。而餐厅则选择了花鸟为主题的壁纸,在饮食的同时,心情更加愉悦。绿植的点缀,让空间看起来充满活力。
本案中,空间改造整体采用新中式风格,运用传统中式元素,旨在传承中国传统文化。
客服
消息
收藏
下载
最近









