查看完整案例


收藏

下载
架构师提供的文本描述。这所房子位于曼谷一个住宅区的一个安静的社区里。这座有27年历史的房子是由建筑师萨伦尤·乌维塞特瓦塔纳(Sarunyu Uawisetwattana)和纳巴特·桑帕松(Napat Sampaothong)改造的,他们热衷于设计和自然,尤其是“盆景”。
Text description provided by the architects. This house is in a quiet neighborhood in a residential zone in Bangkok. It was renovated from the 27-year-old house by the architects; Sarunyu Uawisetwattana and Napat Sampaothong, who are passionately in love with design and nature, especially “bonsai”.
Text description provided by the architects. This house is in a quiet neighborhood in a residential zone in Bangkok. It was renovated from the 27-year-old house by the architects; Sarunyu Uawisetwattana and Napat Sampaothong, who are passionately in love with design and nature, especially “bonsai”.
© Baanlaesuan Magazine , Sitthisak Namkham
Baranlaesuan杂志,SitisakNamkham
这座房子的故事在装修开始之前就开始了,他们花了很大的精力去寻找一个有可能被开发成他们所设想的房子的地方。经过多年的发现,他们发现了这座300平方米的建筑,它在过去的15年里被废弃了。
The story of this house started before the renovation had begun, they have put a lot of effort on seeking for a place where could potentially be developed to the house that they envisioned. After years of finding, they discovered this 300 square-meter structure which was abandoned for the past 15 years.
The story of this house started before the renovation had begun, they have put a lot of effort on seeking for a place where could potentially be developed to the house that they envisioned. After years of finding, they discovered this 300 square-meter structure which was abandoned for the past 15 years.
改进的重点是落实平衡基本功能需求与绿地和利用自然在日常生活中有限的现有周界的想法。他们认为,与自然可持续地生活有助于提高生活质量和有效减少能源消耗。
The improvement focuses on implementing the idea of balancing essential functional needs with green space and utilizing nature in daily life in the limited existing perimeter. They believe that living sustainably with nature could help to enhance the quality of life and efficiently reduce energy consumption.
The improvement focuses on implementing the idea of balancing essential functional needs with green space and utilizing nature in daily life in the limited existing perimeter. They believe that living sustainably with nature could help to enhance the quality of life and efficiently reduce energy consumption.
© Baanlaesuan Magazine , Sitthisak Namkham
Baranlaesuan杂志,SitisakNamkham
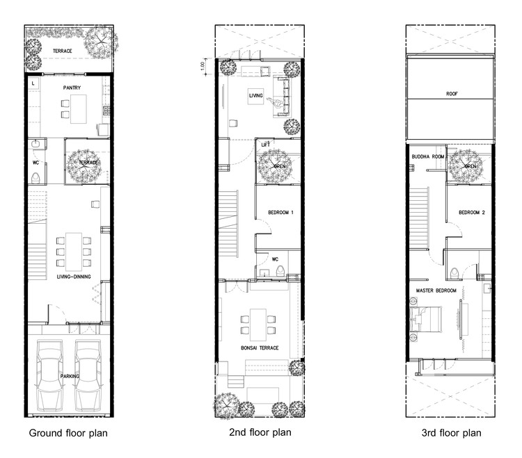
这栋房子是一栋三层半独立式住宅,包括两车车库、客厅和餐厅、工作区、三间卧室、三个浴室、祈祷室,最重要的是,Bonsais专用空间。这个空间使这个地方成为一个具有自己特殊功能特性的地方。
This house is a three-story semidetached house, comprises of two-car garage, living and dining space, working area, three bedrooms, three bathrooms, pray room, and most importantly; the dedicated space for bonsais. This space makes the place become one-of-a kind place with its own special functional identity.
This house is a three-story semidetached house, comprises of two-car garage, living and dining space, working area, three bedrooms, three bathrooms, pray room, and most importantly; the dedicated space for bonsais. This space makes the place become one-of-a kind place with its own special functional identity.
这座房子的主要特征之一是中央庭院,它在视觉和物理上都是房子的核心。它可以从房子的每一个房间看到,显着地将自然光带入房子,并允许自然通风。
One of the main feature of this house is the central courtyard which serves as the core of the house visually and physically. It can be seen from every rooms in the house and significantly brings natural light into the house and allows natural ventilation.
One of the main feature of this house is the central courtyard which serves as the core of the house visually and physically. It can be seen from every rooms in the house and significantly brings natural light into the house and allows natural ventilation.
© Baanlaesuan Magazine , Sitthisak Namkham
Baranlaesuan杂志,SitisakNamkham
房子里最重要的空间是盆景露台,业主通常在那里消磨时间。这幢房子的现有规划是在二楼有一间卧室,他们把这一空间变成一个像样大小的露台,供车间和托儿所用的盆景之用,他们还在庭院的现有阳台上增加了一部定制电梯,以便在两层间运送树木和工具。
The most important space in the house is the bonsais terrace where the owners normally spend time. The existing planning of this house has a bedroom on the second floor, they turn this space into a decent size balcony for the workshop and nursery area for bonsais, they also add a custom-made lift to the existing balcony in the courtyard for transporting trees and tools between levels.
The most important space in the house is the bonsais terrace where the owners normally spend time. The existing planning of this house has a bedroom on the second floor, they turn this space into a decent size balcony for the workshop and nursery area for bonsais, they also add a custom-made lift to the existing balcony in the courtyard for transporting trees and tools between levels.
© Baanlaesuan Magazine , Sitthisak Namkham
Baranlaesuan杂志,SitisakNamkham
主人看到这房子是“一种生活用的大锅”,它有他们所爱的一切,反映了他们的生活方式,代表着自己的概念。他们所投资的一切都是值得的,他们相信这将给他们带来好运和繁荣。
The owners see this house as “A big pot for Living”, it has everything that they love, reflects their lifestyle and represent its own concept. This house is worth everything that they have invested, and they believe that it will bring them good fortune and prosperity.
The owners see this house as “A big pot for Living”, it has everything that they love, reflects their lifestyle and represent its own concept. This house is worth everything that they have invested, and they believe that it will bring them good fortune and prosperity.
© Baanlaesuan Magazine , Sitthisak Namkham
Baranlaesuan杂志,SitisakNamkham
Architects S+S Architects
Location Bangkok, Thailand
Category Houses
Architects in Charge Sarunyu Uawisetwattana, Napat Sampaothong
Area 300.0 m2
Project Year 2017
Photographs Baanlaesuan Magazine , Sitthisak Namkham
Manufacturers Loading...
客服
消息
收藏
下载
最近





























