查看完整案例


收藏

下载
架构师提供的文本描述。这是一片建立山脊的土地,是在高生长时期在当地城市郊区开山而成的。有些房屋自出售以来就已建造,有些因旧住宅区而略有不规则的景观,如重建和翻新或新建的房屋。作为一所即将在这里建造的房子,我们认为房子是合适的,就好像我们已经接受了这样的违规行为一样。
Text description provided by the architects. The site is a land for the establishment of ridges, made by cutting out mountains in the suburbs of local cities during the period of high growth. Some houses have been built since the time they were sold, some slightly irregular landscapes spread because of the old residential areas, such as rebuilt and refurbishment or renovation or newly built houses . As a house to be built here, we thought that houses would be appropriate as if we had accepted such irregularities.
Text description provided by the architects. The site is a land for the establishment of ridges, made by cutting out mountains in the suburbs of local cities during the period of high growth. Some houses have been built since the time they were sold, some slightly irregular landscapes spread because of the old residential areas, such as rebuilt and refurbishment or renovation or newly built houses . As a house to be built here, we thought that houses would be appropriate as if we had accepted such irregularities.
© Kenta Hasegawa
(3)长谷川甘田
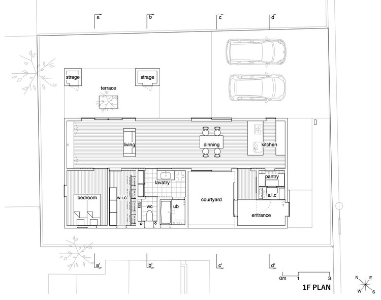
首先,作为一种建筑方式,不是在像周围环境一样的斜坡的前路上建房子,而是留出一个空白处,直接从斜路和我捡到的房屋西侧的切割部分穿过工地。这样,你就不会离前面的路太远,保持离城市很远的感觉,可以在东侧有一个明亮的花园和停车场,这个阴影对北边的邻近房子不会有太大影响。
First of all, as a way of construction, instead of setting up a house by setting back on the front road which is a slope like the surroundings, instead of building a house, a blank space is made so as to cross the site straight from the cutting part connecting the oblique road and the premises I picked up the volume to the west side. By doing so, you will not be too far from the front road, keep a good sense of distance from the city, a little bright garden and parking lot can be secured on the east side, this shadow is not dropped too much for the neighboring house on the north side.
First of all, as a way of construction, instead of setting up a house by setting back on the front road which is a slope like the surroundings, instead of building a house, a blank space is made so as to cross the site straight from the cutting part connecting the oblique road and the premises I picked up the volume to the west side. By doing so, you will not be too far from the front road, keep a good sense of distance from the city, a little bright garden and parking lot can be secured on the east side, this shadow is not dropped too much for the neighboring house on the north side.
© Kenta Hasegawa
(3)长谷川甘田
© Kenta Hasegawa
(3)长谷川甘田
有一个地方可以经过宜人的风,建筑物靠近西侧,这样你就可以控制不必要的西边阳光。在此之上,我在顶上安装了一个偏心的山墙屋顶,使我到达西边的体积,并通过改变屋檐的外露或缺口来对内外环境做出反应。在一间屋子的大空间里,狭小的空间(如卧室、浴室和壁橱)彼此挨着排列,为了从小空间到其他地方,它总是穿过大空间。
There is a place to pass a pleasant wind and the building is close to the west side so you can control unnecessary western sun. On top of that, I applied an eccentric gable roof at the apex to the volume that I got to the west, and responded to the environment inside and outside by changing the eaves' out or notching. Inside the big space of the one-room stretched all along the long side, small space such as a bedroom, a bathroom, and a closet is arranged next to each other, and in order to go from the small space to other places it always goes through the big space It is.
There is a place to pass a pleasant wind and the building is close to the west side so you can control unnecessary western sun. On top of that, I applied an eccentric gable roof at the apex to the volume that I got to the west, and responded to the environment inside and outside by changing the eaves' out or notching. Inside the big space of the one-room stretched all along the long side, small space such as a bedroom, a bathroom, and a closet is arranged next to each other, and in order to go from the small space to other places it always goes through the big space It is.
不同的材料分配到每个地方,如油漆,胶合板,布等。在增加或减少空气的数量,如宽和高明亮的地方,狭窄和低平静的地方,狭窄但高提升的感觉等,我做了不同的地方,不管程序。这种不规律给生活在这个地区的人带来了色彩,这是一种内陆气候,全年的温差都很大。
Different materials are assigned to each place such as painting, plywood, cloth etc. after increasing or decreasing the amount of air such as wide and high bright place, narrow and low calming place, narrow but high uplift feeling etc , I made various places regardless of the program. This irregularity gives coloring to living in this area, which is an inland climate where the difference in temperature is large throughout the year.
Different materials are assigned to each place such as painting, plywood, cloth etc. after increasing or decreasing the amount of air such as wide and high bright place, narrow and low calming place, narrow but high uplift feeling etc , I made various places regardless of the program. This irregularity gives coloring to living in this area, which is an inland climate where the difference in temperature is large throughout the year.
© Kenta Hasegawa
(3)长谷川甘田
客服
消息
收藏
下载
最近




















