查看完整案例


收藏

下载
© Mikiko Kikuyama
(C)Kikuyama Mikiko
架构师提供的文本描述。高架装配是为一个著名的作家/艺术家/花园设计师夫妇和两个年幼的孩子而设计的,在布鲁克林的RedHook有第二套公寓,作为可出租的租户空间。这座原本建于1900年左右的三层联排别墅,在超级风暴桑迪以八英尺半高的水淹没地下室和底层时,遭到了严重破坏。建筑物的一部分倒塌了,需要进行彻底的肠道修复。该项目与纽约市住房回收计划“重建IT”密切合作,成为该市第一个提升现有附属砖石屋面的项目,以便底层将位于高水平线之上两英尺处,即所谓的“设计洪水高程”(DFE)。
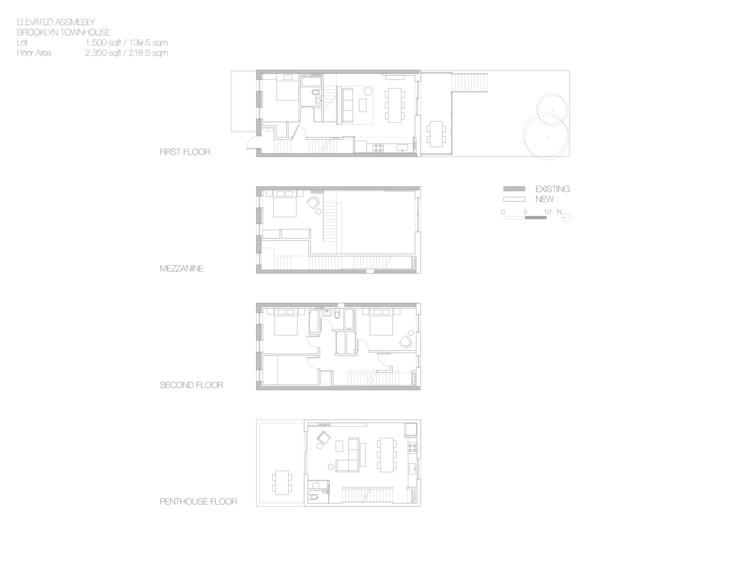
Text description provided by the architects. Elevated Assembly was designed for a noted writer/artist/garden designer couple with two young children, with a second apartment as rentable tenant space in Red Hook, Brooklyn. The three-story townhouse, built originally around 1900, was severely damaged when Superstorm Sandy flooded the basement and ground floor with eight and a half feet of water. A portion of the building collapsed, requiring a complete gut renovation. Working closely with the New York City housing recovery program “BUILD IT BACK”, this project became the first in the city to elevate an existing attached masonry rowhouse so that the ground floor would be two feet above the high water line, the so-called Design Flood Elevation (DFE).
Text description provided by the architects. Elevated Assembly was designed for a noted writer/artist/garden designer couple with two young children, with a second apartment as rentable tenant space in Red Hook, Brooklyn. The three-story townhouse, built originally around 1900, was severely damaged when Superstorm Sandy flooded the basement and ground floor with eight and a half feet of water. A portion of the building collapsed, requiring a complete gut renovation. Working closely with the New York City housing recovery program “BUILD IT BACK”, this project became the first in the city to elevate an existing attached masonry rowhouse so that the ground floor would be two feet above the high water line, the so-called Design Flood Elevation (DFE).
© Mikiko Kikuyama
(C)Kikuyama Mikiko
该项目的主要概念和名称强调建筑物的拆除是对破坏和恢复一套新的环境条件的过程的承认。这种设计要求创造了充满自然光的戏剧性的开放式阁楼空间,它将外部和内部空间融合在一个延伸的、凸起的花园中,由一位业主和她与之合作的公司“城市绿色”(UrbanGreen)设计。抗洪性设计准则在整个过程中被纳入,所有楼层的高度也由于将一楼定位在DFE之上而被提高。符合新的法规要求,使整个建筑物的高度得以提高,容纳新的顶层公寓加设。
The main concept and name of this project emphasized the lifting of the building as a recognition of the process of destruction and recovery for a new set of environmental conditions. This design imperative led to the creation of the dramatic open loft space filled with natural light that merged the exterior and interior space in an extended, raised garden, designed by one owner and the company she works with, Urban Green. Flood resilient design guidelines were incorporated throughout and all the floor elevations were also raised as a result of locating the first floor above the DFE. Meeting the new code requirements enabled the overall height of the building to be increased, accommodating the new penthouse addition.
The main concept and name of this project emphasized the lifting of the building as a recognition of the process of destruction and recovery for a new set of environmental conditions. This design imperative led to the creation of the dramatic open loft space filled with natural light that merged the exterior and interior space in an extended, raised garden, designed by one owner and the company she works with, Urban Green. Flood resilient design guidelines were incorporated throughout and all the floor elevations were also raised as a result of locating the first floor above the DFE. Meeting the new code requirements enabled the overall height of the building to be increased, accommodating the new penthouse addition.
底层的起居区有一个17英尺高的空间,有着巨大的玻璃,模糊了内外之间的界限。它通过修复的甲板向南向后花园开放。阁楼和下面的地板有一种更为家居的氛围,天花板高度适中,包括主卧室、儿童卧室和浴室。阁楼采用自定义的黑色电缆网设计在布拉格,业主原来的家,以尽量减少空间之间的隔离,并创造了一个更令人印象深刻的后墙的花园。
The ground floor living quarters enjoy a dramatic 17’ double height space with monumental glazing to blur the boundary between the inside and outside. It opens to the south rear garden through the restored deck. The mezzanine and the floor below have a more domestic atmosphere with a modest ceiling height and comprise the master bedroom, children’s bedroom and bathroom. The mezzanine utilizes a custom blackened cable net designed by Cabletech in Prague, the owners’ original home, to minimize the separation between the spaces and create a more impressive view out the back wall to the garden.
The ground floor living quarters enjoy a dramatic 17’ double height space with monumental glazing to blur the boundary between the inside and outside. It opens to the south rear garden through the restored deck. The mezzanine and the floor below have a more domestic atmosphere with a modest ceiling height and comprise the master bedroom, children’s bedroom and bathroom. The mezzanine utilizes a custom blackened cable net designed by Cabletech in Prague, the owners’ original home, to minimize the separation between the spaces and create a more impressive view out the back wall to the garden.
© Mikiko Kikuyama
(C)Kikuyama Mikiko
同样的设计理念也被应用于顶层两层,创建了一个两居室的出租单元。顶层公寓有一个开放的居住空间区,有大的滑动门,通往屋顶露台花园和全景城市景观,而二楼有亲密的私人住宅。
The same design concept was applied to the top two floors to create a 2-bedroom rental unit. The penthouse has an open living space quarter with large sliding door which opens to the rooftop terrace garden and panoramic city view, while the 2nd floor houses intimate private quarters.
The same design concept was applied to the top two floors to create a 2-bedroom rental unit. The penthouse has an open living space quarter with large sliding door which opens to the rooftop terrace garden and panoramic city view, while the 2nd floor houses intimate private quarters.
新的定制图案铝制石板包裹整个阁楼和舱壁体积,创造了一个引人注目的“盒子上的盒子”与微妙的闪闪发光的效果时,击中自然光在白天。现有的外墙砖墙和新的金属顶楼并列在一起,在街道上创造了一个标志性的对比,加强了新的高架结构设计。
The new custom patterned aluminum shingle wraps the entire penthouse and bulkhead volume creating a striking “box on a box” with subtle sparkling effects when hit with natural light during the day. The juxtaposition of the existing exterior brick façade and new metal penthouse creates an iconic contrasting presence on the street, reinforcing the newly elevated design of the structure.
The new custom patterned aluminum shingle wraps the entire penthouse and bulkhead volume creating a striking “box on a box” with subtle sparkling effects when hit with natural light during the day. The juxtaposition of the existing exterior brick façade and new metal penthouse creates an iconic contrasting presence on the street, reinforcing the newly elevated design of the structure.
© Mikiko Kikuyama
(C)Kikuyama Mikiko
公共流通被放置在西侧,有一个巨大的狭窄楼梯,这在经典的阁楼中很常见。一个戏剧性的双高度入口门与磨砂丝玻璃也表明了整个房子的高度,同时给空间带来了扩散的光线,并加强了独特的前台阶材料从混凝土和瓷砖到木材的洪水设计准则。
Public circulation was placed to the west side with a monumental narrow stair as often found in classic loft buildings. A dramatic double height entrance door with frosted wire glass also indicates the elevation of the entire house while bringing diffused light into the space and enhancing the unique front step material change from concrete and tile to wood per the flood design guidelines.
Public circulation was placed to the west side with a monumental narrow stair as often found in classic loft buildings. A dramatic double height entrance door with frosted wire glass also indicates the elevation of the entire house while bringing diffused light into the space and enhancing the unique front step material change from concrete and tile to wood per the flood design guidelines.
© Mikiko Kikuyama
(C)Kikuyama Mikiko
对于内部饰面,完全回收和重建的砖墙的特征在于暴露的钢筋和新涂漆的隔热墙的部分,作为仔细研究的组合物。白色墙壁、抛光的混凝土地板和砖的内部调色板创造了温暖的复古木材家具的平静背景,大量的哲学、艺术和建筑书籍以及美丽的内部植物混合物,它们呼应了外部的花园。
For the interior finish, the fully reclaimed and rebuilt brick wall is featured with exposed steel reinforcement and sections of newly painted insulated walls as a carefully studied the composition. The interior palette of white walls, polished concrete floor, and brick creates a calm background for warm vintage wood furnishing, a large collection of philosophy, art and architecture books and a beautiful mix of interior plantings which echo the exterior garden.
For the interior finish, the fully reclaimed and rebuilt brick wall is featured with exposed steel reinforcement and sections of newly painted insulated walls as a carefully studied the composition. The interior palette of white walls, polished concrete floor, and brick creates a calm background for warm vintage wood furnishing, a large collection of philosophy, art and architecture books and a beautiful mix of interior plantings which echo the exterior garden.
Architects TAKATINA
Location Brooklyn, United States
Lead Architects Takaaki Kawabata
Architect of Record PRIMATE LLC
Area 218.0 m2
Project Year 2018
Photographs Mikiko Kikuyama
Category Houses Interiors
Manufacturers Loading...
客服
消息
收藏
下载
最近

























