查看完整案例


收藏

下载
架构师提供的文本描述。两层建筑:探索商业租户建筑的可能性,委托设计这座商业租户大楼的灵感来自于两个主题。第一:设计应如何与邻里关系。我们考虑了建筑的哪些方面,以及它可以做什么声明。至于现有的城市景观,直到20世纪90年代左右,这个郊区的许多建筑都采用了传统的低矮山墙屋顶、臀部屋顶或凉亭屋顶。在过去的15年里,公寓、公寓楼和商业建筑层出不穷。现在,这些平顶办公楼和共管公寓在这里变得越来越普遍。
Text description provided by the architects. Two Stories building: exploring possibilities in commercial tenant buildings Commissioned design of this commercial tenant building was inspired by considering two main themes. First: how the design should relate to the neighborhood. We considered what aspects of the building should blend in and what statement it could make. As for the existing cityscape, until around the 1990s many buildings in this suburb featured conventional low gable roofs, hip roofs, or pavilion roofs. Flat roofs appeared in the past 15 years or so as condominiums, apartment complexes, and commercial buildings popped up here and there. Now these flat-roofed office buildings and condos are becoming more common here.
Text description provided by the architects. Two Stories building: exploring possibilities in commercial tenant buildings Commissioned design of this commercial tenant building was inspired by considering two main themes. First: how the design should relate to the neighborhood. We considered what aspects of the building should blend in and what statement it could make. As for the existing cityscape, until around the 1990s many buildings in this suburb featured conventional low gable roofs, hip roofs, or pavilion roofs. Flat roofs appeared in the past 15 years or so as condominiums, apartment complexes, and commercial buildings popped up here and there. Now these flat-roofed office buildings and condos are becoming more common here.
© Yukinori Okamura
(C)冈村幸森(Yukinori Okamura)
如果没有任何繁华的城市街道、商业区或火车站建造的商业区,一座多层的平顶建筑就会显得有些不合适。然而,前面的街道仍然相当繁忙,人们经常在去附近的小学或公园的路上经过,或者去城市办公室或公共交通的两端。在考虑了这座建筑的体积和形状之后,我们决定这个建筑的体积不应该从这个街区的天际线上突出出来,而它的形状应该由一座低层建筑上的山墙屋顶组成,这对这里的几代人来说似乎很熟悉,就像这个社区多年来的样子一样。因为它是一个商业租户的建筑,在一个主要的住宅区,我们寻找的元素与其说是一个企业的回忆,而不是一个独立的家。通过这种方式,这些形状模仿了在附近发现的其他形状。
Without any bustling city streets, shopping districts, or built-up commercial areas by train stations, a multi-story, flat-roof building would have looked somewhat out of place. The street in front is still fairly busy however, and people often pass by on their way to a nearby elementary school or park, or to a city office or public transportation at either end. After pondering the building’s volume and shape, we decided that the volume should not stand out from the skyline on this block, and that the shape should consist of gable roofs on a low-rise building that would seem familiar to the mix of generations here, like how the neighborhood has looked for years. And because it is a commercial tenant building in a largely residential area, we sought elements less reminiscent of a business than of a detached home. In this way, the shapes mimic other shapes found in the neighborhood.
Without any bustling city streets, shopping districts, or built-up commercial areas by train stations, a multi-story, flat-roof building would have looked somewhat out of place. The street in front is still fairly busy however, and people often pass by on their way to a nearby elementary school or park, or to a city office or public transportation at either end. After pondering the building’s volume and shape, we decided that the volume should not stand out from the skyline on this block, and that the shape should consist of gable roofs on a low-rise building that would seem familiar to the mix of generations here, like how the neighborhood has looked for years. And because it is a commercial tenant building in a largely residential area, we sought elements less reminiscent of a business than of a detached home. In this way, the shapes mimic other shapes found in the neighborhood.
© Yukinori Okamura
(C)冈村幸森(Yukinori Okamura)
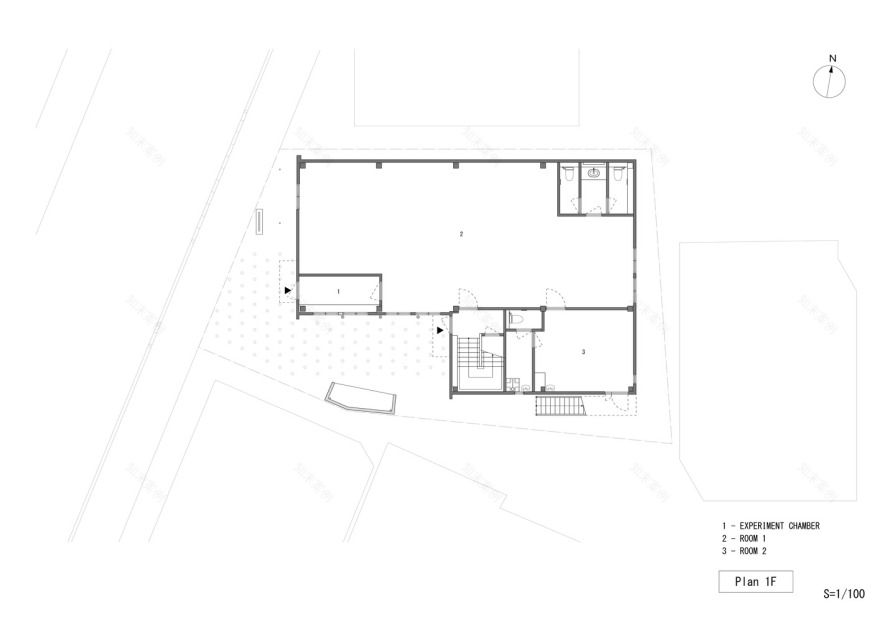
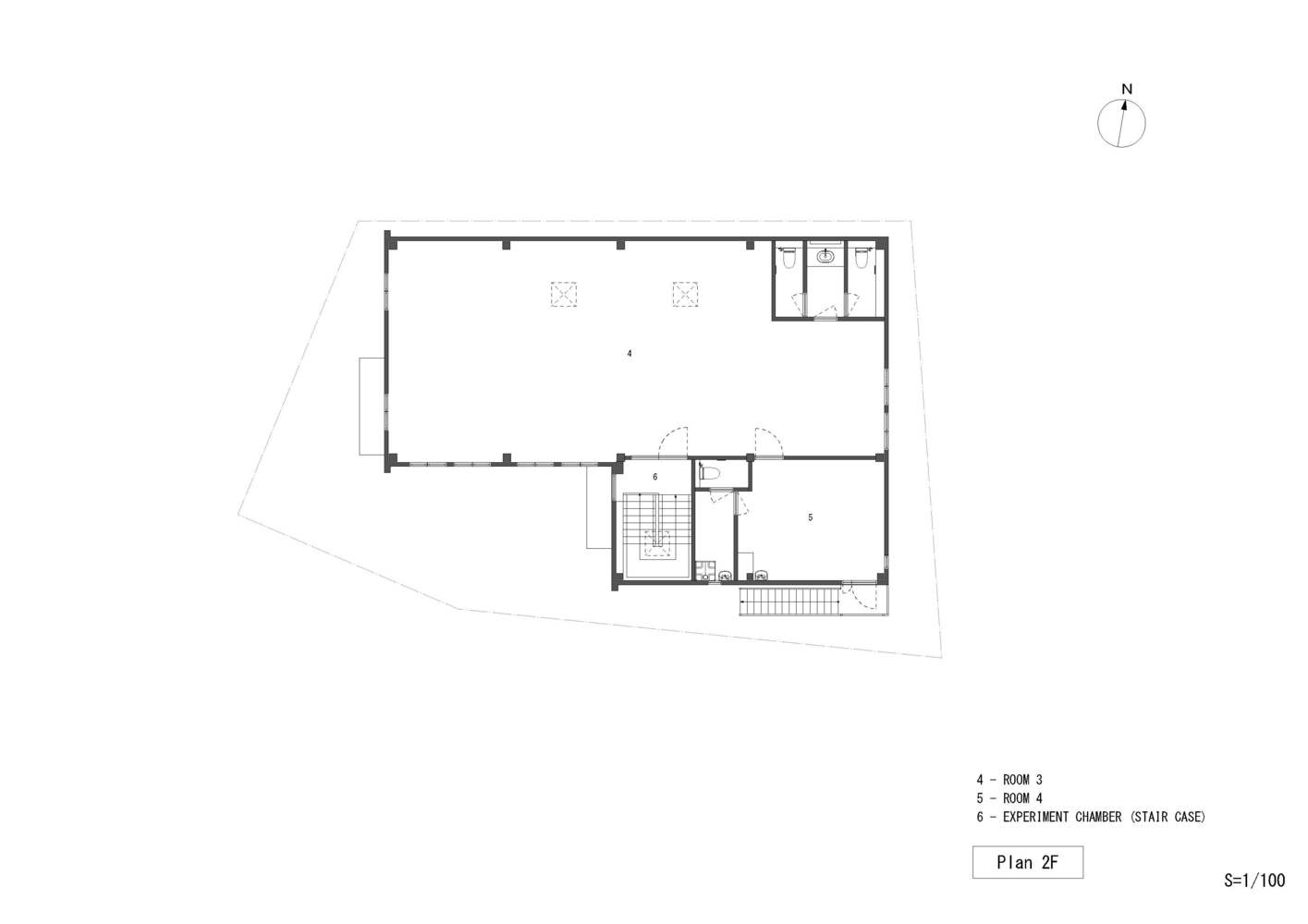
在设计中的第二个考虑是如何安排游客从街道进入企业内的方式。具体来说,我们探索了如何在访客从门到房间时根据心理机制采取行动。在进入房间之前,游客们会短暂地穿过缓冲区(我们称之为“体验室”),这些缓冲区会让他们的情绪重新调整。首先,人们对新体验的潜在渴望甚至从前面的街道上被唤醒,因为他们注意到了一种虚线隧道。一旦他们进入,隧道会瞬间中和他们身后的日常世界,引导他们继续前进。同样,通往二楼的楼梯也是一间改变情绪的房间,在进入营业场所之前,他们的视角通过一个虚幻的、蓝色的静态空间以同样的方式改变。它给人的印象是,外部的集体、社会世界和个体企业内部的空间之间存在着适度的联系,而不是直接的联系。
The second consideration in design was how to arrange a visitor’s approach to the businesses inside from the street. Specifically, we explored ways to act on psychological mechanisms as visitors pass from the door to the rooms inside. Before entering the rooms, visitors briefly pass through buffer zones (which we call “experience chambers”) that reset their mood. First, people’s latent desire for new experiences is roused even from the street in front as they notice a kind of dotted tunnel. Once they enter, the tunnel momentarily neutralizes the everyday world behind them, leading them onward. Similarly, a staircase leading to the second floor also serves as a mood-altering chamber, shifting their perspective the same way through a dotted, blue-colored static space before they enter the place of business. It gives the impression of a moderated connection between the collective, social world outside and the spaces of individual businesses within, instead of a direct connection.
The second consideration in design was how to arrange a visitor’s approach to the businesses inside from the street. Specifically, we explored ways to act on psychological mechanisms as visitors pass from the door to the rooms inside. Before entering the rooms, visitors briefly pass through buffer zones (which we call “experience chambers”) that reset their mood. First, people’s latent desire for new experiences is roused even from the street in front as they notice a kind of dotted tunnel. Once they enter, the tunnel momentarily neutralizes the everyday world behind them, leading them onward. Similarly, a staircase leading to the second floor also serves as a mood-altering chamber, shifting their perspective the same way through a dotted, blue-colored static space before they enter the place of business. It gives the impression of a moderated connection between the collective, social world outside and the spaces of individual businesses within, instead of a direct connection.
© Yukinori Okamura
(C)冈村幸森(Yukinori Okamura)
尽管在郊区火车站附近的商业租户建筑的经济建设通常限制了建筑材料对钢架计算的选择,但是在这个项目中,我们寻求更多的住宅附近的住宅外观。此外,尽管梁外露,但室内设计也支持我们对建筑的意图,并可能吸引志同道合的租户。在城市被设计为强调经济效率和盈利能力的商业建筑的时候,我们寻求了一个经济的建筑,它也引入了与社区产生共鸣的品质。
A homey exterior and skeletal interior Although economical construction of commercial tenant buildings near suburban train stations often limits the choice of building material to steel-frame ALC, in this project we sought a more homelike appearance in line with a residential neighborhood. Inside as well, although the beams are exposed, the interior design supports our intentions for the building and may attract like-minded tenants. At a time when cities are flooded with commercial buildings designed to emphasize economic efficiency and profitability, we sought an economical building that also introduces qualities that resonate with the community.
A homey exterior and skeletal interior Although economical construction of commercial tenant buildings near suburban train stations often limits the choice of building material to steel-frame ALC, in this project we sought a more homelike appearance in line with a residential neighborhood. Inside as well, although the beams are exposed, the interior design supports our intentions for the building and may attract like-minded tenants. At a time when cities are flooded with commercial buildings designed to emphasize economic efficiency and profitability, we sought an economical building that also introduces qualities that resonate with the community.
© Yukinori Okamura
(C)冈村幸森(Yukinori Okamura)
客服
消息
收藏
下载
最近




























