查看完整案例


收藏

下载
© Maciej Jeżyk / ONI Studio
c Maciej JeżYK/Oni Studio
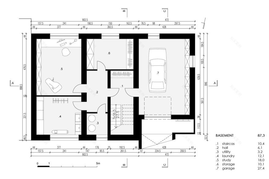
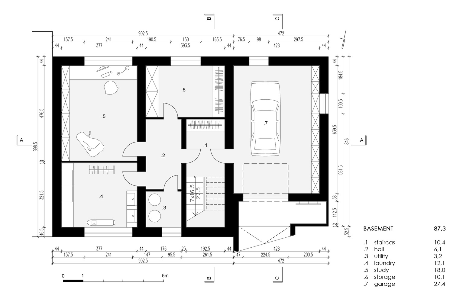
架构师提供的文本描述。该项目的目标是一排露台房屋的最后一部分。它的新业主面临着波兰这一时期建筑的典型问题:建筑材料不良,底层高架,内墙布局不实用。它的效果是一座对外界关闭的房子,里面充满了令人不舒服的独立的昏暗的房间一个小的附加设施包括一个车库,一个起居室和上面的一个露台。整块地都很小,从四面八方都暴露了出来-房子实际上没有花园。
Text description provided by the architects. The object of the project was the last segment of a row of terrace houses. Its new owners faced the typical problems of buildings from this period in Poland: bad building materials, elevated ground floor, unpractical layout of inner walls. The effect was a house closed to the outside world full of uncomfortable separate and dim rooms. A small add-on included a garage, a living room and a terrace above. The whole plot was small and exposed from all around – the house had actually no garden.
Text description provided by the architects. The object of the project was the last segment of a row of terrace houses. Its new owners faced the typical problems of buildings from this period in Poland: bad building materials, elevated ground floor, unpractical layout of inner walls. The effect was a house closed to the outside world full of uncomfortable separate and dim rooms. A small add-on included a garage, a living room and a terrace above. The whole plot was small and exposed from all around – the house had actually no garden.
© Maciej Jeżyk / ONI Studio
c Maciej JeżYK/Oni Studio
我们的任务是在内部创建一个新的功能布局,并在其现有边界内完全重新构建外接程序。起点是社区-设计成一个“城市花园”。在我们的项目中,我们试图制作一些框架,作为植物的支撑-我们想扩大现有的花园,其中的一部分和延续将是墙壁和露台的建筑。由于这一点,我们在外面提供了一些休闲区域-一楼的露台,通过新的外部楼梯从起居室进入。外面的砖墙遮住了行人的视线,而洞口和半透明的部分则让阳光照在里面。
Our task was to create a new functional layout inside and to completely remodel the add-on inside its existing borders. The starting point was the neighborhood – designed as a “city-garden”. In our project we tried to make some frames which could be used as support to plants - we wanted to enlarge the existing garden, which part and continuation would be walls and terrace of the building. Thanks to this we provided some leisure area outside – the terrace on the first floor accessible from the living room by new outside stairs. The outside brick walls cover it from the sight of the passers-by, whereas openings and translucent parts let the sunlight inside.
Our task was to create a new functional layout inside and to completely remodel the add-on inside its existing borders. The starting point was the neighborhood – designed as a “city-garden”. In our project we tried to make some frames which could be used as support to plants - we wanted to enlarge the existing garden, which part and continuation would be walls and terrace of the building. Thanks to this we provided some leisure area outside – the terrace on the first floor accessible from the living room by new outside stairs. The outside brick walls cover it from the sight of the passers-by, whereas openings and translucent parts let the sunlight inside.
© Maciej Jeżyk / ONI Studio
c Maciej JeżYK/Oni Studio
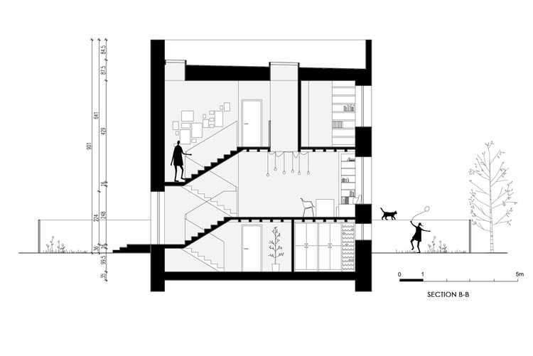
Section BB
BB节
© Maciej Jeżyk / ONI Studio
c Maciej JeżYK/Oni Studio
Section AA
AA节
Courtesy of MFRMGR Architekci
MFRMGR Architekci提供
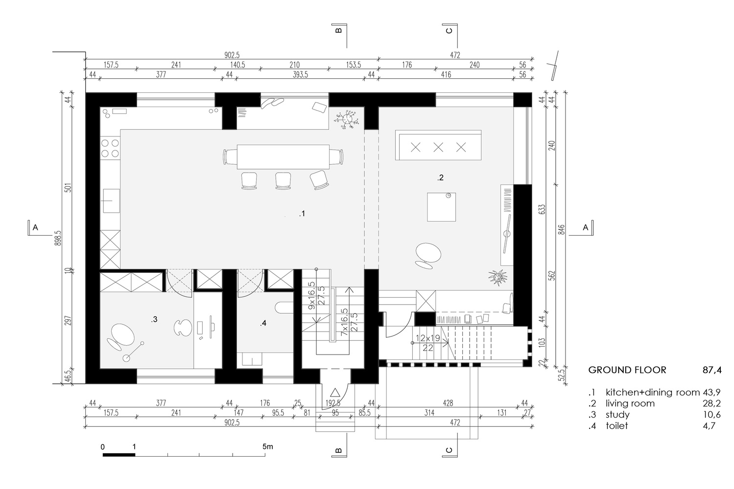
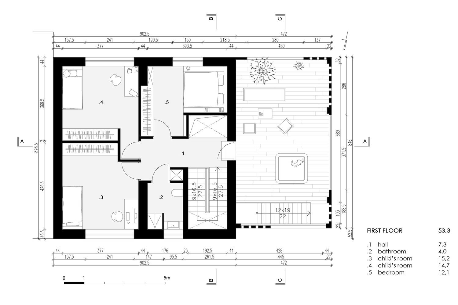
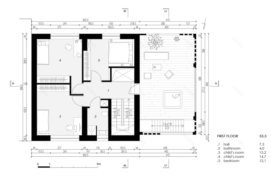
室内适应了现代四口之家的需要,在底层,我们创造了一个开放空间的起居区,在一楼设计了三间卧室,在地下室设计了一些公用设施。屋顶的天窗照亮了较低的楼层,这要归功于楼板上的一些开口。
The interior was adapted to the needs of the modern, four-people family – on the ground floor we created an open-space living area, designed three bedrooms on the first floor and some utility area in the basement. Skylights in the roof enlighten the lower floors thanks to some openings in the slabs.
The interior was adapted to the needs of the modern, four-people family – on the ground floor we created an open-space living area, designed three bedrooms on the first floor and some utility area in the basement. Skylights in the roof enlighten the lower floors thanks to some openings in the slabs.
© Maciej Jeżyk / ONI Studio
c Maciej JeżYK/Oni Studio
Architects MFRMGR Architekci
Location Poland
Lead Architects Marta Frejda , Michał Gratkowski
MFRMGR Team Marta Frejda , Michał Gratkowski , Waldemar Nowicki , Klaudia Zyza , Jarosław Urbański
Area 228.0 m2
Project Year 2018
Photographs Maciej Jeżyk / ONI Studio
Category Houses
Manufacturers Loading...
客服
消息
收藏
下载
最近
































































