查看完整案例

收藏

下载
架构师提供的文本描述。新图书馆在格里姆斯坦纳有一个中央,滨水区的位置。它位于老城镇和新市镇中心之间。其意图是使图书馆不仅成为一个读书和借书的地方,而且成为一个社会交汇点,借此举办各种文化活动。这座建筑人人都可以进入。
Text description provided by the architects. The new library in Grimstand has a central, waterfront location. It lies between the old town and the new town center. The intention is for the library to not only be a place to read and borrow books, but for the building to become a social meeting point with the opportunity to host a variety of cultural events. The building is accessible for all.
Text description provided by the architects. The new library in Grimstand has a central, waterfront location. It lies between the old town and the new town center. The intention is for the library to not only be a place to read and borrow books, but for the building to become a social meeting point with the opportunity to host a variety of cultural events. The building is accessible for all.
上下文是架构的重要驱动因素。这座建筑是一条有盖的人行道,连接北方的老城镇和南部的新市镇中心。这条通道充满了一个公共和文化项目,供所有城镇居民和游客享用。
The context acts as an important driver for the architecture. The building acts as a covered walkway connecting the old town in the north and new town center in the south. This passageway is filled with a public and cultural programme for all the towns inhabitants and visitors to enjoy.
Floor plan 01
平面图01
Floor plan 02
平面图02
工地上的一幢现有建筑,加上预算,构成了该项目的有限框架。然而,这一限制被认为是积极的;旧结构部分保留下来,并作为新的轻型木材结构的基础。建筑体积紧凑,木材结构合理。木结构框架放置在现有混凝土建筑的顶部,间距为3米。
An existing building on the site, together with the budget, formed a limited framework for the project. However, this limitation was looked upon as a positive; the old structure is partially kept and acts as foundations for the new light timber structure. The compact volume of the building has a rational timber structure. The timber frames are placed with a spacing of 3m on top of the existing concrete building.
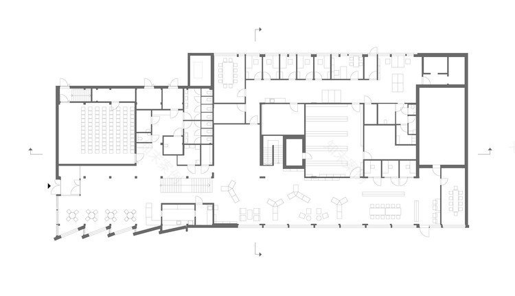
这座大楼有三层楼。主要图书馆在一楼运作,第二层有一个隐蔽的儿童区。行政当局在一楼被发现。此外,大楼还设有咖啡厅、礼堂和展览空间。这些设施离厕所很近,因此有可能在晚上的活动中关闭这一区域。
The building is organized over three floors. The main library functions on the first floor with a secluded children’s area on the second. The administration is found on the ground floor. Additionally the building houses a café, auditorium and exhibition spaces. These are in close proximity to toilet facilities making it possible to close off this zone for evening events.
Section 01
通过改变预制的东西面板之间的垂直北面开口,形成一个动态的立面。这描绘了内部运动,而建筑在新旧之间进行谈判。
By varying the vertical north-facing openings between the prefabricated east and west facing panels makes a dynamic façade. This portrays the interior movement, while the building negotiates between new and old.
客服
消息
收藏
下载
最近


























