查看完整案例


收藏

下载
© Avi Levi
Avi Levi
架构师提供的文本描述。1923年建造的洛奇亚工厂大楼是以色列唯一这样的工业建筑,建筑在现代技术中,融合了19世纪欧洲怀旧的参考文献,同时也在寻找犹太复国主义的新风格。这座大楼至今仍是一个地标。它的红色和独特的形状,是不同的其他建筑物在城市。老工厂是由来自洛兹的波兰移民建造的,模仿了他们家乡熟悉的工业类型。
Text description provided by the architects. The Lodzia factory building, built in 1923 is the only industrial building of its kind in Israel, built in modern technology integrating 19th century European nostalgic references, while searching for a new Jewish - Zionist style. The building has remained a landmark to this very day. Its reddish color and unique shape, is different from the rest of the buildings in the city. The old Factory was built by Polish immigrants from Lodz, imitating the industrial typology that was familiar in their home town.
Text description provided by the architects. The Lodzia factory building, built in 1923 is the only industrial building of its kind in Israel, built in modern technology integrating 19th century European nostalgic references, while searching for a new Jewish - Zionist style. The building has remained a landmark to this very day. Its reddish color and unique shape, is different from the rest of the buildings in the city. The old Factory was built by Polish immigrants from Lodz, imitating the industrial typology that was familiar in their home town.
© Eliasaf Robinson Collection
伊莱萨夫罗宾逊收藏
严格的保护限制提出了真正的规划挑战,以便将废弃的旧工厂结构重新利用到当代住宅公寓中。新的住宅项目符合社区的主要名称,从而使新的住宅开发不会失去建筑物的历史、城市、建筑和文化价值。
Strict conservation restrictions posed a real planning challenge in effort to reuse the old abandoned factory structure into contemporary residential apartments. The new residential program fits the neighborhood’s primary designation, thus allowing new residential development without losing the building's historical, urban, architectural and cultural values.
Strict conservation restrictions posed a real planning challenge in effort to reuse the old abandoned factory structure into contemporary residential apartments. The new residential program fits the neighborhood’s primary designation, thus allowing new residential development without losing the building's historical, urban, architectural and cultural values.
© Avi Levi
Avi Levi
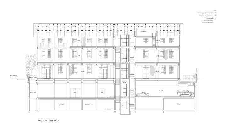
新项目所必需的任何额外区域只能作为看不见的附加部分,并且只能在地下进行。因此,整个地段规划了两个地下室,为兴建历史建筑物下的地下室,当局为现有的建筑物设计了一个临时支援系统,采用数百根钢柱,将现有的墙壁和地基包括在内。这种方法可以断开原来的地基并进行挖掘工作。这座建筑物被电子感应器监视,直到安装在新的地基上。
Any additional areas essential for the new program could be done only as unseen additions and only underground. This led to the planning of two basements under the whole lot.In order to build the basements under the historic building, a temporary support system was planned for the existing structure, using hundreds of steel poles embracing the existing walls and foundations. This method enabled to disconnect the original foundations and conduct the digging works. The building was monitored with electronic sensors until placed on new foundations.
Any additional areas essential for the new program could be done only as unseen additions and only underground. This led to the planning of two basements under the whole lot.In order to build the basements under the historic building, a temporary support system was planned for the existing structure, using hundreds of steel poles embracing the existing walls and foundations. This method enabled to disconnect the original foundations and conduct the digging works. The building was monitored with electronic sensors until placed on new foundations.
© Yehudit Shweb
.Yehudit Shwe
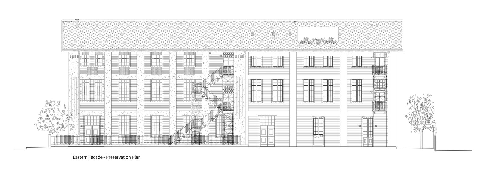
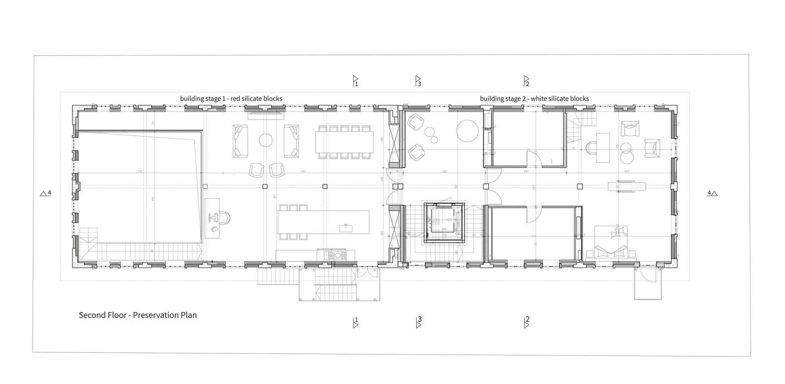
建筑物的正面被准确地保存了下来。工厂分两个阶段建造-1924年的第一个机翼使用红砖,第二个在1929年用白色砖块建造。在保存工作中,在现场发现的红砖被切成两块,在第一翼丢失的地方被用作包层。把散落在建筑物周围的白色砖块收集起来,再用在保存工程中。
The building’s facades were accurately preserved. The factory was built in two stages – the first wing in 1924 using red bricks and the second in 1929 with white ones. During the preservation works, the red bricks found on the site were sliced into two and were used as cladding wherever those were missing in the first wing. The white colored bricks which were scattered around the building were collected and reused in the preservation works.
The building’s facades were accurately preserved. The factory was built in two stages – the first wing in 1924 using red bricks and the second in 1929 with white ones. During the preservation works, the red bricks found on the site were sliced into two and were used as cladding wherever those were missing in the first wing. The white colored bricks which were scattered around the building were collected and reused in the preservation works.
© Avi Levi
Avi Levi
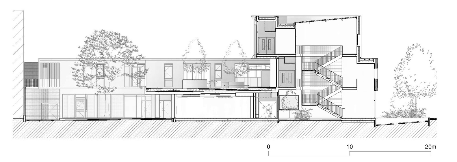
由于原来的建筑物没有百叶窗,寡妇的开放方向被改变,以便能够安装室内遮阳解决方案,以保护隐私和调节光线。在窗户和门框内安装了一个隐蔽的报警系统,而不是在底层的开口上增加窗口条。
Since the original building had no blinds, the widows’ opening direction was changed in order to allow the installation of interior shading solutions for privacy and light regulation. Instead of adding window bars to the openings on the ground floor, a concealed alarm system was installed inside the window and door frames.
Since the original building had no blinds, the widows’ opening direction was changed in order to allow the installation of interior shading solutions for privacy and light regulation. Instead of adding window bars to the openings on the ground floor, a concealed alarm system was installed inside the window and door frames.
Section 01
Section 01
在集体记忆中,建筑物的屋顶被认为是红色的“马赛”屋顶瓷砖,这是20世纪20年代在巴勒斯坦常见的地方。在1924年的城市档案中发现的图纸中,设计了一个双色调的菱形瓷砖图案。历史研究导致我们修复了两个色调的锌瓦屋顶:浅灰色(新锌)和深灰色(陈年锌)-作为对历史建筑的敬意。在屋顶空间内设计了一个阳台,带有独特的种植细节,为楼上的公寓提供服务。
In the collective memory, the building's roof is perceived with red “Marseille” roof tiles that where common in Palestine during the 1920’s. In the drawings found in the city archive of the original building from 1924, a two-toned diamond shaped tile pattern was planned. Historical research led us to restore the roof in two-toned zinc tiles: light gray (new zinc) and dark gray (aged zinc) - as a tribute to the historical building. A balcony was designed inside the roof volume with unique planting details, serving the apartment on the upper floor.
In the collective memory, the building's roof is perceived with red “Marseille” roof tiles that where common in Palestine during the 1920’s. In the drawings found in the city archive of the original building from 1924, a two-toned diamond shaped tile pattern was planned. Historical research led us to restore the roof in two-toned zinc tiles: light gray (new zinc) and dark gray (aged zinc) - as a tribute to the historical building. A balcony was designed inside the roof volume with unique planting details, serving the apartment on the upper floor.
© Avi Levi
Avi Levi
东立面的两个铁梯,一个是每个机翼,是旧工厂的楼层之间唯一的原始通道。这些楼梯被一个大师精心拆卸和处理。一个楼梯被转换为紧急楼梯,而第二个楼梯被重新用作两个阳台。
The two iron staircases on the Eastern Facade, one for each wing, were the only original access between the floors of the old factory. These staircases were carefully dismantled and treated by a master craftsman. One staircase was converted into emergency stairs while the second was reused as two balconies.
The two iron staircases on the Eastern Facade, one for each wing, were the only original access between the floors of the old factory. These staircases were carefully dismantled and treated by a master craftsman. One staircase was converted into emergency stairs while the second was reused as two balconies.
Section 04
Section 04
为了保持建筑物的真实性,强调了两个建筑阶段,同时使建筑适应当代的需要。该项目于2018年夏天完工,不久之后,业主们就住进了该项目。
In order to preserve the building’s authenticity, the two building stages were emphasized while adapting the building to contemporary needs. The project was completed in the summer of 2018 and was populated by the owners soon after.
In order to preserve the building’s authenticity, the two building stages were emphasized while adapting the building to contemporary needs. The project was completed in the summer of 2018 and was populated by the owners soon after.
Architects Amnon Bar Or - Tal Gazit Architects
Location Nahmani Street 43, Tel Aviv, Israel
Lead Architects Amnon Bar Or, Amnon Bar Or – Tal Gazit Architects Ltd.
Area 2448.0 m2
Project Year 2018
Photographs Avi Levi, Eliasaf Robinson Collection, Yehudit Shweb, meitar koll, Nirit Yaron
Category Renovation
Manufacturers Loading...
客服
消息
收藏
下载
最近































