查看完整案例


收藏

下载
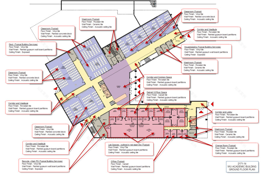
建筑师提供的文字说明。西方大学主要校区的新学术建筑将是亚瑟·拉布拉特家族护理学院(JLFSN)和信息和媒体研究学院(FIMS)的家。该学院位于一个位于大开发的校园区域入口处的一个重要位置,它回应了在学习和研究型大学中存在着强大的国际存在的重要性。为此,JLFSN和FIMS将提供一系列环境;灵活的教学空间、行动学习实验室、临床培训和计算机实验室、媒体研究工作室、图书馆科学设施、教员/工作人员办公室、研究空间和学生空间。
Text description provided by the architects. The new Academic Building on Western University’s main campus will be the home for the Arthur Labatt Family School of Nursing (JLFSN) and Faculty of Information and Media Studies (FIMS). Located on a significant site at the entrance to an area of the campus that is under major redevelopment, the Academic Building responds to the importance of a strong international presence in learning and research-intensive universities. In pursuit of this, JLFSN and FIMS will make available a range of environments; flexible instructional spaces, action learning labs, clinical training and computer laboratories, media studies studios, library science facilities, faculty/staff offices, research spaces, and student spaces.
Text description provided by the architects. The new Academic Building on Western University’s main campus will be the home for the Arthur Labatt Family School of Nursing (JLFSN) and Faculty of Information and Media Studies (FIMS). Located on a significant site at the entrance to an area of the campus that is under major redevelopment, the Academic Building responds to the importance of a strong international presence in learning and research-intensive universities. In pursuit of this, JLFSN and FIMS will make available a range of environments; flexible instructional spaces, action learning labs, clinical training and computer laboratories, media studies studios, library science facilities, faculty/staff offices, research spaces, and student spaces.
© Scott Webb
斯科特·韦布
四个组件将集中在此站点上,以提供一系列学习和社交环境。在此,ALFSN和FIMS共同定位项目,目的是鼓励学术建筑中的边界交叉,以及跨校区和全球学术界。第三,一般使用教室(GU)将供JLFSN和FIMS以及其他园区设施使用,并将提供若干教学空间,包括48座有源学习教室、60座柔性通用会议室和130座正式演讲室。它位于前3层的中心,用作护理和FIMS的扩展空间。第四部分是大学的一项关键举措,是共同的共同空间,将为人们和思想的融合提供机会。
Four components will converge on this site to provide a range of learning and social environments. Two, the ALFSN and FIMS are co-locating programs here with the goal of encouraging boundary-crossing in the Academic Building as well as across campus and into the global academic community. The third, general use classrooms (GU), will be available for use by the JLFSN and FIMS as well other campus faculties and will offer a number of instruction spaces, from 48-seat Active Learning Classrooms, to 60-seat flexible general purpose rooms and 130-seat formal lecture rooms. It is centrally located within the first three floors to acts as expansion space for both Nursing and FIMS. The fourth component, a key initiative at the University, is the shared common space that will provide the opportunities for the convergence of people and ideas.
Four components will converge on this site to provide a range of learning and social environments. Two, the ALFSN and FIMS are co-locating programs here with the goal of encouraging boundary-crossing in the Academic Building as well as across campus and into the global academic community. The third, general use classrooms (GU), will be available for use by the JLFSN and FIMS as well other campus faculties and will offer a number of instruction spaces, from 48-seat Active Learning Classrooms, to 60-seat flexible general purpose rooms and 130-seat formal lecture rooms. It is centrally located within the first three floors to acts as expansion space for both Nursing and FIMS. The fourth component, a key initiative at the University, is the shared common space that will provide the opportunities for the convergence of people and ideas.
© Scott Webb
斯科特·韦布
这四个组件的结合所产生的设计表达并加强了连接。它的形式利用了学生和教员在校园内旅行的现有活动。现有的步行线通过JLFSN、fims和在中庭相交的公共空间提供编舞路径。此外,编织到这些组件的安排将是慷慨的悬挑的视野向竞技场和泰晤士河以外,相互的看法,将是充满活力的空间在里面。学术大楼设计中同样重要的是每个组件的清晰性,特别是客户为每个fims和护理人员提供独特身份的方向。
The design generated by the coming together of these four components expresses and strengthens connections. Its form takes advantage of the existing movements of students and faculty travelling across campus. Existing pedestrian routes inform choreographed paths of travel through the JLFSN, FIMS and common spaces intersecting at the central atrium. Also, woven into the arrangement of these components will be generous cantilevered outlooks towards the playing fields and Thames River beyond, reciprocal views that will be the evidence of the vibrant spaces within. Also of importance in the design of the Academic Building is the legibility and clarity of each of the components – particularly the client’s direction of providing a unique identity for each of FIMS and Nursing.
The design generated by the coming together of these four components expresses and strengthens connections. Its form takes advantage of the existing movements of students and faculty travelling across campus. Existing pedestrian routes inform choreographed paths of travel through the JLFSN, FIMS and common spaces intersecting at the central atrium. Also, woven into the arrangement of these components will be generous cantilevered outlooks towards the playing fields and Thames River beyond, reciprocal views that will be the evidence of the vibrant spaces within. Also of importance in the design of the Academic Building is the legibility and clarity of each of the components – particularly the client’s direction of providing a unique identity for each of FIMS and Nursing.
© Jessica Ginzel
c.杰西卡·金泽尔
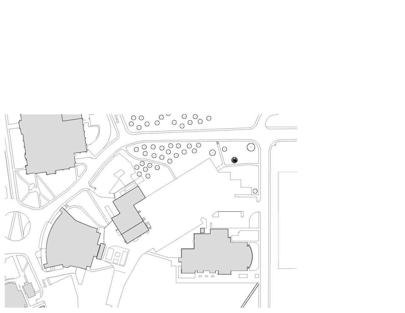
南侧三层楼-护理学院-毗邻拉巴特健康科学大楼.在休伦大道提供的护理专用入口由一个有盖的门廊定义,并位于与邻近建筑物相连的位置。机翼的宽度在街景上形成了固体和空隙的节奏,这与这一地区的校园规模是一致的。北翼主要是fims翼,入口位于兰伯顿大道。在坡度上,它与交叉路口和交叉路口的音乐大楼成角。上两层仍然垂直于街道边缘,悬臂向东向河流,西面是南谷区,是通往校园这一区域的门户。
The three-storey south wing – the School of Nursing – is adjacent to Labatt Health Sciences Building. The dedicated entrance to Nursing, provided on Huron Drive is defined by a covered portico and located to connect with the adjacent building. The width of the wing sets up a rhythm of solids and voids along the streetscape which is consistent with the campus scale in this area. The north wing is primarily the FIMS wing, with its entrance on Lambton Drive. At grade it angles towards the intersection and the Music Building across the intersection. The upper two floors remain perpendicular to the street edge and cantilever towards the river to the east and the South Valley precinct to the west, acting as a gateway to this area of campus.
The three-storey south wing – the School of Nursing – is adjacent to Labatt Health Sciences Building. The dedicated entrance to Nursing, provided on Huron Drive is defined by a covered portico and located to connect with the adjacent building. The width of the wing sets up a rhythm of solids and voids along the streetscape which is consistent with the campus scale in this area. The north wing is primarily the FIMS wing, with its entrance on Lambton Drive. At grade it angles towards the intersection and the Music Building across the intersection. The upper two floors remain perpendicular to the street edge and cantilever towards the river to the east and the South Valley precinct to the west, acting as a gateway to this area of campus.
© Scott Webb
斯科特·韦布
Architects architects Tillmann Ruth Robinson
Location London, Ontario N6G 1G8, Canada
Area 136000.0 ft2
Project Year 2016
Photographs Lisa Logan, Scott Webb, Jessica Ginzel
Category University
Manufacturers Loading...
客服
消息
收藏
下载
最近
























































