查看完整案例


收藏

下载
© Aryeh Kornfeld
架构师提供的文本描述。手写体是 1000 多年前 (七世纪) 制作的手稿,由于经济原因,抹去了表面上以前文字的痕迹,产生了下一篇文章。
Text description provided by the architects. Palimpsests were manuscripts elaborated more than 1,000 years ago (VII century), which, due to economy, erased the traces of previous writings on the surface to give rise to the one that would come next.
Text description provided by the architects. Palimpsests were manuscripts elaborated more than 1,000 years ago (VII century), which, due to economy, erased the traces of previous writings on the surface to give rise to the one that would come next.
© Aryeh Kornfeld
c Aryeh Kornfeld
这篇文章虽然是新的,但被记录在前一次的一种证词上,能够多次跨越一次又一次的痕迹,从而稀释了的概念,抹去了新的,产生了一个混合的二聚体形象。祖佩之家就是这个十字架的结果。
The writing, although new, was recorded on a kind of testimony of the previous one, being able to cross many times the traces of one and another, diluting consequently the idea of erased and new, giving birth to a mixed and binominal figure. Zupe house is the result of this cross.
© Aryeh Kornfeld
c Aryeh Kornfeld
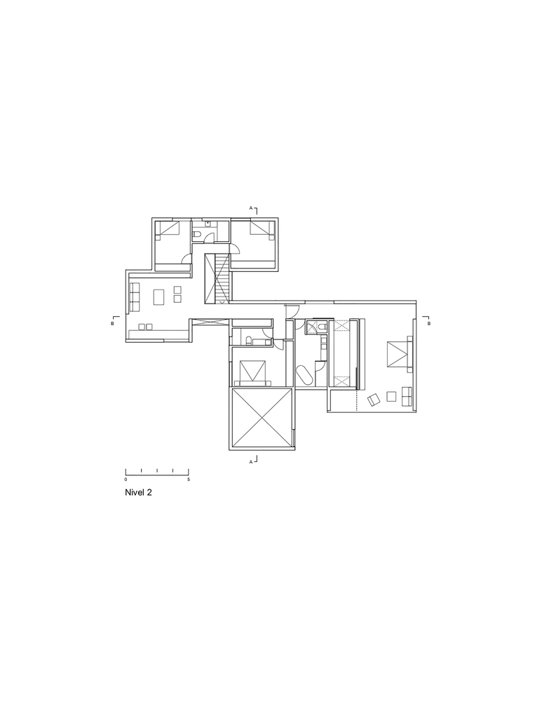
First floor plan
一楼平面图
© Aryeh Kornfeld
在陆地上,以前的住所留下了斜坡上水平地面的价值,因此,新的设计假设这个几何图形是其起源的一部分。基础和梯田决定了作品的位置,认识到这个几何学是先前存在的印记,它定义了领土内秩序的一般分数。
On land, the traces of the previous dwelling were left behind for the value of the horizontal ground on the slope, and as such, the new design assumes this geometry as part of its origin. The foundations and terraces define the position of the pieces, recognizing this geometry as the imprint of the preexistence that defines the general score of order in the territory.
© Bruno Giliberto(c)BrunoGliberto
这座房子就像一座平庸的房子,上面印有它前面的文字的印记,以便在不忽视它的情况下追踪一个新的秩序。它的高度,它的观点,它的海湾和墙壁,因此是二项式的结果,由遗产管理。
The house, like a palimpsest, carries the imprint of the writing that preceded it so as to trace a new order without ignoring it. Its altitude, its perspectives, its bays and walls are consequently the result of a binomial governed by legacy.
© Aryeh Kornfeld
c Aryeh Kornfeld
在这种沉淀物上,房子是静默的,简单的,因为任何装置都会抹黑地面和布局的二项式读数,把新旧的东西融合在一起。
On this sediment, the house is silent, simple, in the understanding that any contraption discredits the binominal reading of the ground and layout, fusing the new and old in a single body. © Aryeh Kornfeld c Aryeh Kornfeld
这座房子的地下室从以前的住宅中进口地基和水平平台,它把地面暴露为一块石质的身体,一个平台,一个杠杆式的底座,在其表面筑成一套粗糙的木料,所有这些都是相交的,被缝隙刺穿,使室内能够在山谷上空形成框架,用自然光滋养空间。
The basement of the house, which imports foundations and horizontal platforms from the previous dwelling, exposes the ground as a stony body, a podium, a leveraged base that nests a set of bodies of rough wood on its surface, all intersected and pierced by gaps that allow the interior to frame views over the valley, nourishing the spaces with natural light.
它的形式的沉默是用来放大细节,材料和接触,使作品充满了一个特定的设计远景。门,窗,家具,天空,人行道,层次分明,护栏,它们都构成了一个明确定义的零件目录,阐明了它的静音顺序与其各部分的复杂性之间的对比。
The silence of its forms is used to amplify details, materials and encounters that fill the work with a particular vision on design. Doors, windows, furniture, skies, pavements, tiers, guardrails, they all form a catalog of clearly defined pieces, articulating a contrast between its silent order and the complexity of its parts.
© Aryeh Kornfeld
c Aryeh Kornfeld
就像一具暹罗人的尸体,祖佩家把它理解为地理上的盟友,一个有高度的地面,一个有地平线的高度,把它联系在一起。另一半人只有通过理解分数已经写好了,才能完成这一前提,就像七世纪的麻痹者一样。
Like a Siamese body, Zupe house ties preexistence by understanding it as a geographic ally, as a ground with an altitude, and a height with a horizon. The other half completes this premise only by understanding that the score was already written, like the palimpsests from the VII century.
© Bruno Giliberto(c)BrunoGliberto
Architects Iván Bravo
Location Vitacura, Chile
Architects in Charge Iván Bravo, Bruno Giliberto
Area 416.0 m2Project Year 2016
Photographs Aryeh Kornfeld, Bruno Giliberto
客服
消息
收藏
下载
最近






















