查看完整案例


收藏

下载
© Julia Ribeiro
(朱莉娅)
架构师提供的文本描述。位于距离圣保罗114英里的“一号房子”,是为一对年轻夫妇设计的,他们想要一套维修方便的房子,他们可以经常邀请朋友和家人。开放空间的结合,允许充足的自然光和自然通风,导致重叠体积的植入“I”形状。
Text description provided by the architects. Located 114 miles from São Paulo, “House I” was designed to attend a young couple that desired a house with easy maintenance which they could often invite friends and family. The combination of open spaces that allow fluidity, plenty of natural light and natural ventilation resulted in an implantation of overlapping volumes in "I" shape.
© Julia Ribeiro
(朱莉娅)
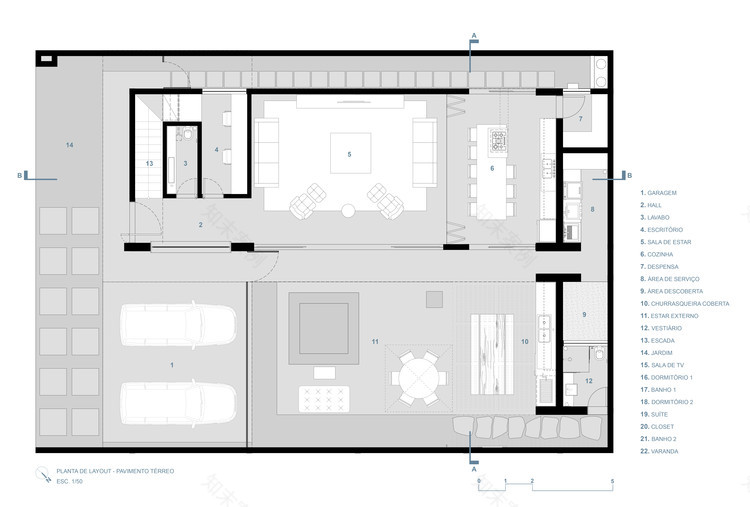
Ground Floor Plan
© Julia Ribeiro
(朱莉娅)
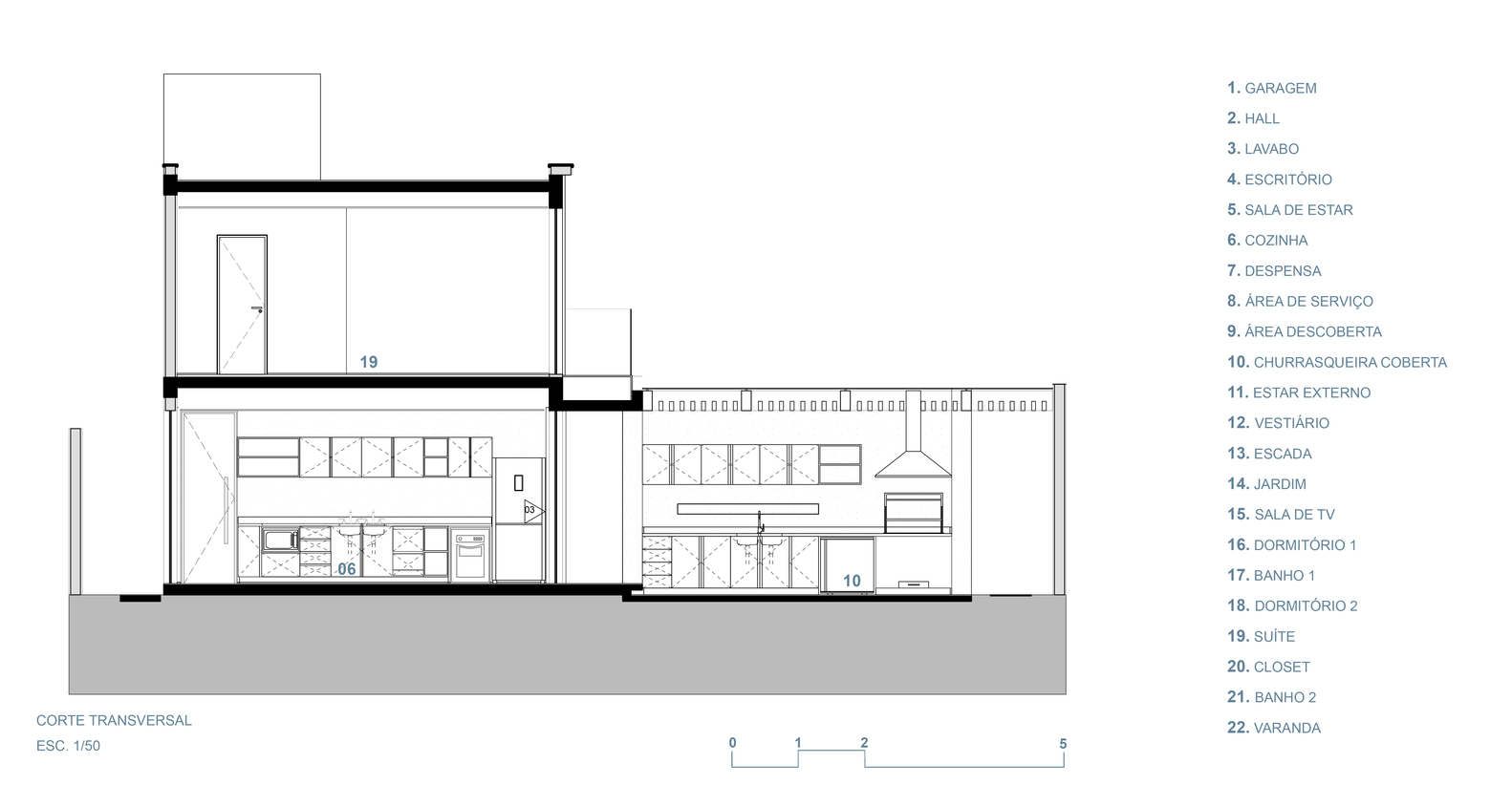
节目的分布是项目的主要优点,空间广阔而通风。在一楼,有私密的地方,如暗室和电视室。在楼下,生活和厨房之间没有隔阂,这给项目带来了一个开放的概念,并将来自共存地区的人们联系在一起。环境的结合也确保了良好的自然照明和交叉通风,这对于建筑的温暖和舒适是必不可少的。
The distribution of the program is the main virtue of the project, articulating wide and airy spaces. In the first floor, there are the intimate areas, such as dorms and TV room. Downstairs, there are no divisions between living and kitchen, which brings to the project an open concept and connects people from areas of coexistence. The union of the environments also ensures good natural lighting and cross ventilation, essential for the warmth and comfort of the construction.
© Julia Ribeiro
(朱莉娅)
玻璃镜框是用来提出再加工的想法。这样,即使在门窗关闭的情况下,内部和外部之间的视觉连接也得以保持。独特的灯光,安装在室内外空间之间的台阶下,突出了主音量,使房子在夜间似乎漂浮。材料的选择在其最自然的条件下应用,不仅有助于环境的改造,而且突出了建筑解决方案的作用。
Larges glass frames are used to bring out the idea of ampleness. In this way, the visual connection between interior and exterior is maintained even when the windows and doors are closed. The unique lighting, installed under the step between the indoor and outdoor spaces, highlights the main volume so that the house seems to float at night. The choice of materials in their most natural condition, applied punctually, not only contributes to the fluidity of the environments but also highlights the role of architectural solutions.
© Julia Ribeiro
(朱莉娅)
在地板上,具有烧焦水泥效果的瓷砖更容易维护,而在地板上充分使用木材则提供了更好的感觉。这两个完成的结合,结果是在中性和中性色调之间的平衡,以及项目的一致性。此外,还安装了含有有机的可再生石材,使硬体积接近其性质。
On the floors, the porcelain tile with burnt cement effect gives the easier maintenance, while the full use of wood in the woodworks offers the feeling of coziness. The combination of these two finishes results in the balance between neutral and earthy tones as well as the timelessness of the project. In addition, the molejo stones with organic pagination are installed so that the hard volume approaches the nature that surrounds it.
© Julia Ribeiro
(朱莉娅)
Architects Tria Arquitetura
Location Itapetininga, Brazil
Category Houses
Authors Marina Cardoso de Almeida, Sarah Bonanno
Architects in Charge Arq. Marina Cardoso de Almeida, Arq. Sarah Bonanno, Arq. Bruno Araujo (co-autor)
Area 250.0 m2
Project Year 2015
Photographs Julia Ribeiro
Manufacturers Loading...
客服
消息
收藏
下载
最近

























