查看完整案例

收藏

下载
正如名字所暗示的那样,这栋房子的名字来源于它独特的屋顶轮廓。“Sierra”在西班牙语中的意思是“锯”和“山脉”。这是一个幸运的巧合,因为房子位于马德里西北部的米拉西拉(Mirasierra)和蒙特卡梅洛(Montecarmelo)之间。屋顶的形状是内部空间要求的结果。由于高度的限制,屋顶坡度不能在中间达到峰值。由于它与下面的浴室相吻合,我们决定将山峰倒置,利用空间隐藏机器和太阳能电池板。当地的规划规则在建筑数量上非常有规定性,这导致了邻近地区类似的联排别墅类型,只是有一些细微的物质差异。
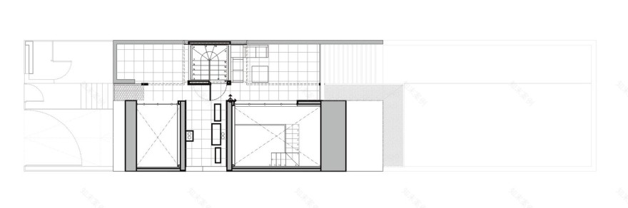
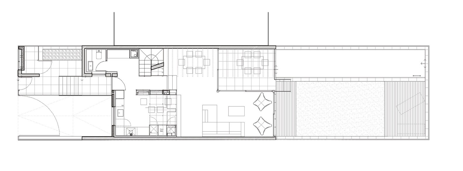
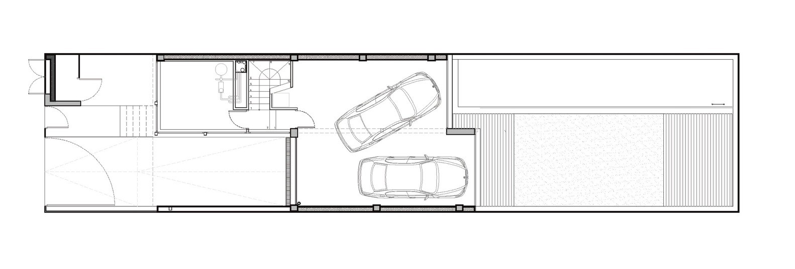
这些挑战,以及狭窄的6,8米宽的场地都被带上了飞机。大部分是为了增加住宅的内部尺度,通过最大化最受欣赏的天花板高度,并通过避免坚实的横贯特征沿着场地的线性性质延伸平面的深度。区域由级别变化、高度变化和屏幕定义。上部的卧室体量被设想为房子中的房子,这反过来也有助于房子独特的屋顶形状和整体的正式定义。这些特性将这个独立的住宅与相邻的开发人员驱动的属性区分开。
作为一个联排别墅,它声称自己的空间之间裸露的木板混凝土特色墙,包括一个整体的“雕刻”石灰华块。这两种对比鲜明但互补的材料参考了一些已经在附近的材料,也代表了is在马德里边缘的地方,城市(混凝土丛林)与自然(山脉和石头)相遇。房子的内部以有限的、平衡的、中性的和温暖的调色板从外部得到暗示。
客服
消息
收藏
下载
最近























































