查看完整案例


收藏

下载

附件

翻译
Progettare una residenza è sempre una sfida che amiamo. Pensa al programma dei bisogni, ai flussi, alle articolazioni dei settori, alla geometria degli spazi. L'interpretazione dell'anima di ciascuno dei residenti che utilizzerà lo spazio lì.
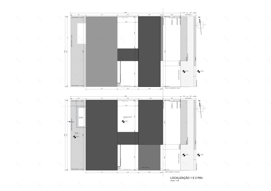
Casa Melhado si trova in una gated community nella città di Estância Velha nella regione di Vale dos Sinos. La sua realizzazione, in un lotto di 16x25m, è stata guidata dalle condizioni legali e dal programma dei bisogni. Questo programma richiedeva due cortili perché la casa si aprisse al suo interno. La casa permette il dialogo tra lo spazio esterno e lo spazio interno. Stare dentro e sembrare fuori. Soprattutto perché è una casa condominiale che permette questa soluzione.
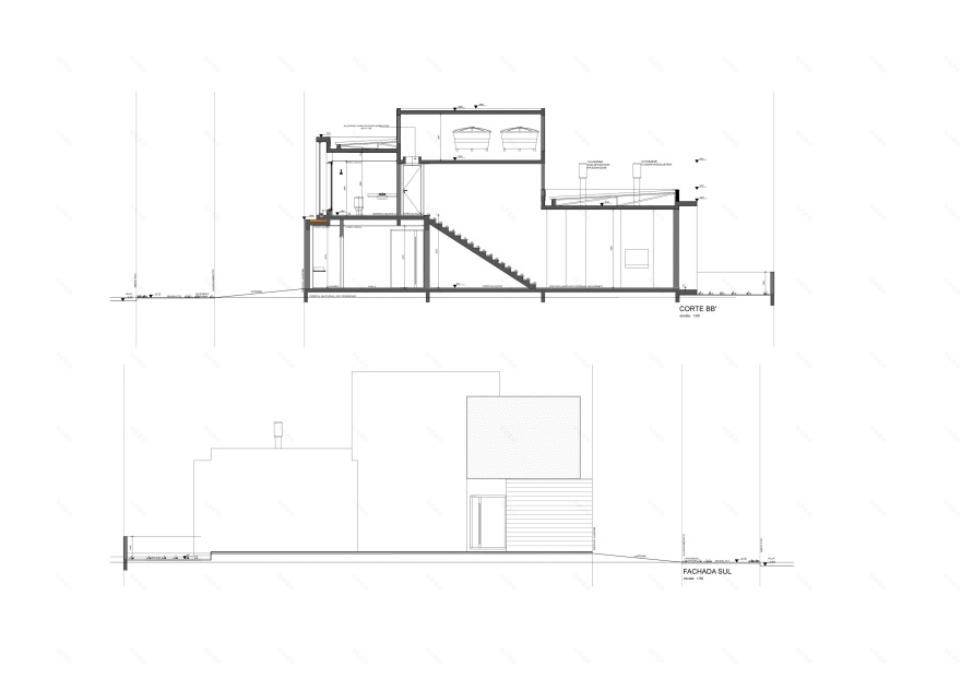
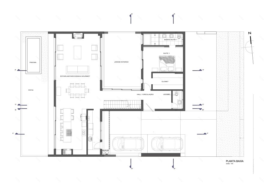
Sulla facciata principale, il volume puro delle doghe in cemento sostiene il volume lineare delle camere da letto che si nascondono dietro una brise metallica nera. Il brise si inserisce nel volume bianco che protegge e protegge le camere dal sole che sorge. All'abitazione si accede dal ricovero carri coperto da questo volume, dove l'androne indirizza l'utente nella zona retrostante l'abitazione, permettendone la scoperta lungo il percorso. Si arriva nell'area sociale integrata che è orientata a ovest e dove il sole cade tutto il pomeriggio. L'area si apre sia sul cortile interno che sul retro del terreno, dove si trova la piscina e la più incredibile vista del tramonto.
Sulla scala che conduce all'intima zona dormitorio, è presente la vegetazione del cortile interno che forma un muro verde e nasconde il muro di cinta. La tavolozza interna in toni neutri, sviluppata da Moradora e responsabile dell'intero progetto di interni e che è riuscita a creare un incredibile dialogo con l'architettura - con enfasi sulla mensola del camino rivestita in legno - unita al carattere minimalista del paesaggio esterno che include un piccolo albero di limoni, creando un'atmosfera senza pretese, confortevole e rilassata e un modo di vivere essenzialmente semplice.
Projetar uma residência é sempre um desafio que adoramos. Pensar no programa de necessidades, nos fluxos, nas articulações dos setores, na geometria dos espaços. A interpretação da alma de cada um dos moradores que ali utilizarão o espaço.
A Casa Melhado está localizada em um condomínio fechado na cidade de Estância Velha na região do Vale dos Sinos. Sua implantação, em um terreno com dimensões 16x25m, foi norteada pelos condicionantes legais e pelo programa de necessidades. Programa este que exigia dois pátios para que a casa se abrisse para o seu interior. A casa permite o dialogo entre o espaço externo e o espaço interno. Estar dentro parecendo que se está fora. Especialmente por ser uma casa de de condomínio que permite essa solução.
Na fachada principal, o volume puro do concreto ripado apoia o volume linear dos dormitórios que se escondem atrás de um brise metálico preto. O brise fica encaixado no volume branco que se sobressai e protege os dormitórios do sol nascente. O acesso da casa se dá a partir do abrigo de veículos coberto por por este volume, onde o hall direciona o usuário até a área posterior da residência, permitindo que ela seja descoberta ao longo do percurso. Chega-se na área social integrada que é orientada para oeste e onde o sol incide durante toda a tarde. A área se abre tanto para o pátio interno, como para os fundos do terreno, onde esta localizada a piscina e a vista mais incrível do pôr do sol.
Na escada que conduz à área íntima dormitórios, tem-se ao lado a vegetação do pátio interno que configura uma parede verde e esconde o muro da divisa. A paleta interna em tons neutros, desenvolvida pela Moradora e responsável por todo projeto de interiores e que conseguiu criar um diálogo incrível com a arquitetura - com destaque para a estante em painel amadeirado da lareira - aliada ao caráter minimalista do paisagismo externo que inclui um pequeno limoeiro, construindo um clima despretensioso, confortável e descontraído dos ambientes e um jeito essencialmente simples de habitar.
客服
消息
收藏
下载
最近






































