查看完整案例


收藏

下载
当代建造语境下的时代感,是对传统装饰语汇的反思和辨析。
方案秉承着传统精神的当代构建为核心理念,尊重形式因循功能的设计原则。方案尝试重构功能界面的过渡与转承的形式,为建构当下空间功能的界限抛砖引玉。设计者从空间的围合关系、界面的材质肌理、装饰的构成手法等方面着手,以此表达时代感的特征,渗透着如同向内的花园一般的理性和秩序。
建筑是住人的机器,住宅更是生活的安放之所。午后阳光透过庭院的栅栏,爬上水性漆的橡木饰面,拂过浅灰色的涂料,到达慵懒的客厅一角,片刻的休憩都能凝固流淌的时光,让情感的陪伴成为建筑的第二次生命。
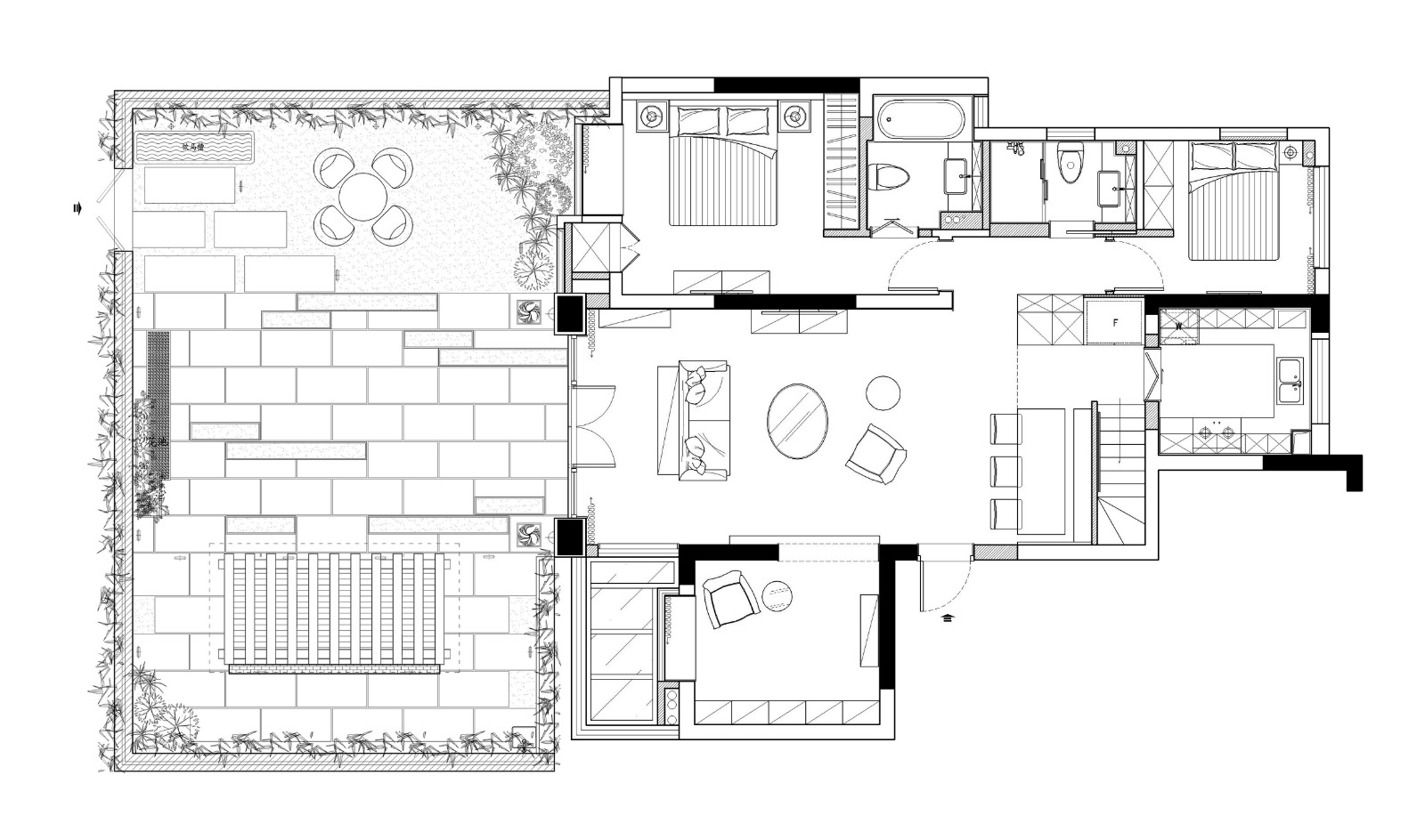
建筑面积:172.49 ㎡
项目地址:南京市奥克斯钟山府号
图摄支持:南京1017空间视觉工作室
主要材质:木饰面、日本木纹壁纸、艺术地坪、进口乳胶漆涂料、芝麻黑石材
东南大学建筑学院硕士研究生 中国传媒大学南广学院环境设计专业教师 江苏省室内装饰协会 理事 南京市室内设计学会(NIID)副会长 南京市室内设计学会青年设计师分会 会长 江苏省中华文化促进会非物质文化遗产工作委员会委员
2010 年 第八届中国国际室内设计双年展铜奖。 2012 年 NIID“欧神诺杯”南京室内设计大奖赛 优秀指导教师
2013 年 JSID“永隆星空间杯”江苏省青年学生室内设计竞赛 优秀指2014 年 CIID“和成新人杯”全国青年学生室内设计大赛 优秀指导教
2016 年 NIID“赛唯雅”杯南京室内设计大奖赛优秀指导教师 2017 年 获“江苏省五一创新能手”荣誉称号
2018 年 金堂奖全国优秀餐饮空间设计 2019 年 江苏省室内装饰协会授予“新锐设计师”荣誉称号
客服
消息
收藏
下载
最近

















