查看完整案例


收藏

下载
“悠闲无法刻意去创造,而需要靠心去感受,因为,悠闲是一种心灵的境界,享受生活,只有在悠闲的状态下才能完成。
在心中留一片世外桃源,对一切淡然视之,笑看成败得失,身在红尘而心在界外,以出世的心态做人,以入世的心态做事。
项目所在区域是山东乃至华北地区较为知名的海岸度假区——威海市荣成市成山头黄金海岸,天然具备海洋文明、休闲娱乐的基因和条件。
怀抱松林湖海,有着比较丰富的自然资源,一处轻松愉悦,诗情画意的安居乐业之地。
在这里我们与家人朋友踏浪而行,面朝大海春暖花开,一起度过人生中的美好时光。
风清云白,自斟自饮。与室外的风景独处 ,找属于自己的雅 。
我们都知道物件是承载记忆的最更根本的载体,客厅的软装搭配将传统中式的优雅表现的淋漓尽致,将我们每个人内心处那份鲜活而浓郁的中式文化记忆唤醒。
人间俯仰,悲欢何限,团圆如故。
餐桌上的陈设有着属于它自己的故事,不仅将它自己的个性气质完美体现,更是表达了主人现在的生活状态。家人在一起,品尝美食,其乐融融,才是我们对未来美好的向往。
象征着美好寓意的金蝉饰品同时也唤醒了儿时庭院缠着的记忆,只要有树的地方就一定有蝉鸣,它们像是大自然的音乐家一样,把歌声传递给这个世界。
人生如棋,棋如人生。名利似纸张轻,世事如棋局局新。
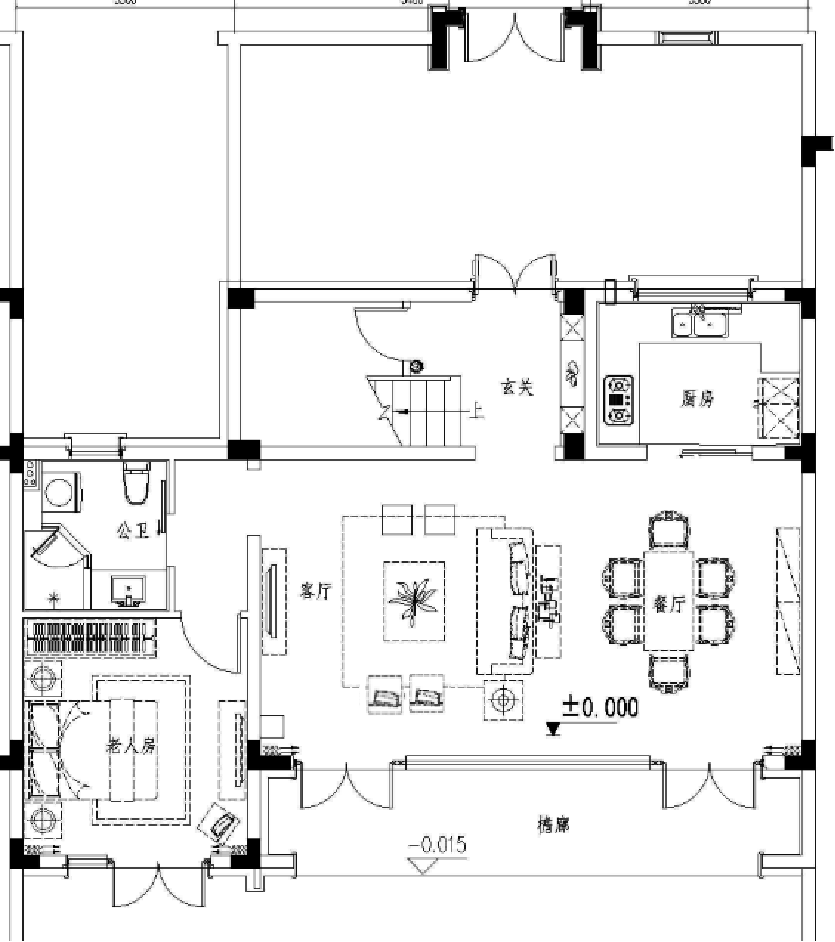
一层父母房是以围棋元素为主,把悠闲的氛围通过在你我两人的对弈场景而体现出来。空间的细节更均彰显出浓浓的情调,具有泼墨画面感的地毯为此空间更是平添了些许禅意.........
水雾萦绕的夜晚,伴一曲古典乐,品的是茶,静的是心,悟的是人生,涤的是灵魂。
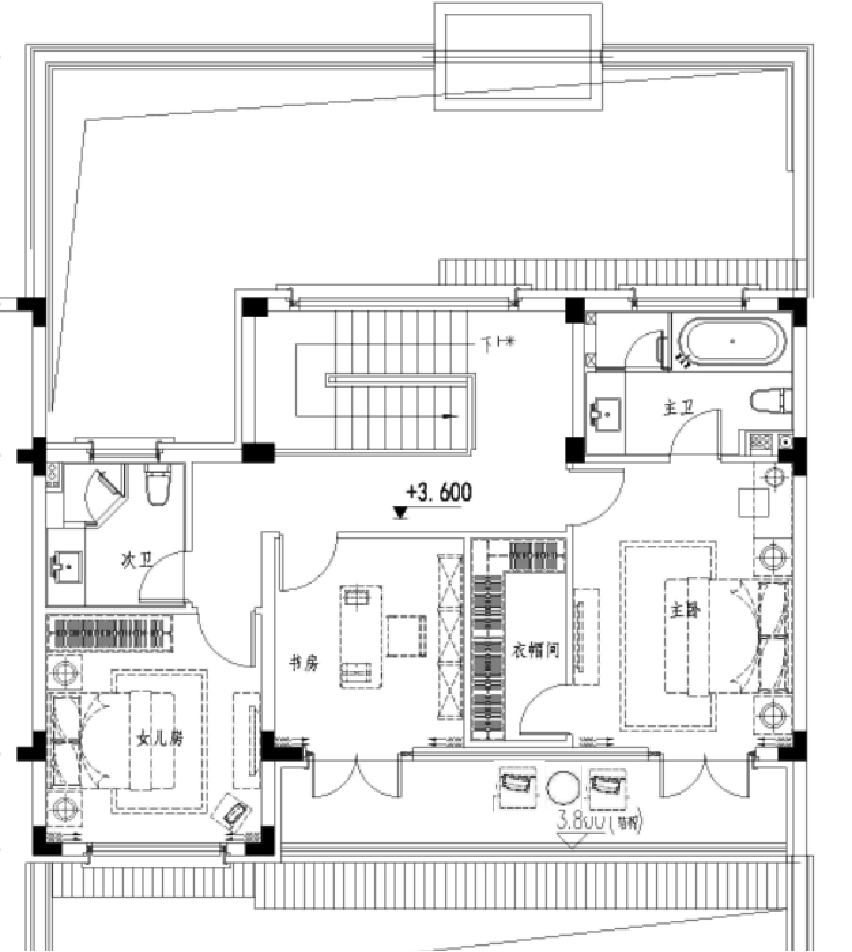
主卧室以绿色之境结合品茶之乐趣,构建场景,把悠闲的氛围通过眼前的物品营造出来,让懂生活的人,更加享受生活。
其中梳妆台便是日常仪式的出发点,美好生活的开始也发生于此,桌面上的首饰作品赋予了整个空间精致的艺术品味。
谁抱琵琶凉月里,为君弹作断肠声。
女孩房一改往日的童趣,设计师在此更想表达的是一种相思情怀,少女的爱慕之情。好一句:“谁抱琵琶凉月里,为君弹作断肠声” 大概一切唯有自己手中的琵琶能明了......
书法里融入了儒家的坚毅,果敢和进取,也蕴涵了老庄的虚淡,散远和沉静闲适。
在居住场所中人的感受是最为重要的,整体的空间氛围营造不仅要符合项目的人群定位,同时也要挖掘更深一层的的寓意。此方案希望在承袭传统文化的基础上 ,用现代的手法巧妙地将东方意美表达出来,唤起我们内心深处对传统美,对自由和悠闲的向往。
项目名称:威海蓝城·春风海岸样板间
主案设计:刘婉琳、韩波、陈静
发布日期:2019.08.09
开发单位:济南城建集团威海福仁置业有限公司
软装设计:香港IN HOUSE装饰设计有限公司
软装陈设:香港IN HOUSE装饰设计有限公司
用地面积:项目总用地面积为46867㎡
项目规模(总建筑面积):总建筑面积392592㎡
素雅 人文 精致 新中式 禅意
客服
消息
收藏
下载
最近



































