知末
知末
创作上传
VIP
收藏下载
登录 | 注册有礼

海阔独立设计工作室首发丨金科金辉美院

2019/11/13 08:25:00
查看完整案例
微信扫一扫
收藏
下载
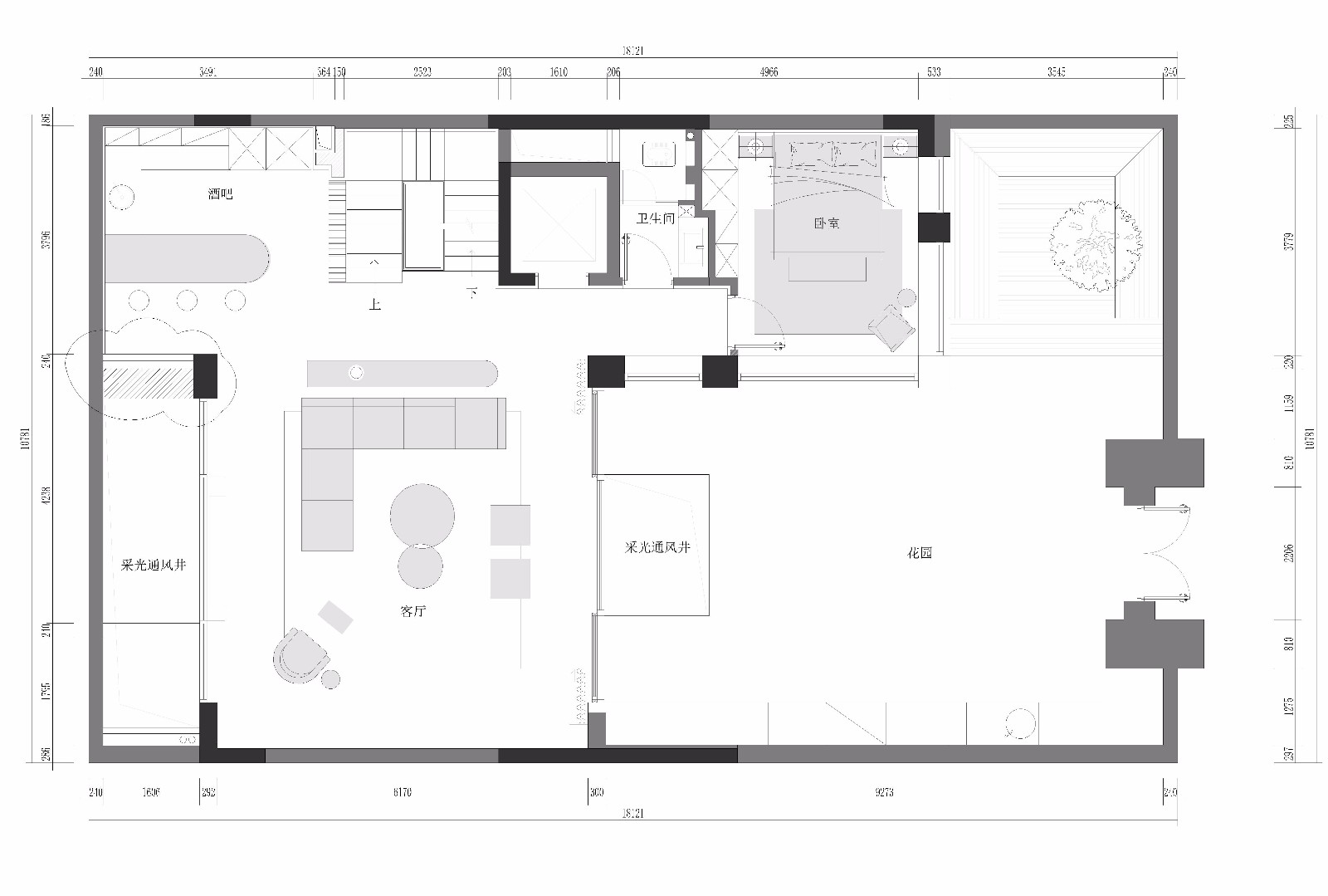
将空间化整为零,把琐碎的空间整合到一起增加了整个空间的开阔度及采光,在满足业主居住功能的前提下减掉一切不必要的装饰语言将简约融入整个空间及结构,从内而外表达设计师想要传达的设计语言
海阔独立设计工作室首发丨金科金辉美院-1
海阔独立设计工作室首发丨金科金辉美院-2
海阔独立设计工作室首发丨金科金辉美院-3
海阔独立设计工作室首发丨金科金辉美院-4
海阔独立设计工作室首发丨金科金辉美院-5
海阔独立设计工作室首发丨金科金辉美院-6
海阔独立设计工作室首发丨金科金辉美院-7
海阔独立设计工作室首发丨金科金辉美院-8
海阔独立设计工作室首发丨金科金辉美院-9
海阔独立设计工作室首发丨金科金辉美院-10
海阔独立设计工作室首发丨金科金辉美院-11
海阔独立设计工作室首发丨金科金辉美院-12
海阔独立设计工作室首发丨金科金辉美院-13
海阔独立设计工作室首发丨金科金辉美院-14
海阔独立设计工作室首发丨金科金辉美院-15
海阔独立设计工作室首发丨金科金辉美院-16
南京喵熊网络科技有限公司 苏ICP备18050492号-4知末 © 2018—2020 . All photos and trademark graphics are copyrighted by their owners.增值电信业务经营许可证(ICP)苏B2-20201444苏公网安备 32011302321234号
客服
消息
收藏
下载
最近