查看完整案例

收藏

下载
所谓幸福的生活,必然是指安静的生活,原因是只有在安静的气氛中,才能够产生真正的人生乐趣。
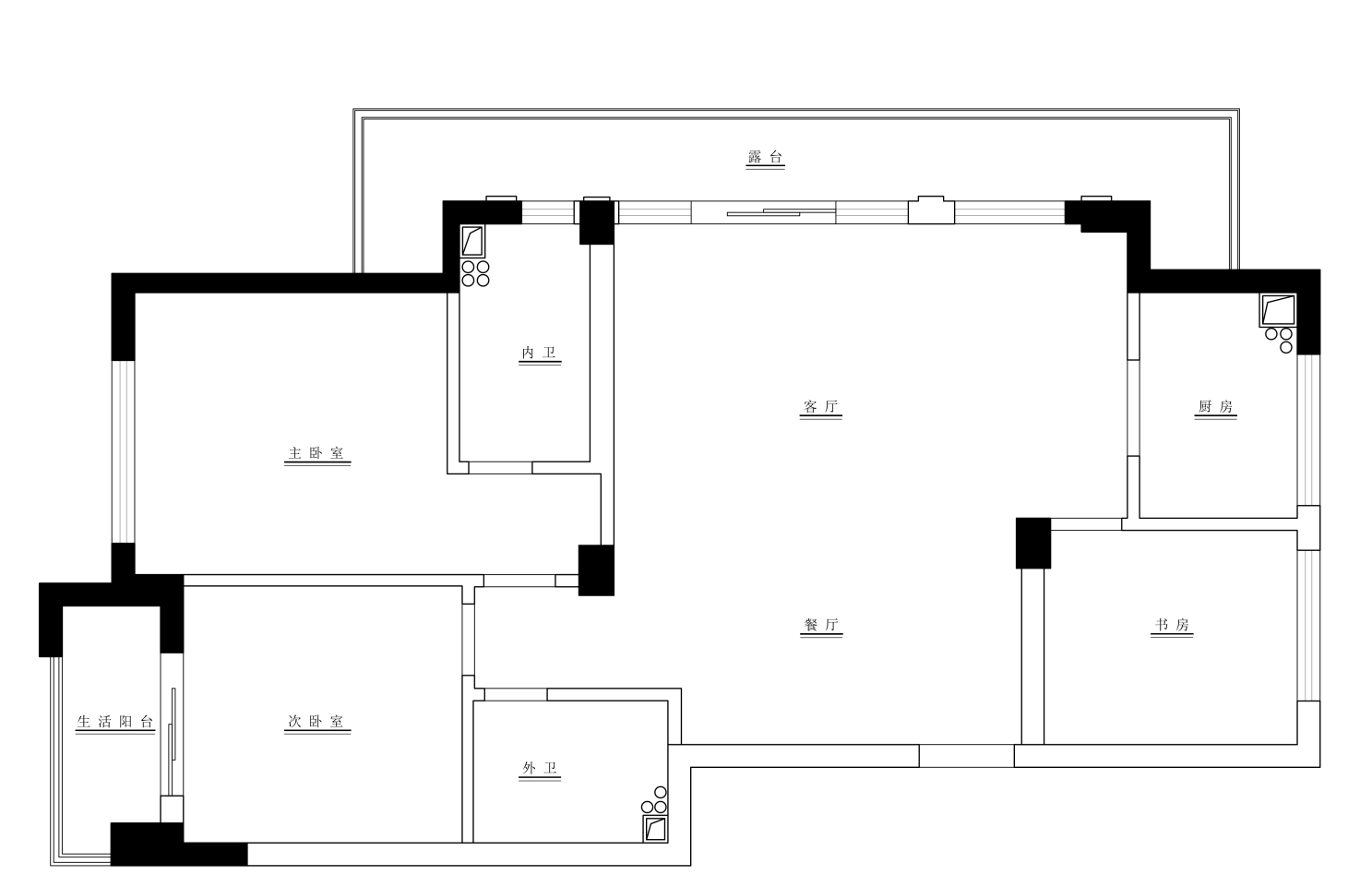
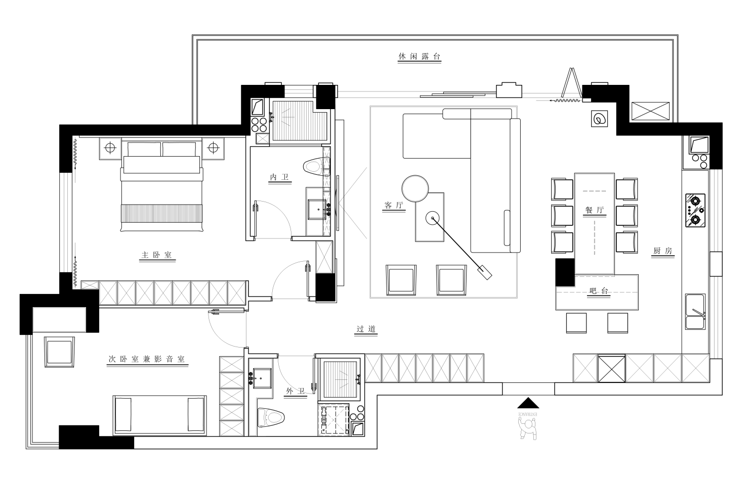
此次项目平面设计开始,打破传统的功能单一的模块化空间分布,重新定义了一个全新的空间秩序。我们希望将所有的日常动态活动全部集中在全开放式的客餐厅大空间内,保留卧室及次卧的静态功能,形成一动一静的两个空间转换。
屋主是一对年轻的新婚夫妇,故在次卧原始功能保留的基础上,亦成为了两人的书房兼影音室,丰富增添了空间的其他功能。
客厅区域,更换客厅通向露台的原始门窗格局,呈现开阔视野的同时,获得双倍的采光和景致。
全开放式客餐厅,良好的采光,也让屋主在这个空间里,具有更开阔的视野和更好的流通性,承重立柱以灰色镜面围覆,让空间更加通透,同时形成的黑白灰颜色对比,使空间层次感更加丰富多变,厨房操作也显得舒适自在。
主卧空间,同样延续黑白灰及从简元素,我们希望呈现的空间,简约不多余,干净不复杂,房子可以不必是豪宅,但既然是心灵的港湾,它一定得让你找到平静和舒适。
拥有书房兼影音室的次卧,能够让喜爱阅读的屋主,在午后的阳光里,慵懒惬意的享受时光与景致。
Key words:黑白、极简、线条、全开放式、平静空间、生活方式
空间特点:全开放式、动静划分
愈简约,愈能看出事物本身的本相。
完工时间:2019年10月
现代 简约 住宅 黑白
客服
消息
收藏
下载
最近




























