查看完整案例


收藏

下载
年轻人永远是社会的希望和文化的风向标。新时代之下,他们思想独立,个性鲜明,锐意创新,在空间形态中尽诉着自己的审美。
江西南昌作为昔日孕育“红色”的重地,其老城区也与时俱进,展露出年轻、新潮的一面——江旅·都市方舟营销中心,作为该地区唯一的24小时商业综合体项目的集中体现,更能彰显昂扬朝气的面貌。上海孚曼设计运用大面积的灰色基调,在纯净利落的背景下加入铜色不锈钢构建内部空间的雏形,细节处辅以不同的新材料,让那抹代表着火热的红色,拥有跳脱与时尚的活力舞台。
营销中心的前厅狭长,灰白色的主色调令空间轻盈别致。前台布置简洁凝练,借助镜面延展了视野,穿孔铝板及变色灯带幻变出渐变效果。现代主义意蕴的滴水雕塑,凝固了最有张力的瞬间,提升了整个门厅的艺术趣味。
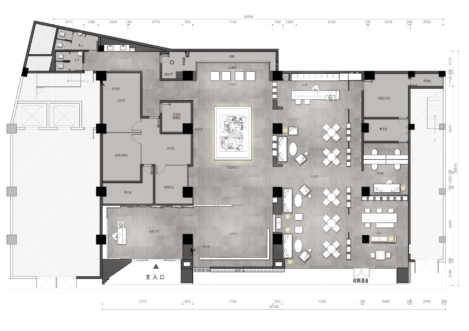
穿过门厅,售楼部内1门厅 3开间的空间结构,功能布局各有其所。空间元素层层递进,装饰化繁为简,响应年轻人追求简洁、极致的审美诉求。
延续前厅灰白色的主色调,沙盘区上空的天花别出心裁。三层递减的内嵌式设计,令视觉随之向上延伸,也使得艺术吊灯即使在静止的状态下也恍若起伏流动。一扇铜色不锈钢置物架有着金属的冷艳,兼作隔断,更添现代轻奢的审美意趣。
洽谈区最是浓墨重彩。亚克力板染上大面块的红白渐变,创造出若隐若现的效果。点缀以数个红色雕塑,宛如丛丛焰火乍现。梨红色的家具压暗一个色调,为洽谈区形成丰富的视觉层次;光滑的镜面以及延续其中的黄铜金属,恰到好处地平衡洽谈区色彩的浓度。
现代感强烈且大胆的装饰手法使这片红艳在灰白色衬托下对比强烈,唤起人们潜意识中的“热度”的渴望和追求,渲染出富有感染力的兴奋。年轻,永远热切地投入,永远无惧挑战边界,永远在探索创造的可能。
后场的茶室和收银区中,红色仍在流转。借用隔断,茶室一分为二;偏中式风格的一端保留了灰白 黄铜的搭配,与沙盘区的色彩调性相似,回归了舒缓的氛围,从而创造了前呼后应的色彩节奏。
而靠近落地玻璃窗的一侧则被注入了现代简约美学的气息。茶几的造型独特,水纹状的金属片静置在亚克力主体之中,流动的趋势凝固于刹那之间,艺术感油然而生;橙红色的真皮单人沙发相对而立,在明媚光线下泛着温润的光泽,耐人寻味。
一抹出挑的红色,赋予空间勃勃的生气;青春火热,以简练的手法和元素创造丰富的空间体验,设计令传统的售楼部也迸发出年轻的活力,也为这片老区埋下了破旧立新的火种。
项目名称│江旅都市方舟营销中心
甲方信息│江西旅游开发有限责任公司
设计公司│上海孚曼室内设计咨询有限公司
设计团队│汪玄海、唐宇、杨海兵
完工时间│2019年10月
关于F.M.Design
上海孚曼室内设计咨询有限公司是一家专注于室内设计、软装工程、设计咨询服务的专业设计机构,公司业务涵盖地产售楼处、样板间、会所、连锁酒店、办公空间、别墅、住宅等设计领域。公司致力于打造高水平的设计产品和提供高质量的设计服务;我们有着稳固的设计基础和设计管理规范,对设计充满热爱和激情,相信设计会创造未来,我们明白团队的精心策划能够带来真正的品质非凡。 “创新、自律、勤奋、执着”,相信我们一定会为每位业主提供更加优质有效的设计服务……
现代 售楼处 精致 红色 简洁
客服
消息
收藏
下载
最近


























