查看完整案例


收藏

下载
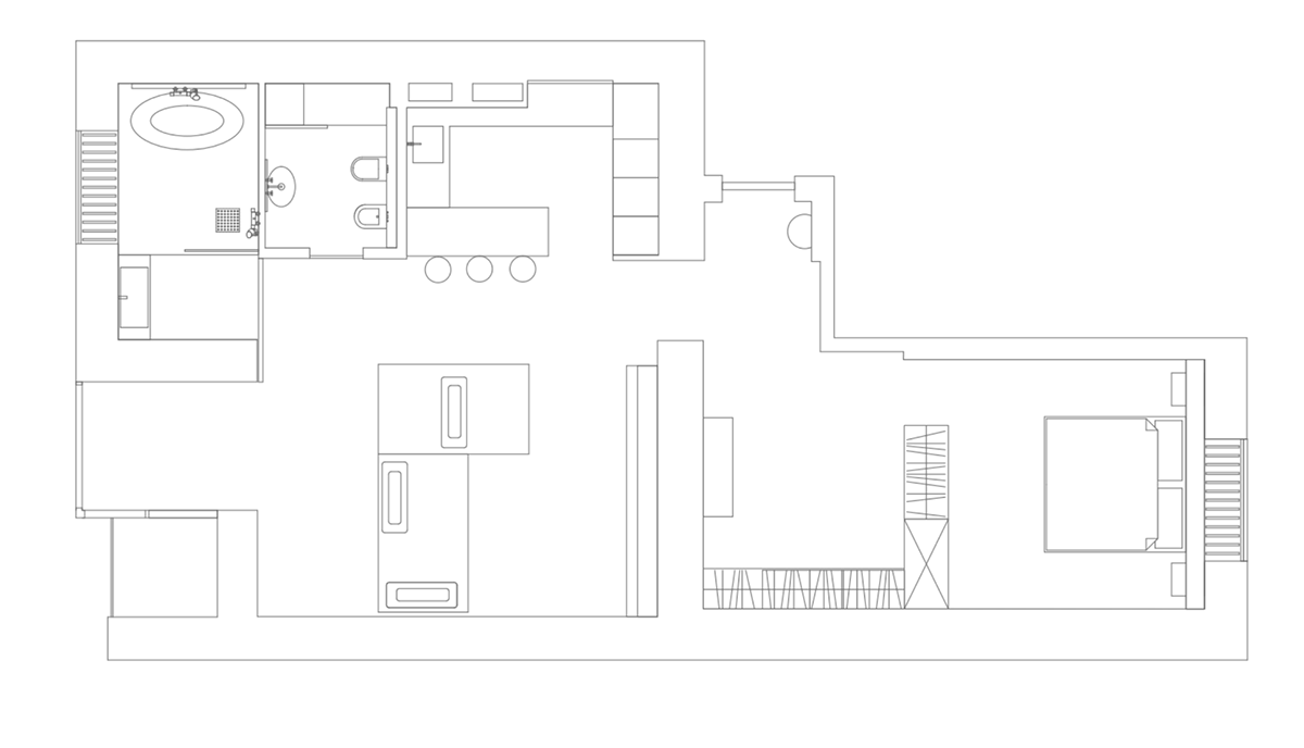
Rina Lovko设计的这套78㎡的一居室住宅,轻巧的利用简单色彩,让空间变得质感且活力,空间利用蓝与木色的点缀,让生活充满惬意与温暖。
灰白色基调感觉很干净,室内木制元素的运用又是另一种舒适感,卧室和衣帽间用玻璃柜分割的设计不错,空间布局很赞,也不会觉得杂乱。
客厅灰色的沙发搭配绿色的小边桌,优雅,质感无比美丽,超强大的多功能墙,把空调系统、生物壁炉、家庭影院(音响设备和投影仪)、收纳柜和灯光全部容纳到一起!
巨大的落地玻璃让窗外的美景与阳光洒入室内,让灰色的沙发与木色的餐椅都显得更加柔和,原木餐桌,新鲜的绿植,所有的家饰都在尽力融入这个自然祥和的空间内
卧室以白色材质搭配温润的木质元素,展现出最为自然本真的轻松状态。
衣帽间运用了大面积的原木色系,整面的木质衣柜搭配灯光,自然非凡,精致的气韵在此间静谧地生长,让内心得以片刻的安放与升华。
卫生间的设计设计师通过白色为主,蓝色的点缀,既扩大了视觉空间又与整个风格十分搭调。
Rina Lovko其他设计
by Rina Lovko
Rina Lovko 为一间公寓提供的室内设计方案。
公寓的落地窗,可以随时俯瞰德尼伯河美景。
电视两旁的展示架为这面墙增添了活力。
开放式厨房和餐厅合并在一起,方便一家人边看电视边用餐。
by Rina Lovko
设计师Rina Lovko完成了一座70平米面积的公寓改造项目,屋主有许多“矛盾”的想法,他既希望空间是纯净简约的,又希望家中可以丰富有趣,最终设计师以色彩作为平衡其中的关键元素,室内每一处都有亮点,却又维持着整体的和谐。
by Rina Lovko
色彩在设计中,起到了十分重要的作用,屋主热爱热情饱满的红色,他希望家里的红是充满活力的,也希望它是灵动优雅的,既希望红色可以与周围色彩融为一体,又希望它鲜明独立,这样矛盾却有趣的想法被Rina Lovko一一实现。
客服
消息
收藏
下载
最近













































































