查看完整案例


收藏

下载

附件

翻译
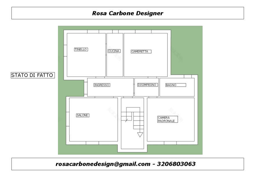
Progetto per Ristrutturazione di un appartamento degli anni 70 nel comune di Miggiano provincia di Lecce, a cura dell'interio design Rosa Carbone.
Il progetto prevede opere murarie per creare un living open space e la redistribuzione degli spazi per recuperare un'armadiatura all'interno del corridoio e la cabina armadio nella camera da letto.
Progetto illuminotecnico.
Preventivi arredo.
客服
消息
收藏
下载
最近













