查看完整案例

收藏

下载

翻译
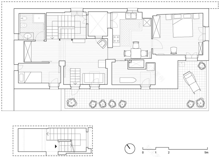
Appartamento Attico nel centro storico di Genova, in stile informale, con terrazza sulla copertura dell’edificio.
Luogo: Genova
Anno: 2016
Design Team: Alessandro Eletto, Simona Basili
Superficie: 90 mq
Stato: realizzato
客服
消息
收藏
下载
最近




















