查看完整案例


收藏

下载

翻译
Villa
Santa Maria di Castellabate (SA)
2015-16
Studio Elt- Progetto e Direzione Lavori Architetto Stefano Esposito
Una coppia di giovani sposi, lui italiano lei indiana, ereditano dalla famiglia una villa a Santa Maria di Castellabate.
I due vivono stabilmente a Londra. La villa rappresenta il buen retiro dove trascorrere le vacanze con amici e parenti.
L’edificio è degli anni settanta e l’intervento di recupero ed allestimento degli interni ha lasciato invariata la scatola esterna.
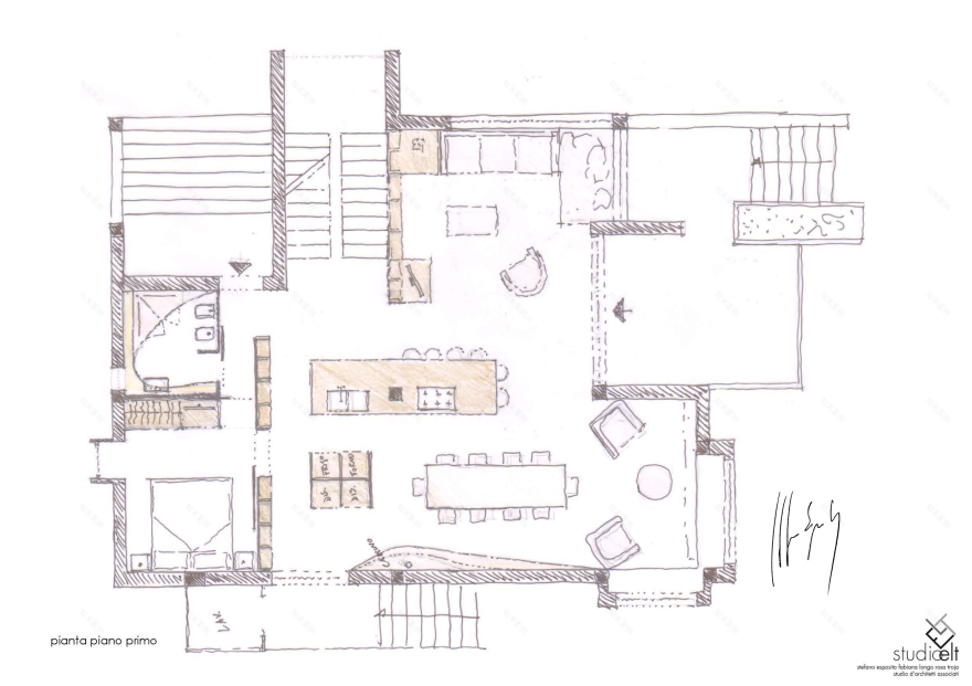
Spazi aperti, costellati di “lanterne” definiscono gli ambienti sia al piano terra che al primo.
Il banco cucina è allestito come un fulcro intorno al quale si muovono l’area sofà dedicata al relax e il grande tavolo da pranzo.
Il blocco per gli elettrodomestici è chiuso da un “cappello” che di sera si illumina così come gli ambienti di servizio al primo piano. Una scala alloggiata tra la vetrata panoramica e la parte più privata della villa si snoda tra il grigio scuro, il giallo e il blu.
Finestre come piccoli affacci verso la vetrata fanno entrare luce naturale dentro una delle stanze da letto.
La villa è circondata da un bel giardino e dalla terrazza si scorge il mare.
A young married couple, he Italian she Indian, inherit a villa in Santa Maria di Castellabate.
The two live permanently in London. The villa represents the buen retiro where to spend the holidays with friends and family.
The villa has been built in the seventies and the restoration work and fitting out of the interior has left the building unchanged.
Open spaces, dotted with "lanterns" define both spaces on the ground floor and on first floor.
The kitchen counter is set up as a fulcrum around which there are the sofa area dedicated to relax and the large dining table.
The block for the appliances is closed by a "hat" and at evening hour lights as well as the service areas on the first floor.
A staircase housed between the panoramic windows and the most private part of the villa is drawn through the dark gray, yellow, blue and white.
A sort of small window faces the big window on the garden bringing natural light into one of the bedrooms.
The villa is surrounded by a beautiful garden and from terrace you can see the sea.
客服
消息
收藏
下载
最近

























