查看完整案例


收藏

下载
城市边界 ,设计方希望从这个点出发,深入探讨YOGA和人的关系 。城市化和科技发展的速度加快,每个人彼此对外或对内都有边界的存在、最理想的空间应该是打破边界让人与自然相互粘黏 。将重点转移到触觉和感官体验上,将精神 、肉体 和灵魂 三个元素纳入设计中。使人可以在空间里进行内向的、仅针对自己的思考 。设计采用了很原生态的材质去表达空间的情感。将夯土、水泥试图驯服、引用到室内表皮。形态上则用 亼屮 的建筑构架对空间进行二次构建 。这种遵循本能的空间设计令使用者能够摆脱矫饰,自发地对周围环境做出反应。
愈创木,我们在设计这个空间的最初,先去考虑了很多内容,做这件事情的初衷和愿景,我们希望能够把真实状态的瑜伽表达出来。呼吸 、 自然 、 肢体与空间的对话。我们希望挖掘人内心深处的对一个自然空间的渴望。
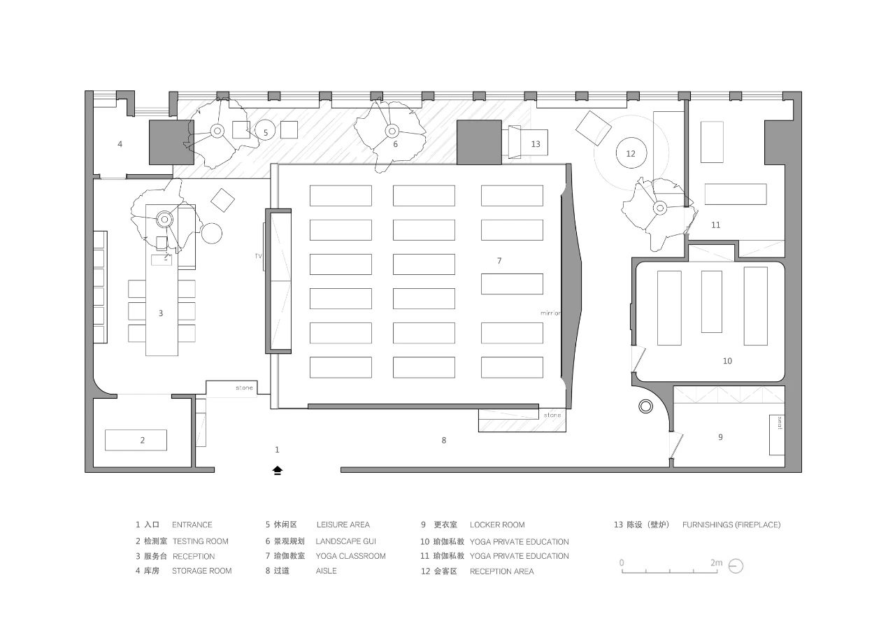
因此我们将室内空间打破,首先在大的格局上分出了景观区域、户外廊道和室内建筑。希望人们在活动过程中对瑜伽的体验不拘泥于室内、更加真实。
在空间中我们做了很多的功能区,除了瑜伽我们也为体验者提供了很多服务、休憩、服饰、茶饮、视屏观影、通过五感的体验产生第六感,情感 。
进门处的外立面,通过户外肌理的表达自然与放松 、用大颗粒的做旧墙面体现出时间的痕迹。
室内大面积的墙面也是延续外部墙面,做旧,延续这种放松感和时间的痕迹,但更加细腻。
入口正对面是休闲等候区域,我们希望大家没有违和感,可以坐到一起交流沟通情感、探讨共同有兴趣的话题、桌面设计是有一棵树生长出来的。希望有一种植物的包裹感。
瑜伽大教室整个设计我们把它表达成了一个建筑房屋,用最原始的房屋构架的方式、夯土为墙。砖红色的夯土渗透出泥土的气息。包括所有配合呈现户外的石头,我们都选择了和夯土色接近的千层岩。希望空间气质一气呵成。
最里面的区域就是vip的休闲区,这里我们可以在做完瑜伽之后安静的休息,听音乐、喝茶水、吃点心、读书 、思考。整理出一片相对安静的独立空间。墙面的装饰画设计师希望不用传统的绘画来表达,而是用一张纸,没有颜色的纸通过形态和光影去表达,就像人的肢体,当前抛弃掉所有外在的装饰,身体本身的形态美,同样也是愈创木要追求的。
更衣室 vip 房间 我们希望把它当成一个建筑去对待,将亼屮 (ji cao )这种传统房屋的建筑结构引入到室内空间。墙面和顶面是完整的形态,从屋顶往上延伸,我们模拟出了屋顶的天窗,自然光洒进房屋内部的状态。这种状态很自然 很连贯。
项目名称:愈创木YOGA
项目地点:山西省太原市
设计公司:HOOOLD设计
设计团队:韩磊 孙志伟 要子恩
设计时间:2019年10月
完工时间:2020 年1月
项目主材:夯土 水泥 水磨石
从 HOOOLD 设计成立以来,一直专注空间设计本质,致力于探索研究人与空间的关系,挖掘设计跨界可能性、人与建筑与外部空间的关系,我们提倡空间要有故事性,材料要有生命力. 讲究设计的角色性,任何时候空间的室内外生活都比空间本身更根本 。
CIID中国建筑学会室内设计会员
2009—2013年毕业于西安建筑科技大学艺术设计专业
庐山手绘训练营学习、米兰理工大学深造学习
2015—2016年 深圳设计事务所工作 任职首席设计师
2017 年创办砼筑设计事务所
设计不仅仅是玩弄色彩造型风格 更要赋予一种时代温度和文化内涵
2019法国双面神GPDP AWARD国际设计大奖 商展空间 金奖
2019年荣获“金外滩”最具商业价值金奖
2018年荣获“natuzzi全国TOP10 ”设计师
2018年荣获“居然设计家杯”最具商业价值金奖
2018年荣获“山西省设计年度人物精英设计师”称号
2018年荣获“亚太空间设计最具影响力设计师”称号
2018年荣获“中国(山西)年度精英设计师”称号
2018年荣获“第八届意大利米兰筑巢奖”商业空间专业组 银奖
2017年荣获“居然设计家杯”家居设计大赛材料应用设计优秀奖
2017年荣获“居然顶层杯”最具商业空间价值奖 金奖
·2016年 荣获 “居然顶层杯”山西室内设计大赛 住宅空间设计一等奖
·2016年 荣获 筑巢奖 商业空间优秀奖
《中国国际室内设计年鉴》
客服
消息
收藏
下载
最近





























