查看完整案例


收藏

下载
生活在拥挤的都市中,距离自然绿意总是太遥远?不如在自家屋顶盖一座公园!越南建筑事务所MDA architecture意识到城市中建筑屋顶使用率低,因此提出「露台公园」想法,缩短都市人与公园间距离。
房子的设计是基于业主的愿望:
既是一个周末休闲的宁静场所,又是一个充满绿色、光线和绝对隐私的区域。
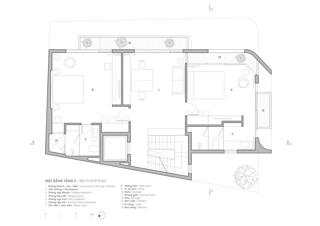
因此,设计团队决定采用分层的方式将房子分成两个部分,既创造了私密性,也优化入口内部的空间。
由于很多活动和移动都发生在这个区域,所以每个阳台和每组楼梯都是特别定制的。
每层楼之间的不同性,避免了人的重复行走,最大限度地提高了空间利用率。
错落的房间皆向外砌筑一处红砖阳台,将之化身巨型花盆,使绿意得以覆盖室内,渲染舒心无压的居家环境。
MDA architecture
T房屋是一种以“隐藏入口”功能而闻名的房屋设计类型,MDA architecture为3代家庭设计和定制的。
该房屋位于西贡一条小巷的T形接合处,有厚厚的篱笆层,可防止繁忙的街道上产生不必要的噪音,而木板墙则巧妙地隐藏了门系统。
房子现在位于两个不同的院子之间。
这种额外的正面为家庭成员创造了一个额外的空间,使他们可以在房子外面进行有趣的活动。
个人隐私是重中之重,因此房子内不得放置庭院或空隙。
相反,所有空间都被带到外面。
公用空间,例如起居室,厨房和图书馆,其专用于房屋左侧的主庭院和阳台,在此处充分发挥了生态互动作用。
客服
消息
收藏
下载
最近















































