查看完整案例

收藏

下载
01.
Every cloud has a silver lining.每朵云都镶着一条银边。
用自然的曲线勾出云的轮廓,搭配现代、时尚新体验的售楼处空间型态,颠覆传统思维,天花彷佛落下一朵云。
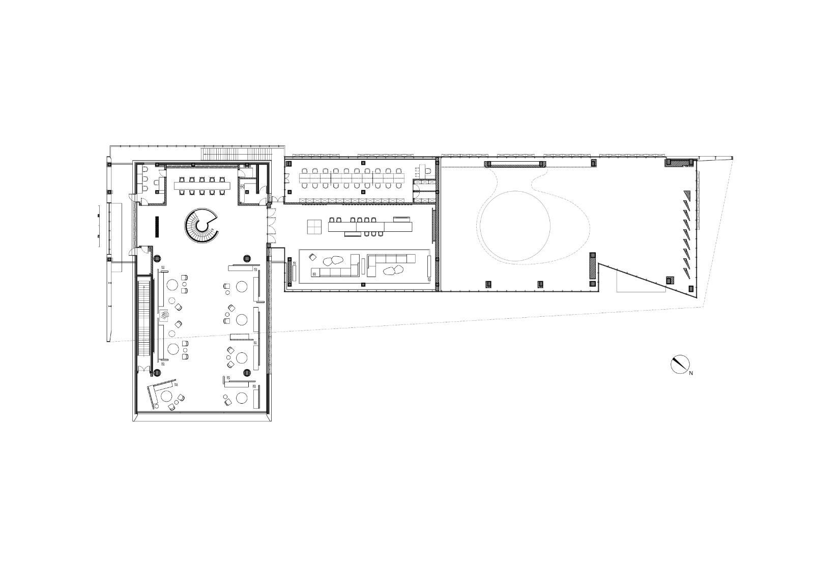
沙盘区上方云朵飘下,举重若轻的意向颠覆感官。挂盘宛如墙上浮雕画作一般体现,弱化销售商业氛围,营造美术馆一般的空间质感。02.
As a city floating on the sea level.如飘浮在海平线的一座城。
沙盘如一座发光的浮岛,将人们对生活城市的想象呈现于此。
如雕塑般的家具落于各处,进入售楼处仿佛游走于美术馆中,在开敞、大尺度中用身体亲身体验视觉与空间的吉雅达美学。
售楼处壁柱面材质选用珊瑚米黄,如海中珊瑚石类的淡雅肌理,入口大厅以9扇墙体营造序列感,让自然光线从东边进入呈现特殊角度的光影。
取自东北冬季冰雪的意向,接待台如一块冰体凿挖曲形,洁白的漂浮在薄雪之上。
开敞大气的大厅,进入室内的同时能看向端景户外景观中的雕塑,雕塑意向为一朵实体的云块,轻落在台座上,与室内沙盘上方正要落下的云朵天花意向呼应,更能将外与内融合。
洽谈区两面开敞的玻璃帷幕,一侧与户外水景相连、一侧与松石枯山水景观紧邻,户外与室内穿透感佳,仿如一体,空间透露宁静的禅意与悠闲。洽谈区端点一座旋转楼梯成为视觉焦点,引人愈往上进入上层VIP区空间。
现代的空间中引用中国长幅画轴的展开形式阐述平面布局,水平向的并列接待空间-展示沙盘-洽谈空间,更在轴线端点扭转一座旋梯,打破规矩的长轴画,下方的特殊质感雕塑灯体在背景墙的暖光衬托之下如一颗东方神秘矿石般晕出尊贵的光泽,成为视觉焦点。
03.
Light and shadow into poetry.光影成诗。旋梯往上到二楼是深度洽谈与多功能体验空间,企图创造更多元的使用性,并成为生活聚会的场所。二楼的VIP洽谈区,带有隐约婆娑树影的光膜天花,让人们宛如坐在如诗般的树荫下交谈,将自然、室外的意向引导入室内,简单的空间中有更多层次的意境。
二层VIP洽谈区以光膜天花为特点,光膜上喷绘树荫的交织,在二层室内也能拥有露天沙发座区一般的渡假氛围,也为树少的北部地区增添一点自然景观感。软装以简约的组合搭配,几合量体的简化,用最纯粹的形体建立家具与人体尺度的关系,家具形式的简洁如渡假哲学,应将生活的琐碎繁复降到最低,以足够承载身体的重量、自然呈现放松的姿态来感受。
延续一楼的雕塑与雪地白的美术馆质感,二楼体现更多的人文与放松氛围,用几何的元素组构空间细节,创造更多人与人的交谈、在多功能室准备一席长桌展现艺术的视觉飨宴。吉雅达用最接近自然的暖木色、最轻柔飘缈如云雾般的白色、带点东戴河的蓝与现代简约的建筑量体融合,打造一气呵成的轻奢海岸渡假会所。
客服
消息
收藏
下载
最近


































