查看完整案例


收藏

下载

翻译
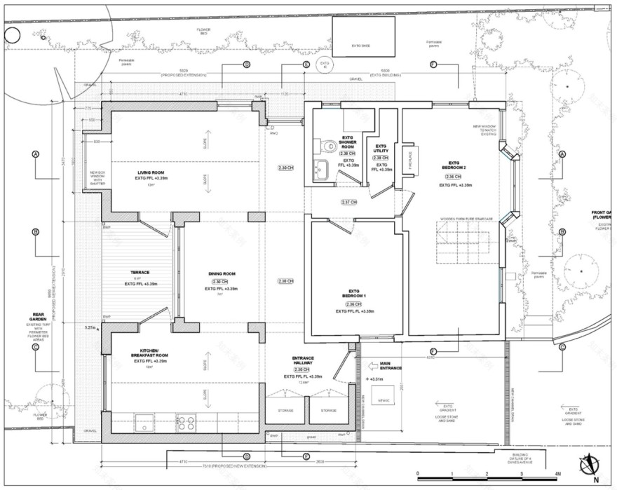
The proposal involves the demolition of the existing single-storey garage and rear conservatory extension and replaces it with the enlarged proposed single-storey side and rear extension. The principal objective of the proposed extension is to upgrade the house to create a better habitable environment for the growing family.
The main objective of our proposal is to modernise and improve the property to make it a more robust and energy-efficient building. The proposed single-storey side and the rear extension will provide additional spaces to facilitate the internal spatial reconfiguration of the property. The intention is to create a more comfortable and habitable property for the family.
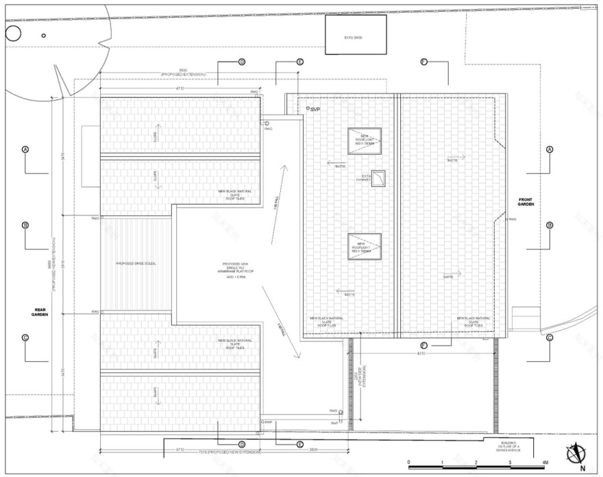
The new extension and internal layout reconfiguration will improve the connection and integrate the interior spaces to the existing rear garden, thus encourage the family to utilise the outdoor area more actively. A Roof Garden is proposed to provide a wide variety of public and private benefits such as reducing stormwater run-off and energy consumption, reducing the urban heat island effect, and improve the air quality.
客服
消息
收藏
下载
最近









