查看完整案例


收藏

下载
此次,设计师耿可佩及其团队在成都牧马山蔚蓝卡地亚展开了一场当代居住的“文艺复兴”,讲述发生在水岸城堡中的居住故事。
从车马喧嚣的都市进入墅区,湖泊倒映出一弯拱桥,是归家的过渡,人们从社会角色转换到家庭角色。从城市纷繁喧嚣的“动”转向家庭温馨暖意的“静”,建筑重新梳理人们的情绪。
01. 回归生活的本质 是一场古典主义的当代解构
大厅中精致雕刻并盛满花草的罗马科林斯石柱带来浓烈仪式感,毛痕叶和涡卷图案被刻于柱头,勾勒出空间的秩序性,隔着悠悠岁月,历史与记忆散发着莹润的光。
一楼行政会客厅运用巴洛克手法的石柱与弧线感的塑造表现中西文化的融合,空间内的美感由饰面上的纹理一层层延展开来,仿佛低语着古老的诗歌。
石柱与顶面的圆弧拱面相映成画,透过纹理铺叙光影的关系,素雅而清逸,仰面观望,圆顶恰中是一片星光,同时与空间戏剧性的张力感产生调合。壁炉焰火冉冉升腾,一切都变得轻柔优雅。
也是另一种直达内心的光
石材自然形成的纹理有着天生的独特质感,摘下拿破仑冠冕上的月桂叶撒上阳光刻入沙发,明亮清丽的淡蓝色洋溢着高级感,满是柔和、平衡的视觉舒适。
家庭厅一侧,餐厨空间充盈着日常的人间烟火气,纯粹平淡的幸福在此间缓缓流淌,静享一日三餐与天伦之乐。
回转到负一楼空间,家庭起居室更享有家人的合乐美好和生活的惬意感知,家具陈设及空间的联动营造出慵懒的气息,置身其中衬托出一份陪伴与浪漫感。
简单的幸福感,来源于一家人其乐融融的陪伴、关怀、理解。空间在满足于实用功能的前提下,同时切合居者和谐舒适的生活方式。
会客厅的轻柔窗纱被微风卷起,山脊涂上了一抹青色,镶嵌于阳光与书籍之中,满载着居住者对文化内蕴与人文精神的内在涵养。
休闲区的陈列调性将居住者对文化的沉淀和延续展现地淋漓尽致,使整个负一层空间处处流转着中国传统文化的博学与意境。
夜空中繁星与月亮舒卷涌动,进入家庭影院,幕布里是跌宕起伏的剧情,幕布外家人围坐,跟随剧情情绪起伏,或紧张或舒缓。
拾阶而上,精美繁复的储物柜与大理石拼花相映,来到开阔的二层居住空间。
悬挂在廊道与卧室之间的画作来自POSILLIPO玛瑙明珠,灵感源于地中海的宝石、玛瑙、香水的颜色,海洋的深浅阴影和海风中飞翔的蝴蝶。将精致的奢雅主义与中式的返璞归真感平衡得恰到好处,一切从这里慢了下来。
03. 合而不同的居住 是与家人共筑的理想 家人的热爱与兴趣都在居住空间中得到释放。女儿房的暖,儿子房的静,主卧的雅,在设计师的控色布局下,灵动气息与自由风格共同构筑了一个绝对符合居住者气质的生活图景。
将自然森林的色彩涂抹在少女的卧室,伊丽莎白二世的王冠染上了藕粉色,配色清新柔和。明明是色板上的对比色,却在这一方空间里相互调和,营造出一抹恰到好处的韵律美。
儿子房的暖白色调带来安静舒适的体验,冷静沉稳的蔚蓝拼接低调的淡蓝,窗外四季景致流转,透过玻璃照进室内,给空间增添了许多活力。
主卧淡雅的色调配比呈现出空间的温馨和舒适。以质朴的原木色为主调,点缀床头宝石蓝,赋予空间古典雅致的氛围感,沉稳格调不言而喻地揭示了主人的品位。
04. 文化承载岁月和美好 也肩负着历史的传承
从阁楼推门而入,古典书香气息扑面而来,书房的设计不过分强调繁复的雕刻与细节,背靠着祥云和山水组合而成的墙画,原木营造文雅诗意与深邃场景的丰富感,这里是一处独享的空间。
亲水而居、户户庭院,建筑与景观无缝相接,创造出一个和谐幽静的居住环境。树丛掩映,绿意盎然,房屋中的暖光从玻璃中漫溢而出,室内和室外的边界趋向模糊,相互借景,融为一体。
理想的居住空间,真切地为居住者带来无拘无束,舒展随心的生活!家族荣耀的背后,总有一处传世大宅。大宅作为家族最基本的物质形态与活动空间,横贯中西,阅尽历史,记录着值得传颂的家族史篇! 本案中设计师以中西贯通的灵巧构思,选用材质与色彩肌理极富质感的建筑装饰风格,在空间中构建出有生命力和传承力的古典城堡生活场景。
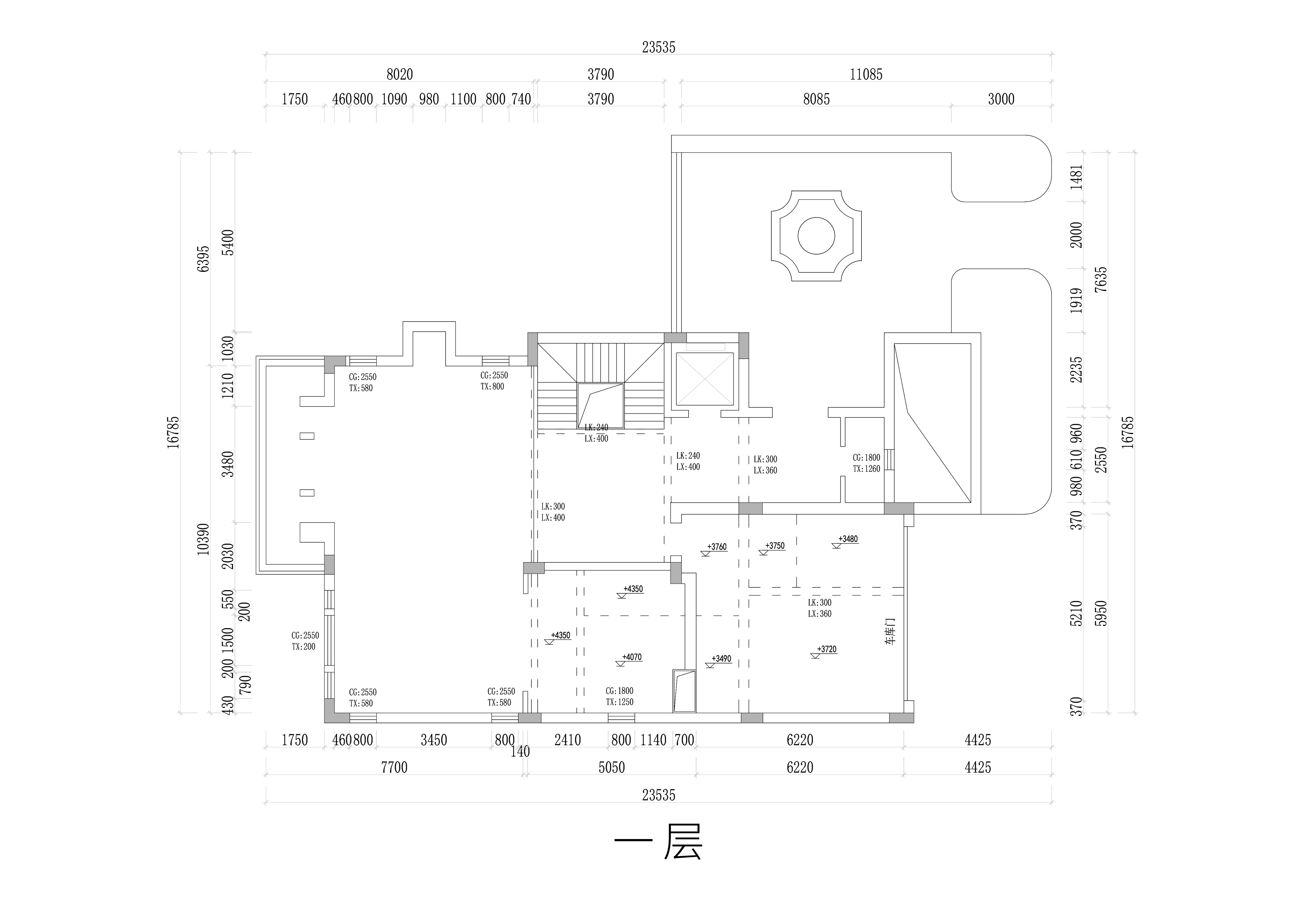
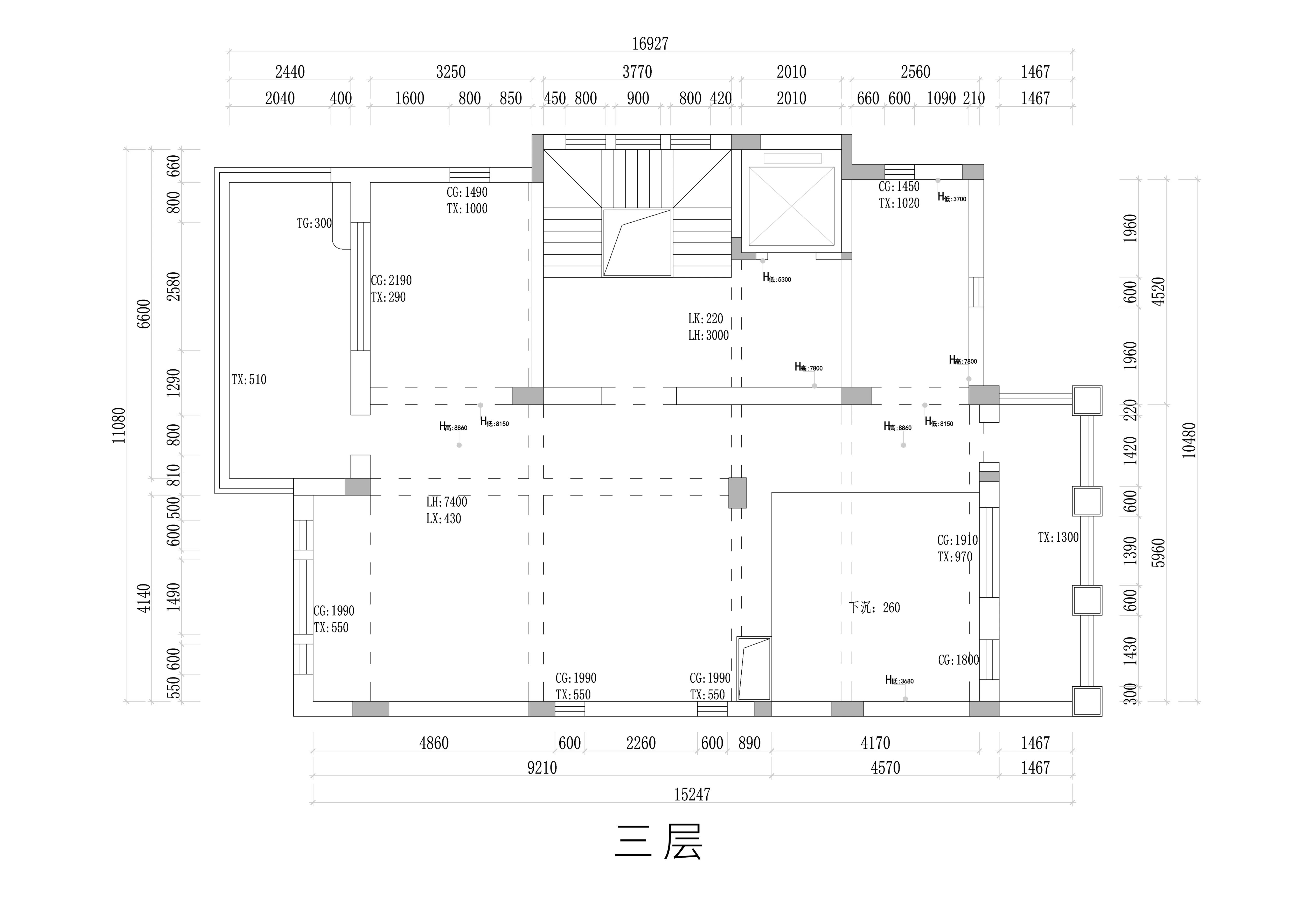
平 面 布 置 图 Interior Design Plan
客服
消息
收藏
下载
最近









































































