查看完整案例


收藏

下载
△ 咖啡厅室内一览 ©TAG
八十年代兴建的广州电池厂位于海珠老城之中,厂区在工厂停产迁出市区后,被整体改造成文化创意产业园。项目选址于原生产车间的中段部分,建筑为砖混结构,顶部以三角形木桁架覆盖出生产使用的大尺度空间。业主是一位试图逃离都市的地产白领,希望在城市中拥有一处颇具跳脱感的咖啡经营空间。
△ 咖啡厅内部 ©TAG
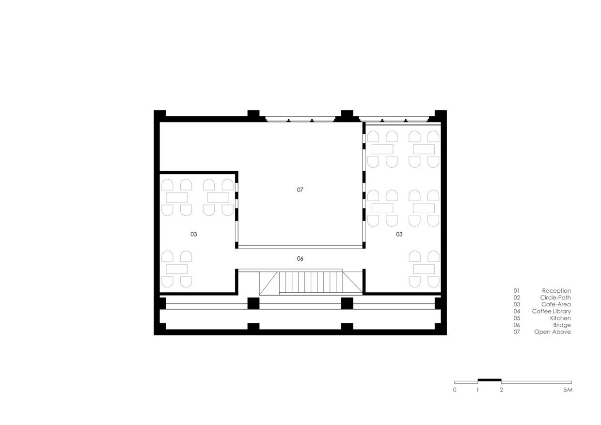
设计将原厂房的围合空间作为新空间营造的物理边界,通过钢结构夹层搭建起一座新房子,将原室内空间转化为新房子的外部环境。新房子首层架空,二层中部为通高空间,两侧为夹层咖啡空间,通过连桥相接。穿行连桥之上,可望见首层绿意盎然的自然花园、蜿蜒曲折的环形小径和点缀其中的咖啡桌椅。
△ 轴测示意图 ©TAG
△ 钢结构搭建的“新房子” ©TAG
二层咖啡空间的侧墙面向中间通高空间,设计在人站立与坐下的不同高度设置了大小各异的方形洞口,花园与夹层上下沟通,透过不同的洞口之间创造望见、一瞥、偷看的乐趣。
△ 从二层俯瞰开放的室内空间 ©TAG
△ 二层的洞口 ©TAG
△ 二层空间内部 ©TAG
设计将原车间老屋顶完整保留,以深灰色木材涂料反复喷涂,表达其构造工艺美感的同时,弱化后期加固中产生的混乱元素。固定在底部木梁上的线性光源,强化木桁架和空间跨度间的节奏感。向上投射的泛光通过明暗关系,表达木椽子和瓦片尺度细腻的韵律感。
△ 咖啡展示架 ©TAG
咖啡馆一层地面通过使用不同材质的磨石地砖切割铺设,形成一条蜿蜒曲折的不规则环形小径。绿植盆栽沿小径模拟自然,随机布置,创造在自然花园中漫步的动态体验。小径在平面中界定出不同尺度的使用空间,弱化都市效率的严谨性和规律感。体验者拨开绿植枝叶,进入自己的使用区域,区域间通过绿植视觉相隔。绿植、桌椅、落地灯构成了每个使用单元的标准元素,且可根据使用行为灵活组合调整。
△ 自然小径 ©TAG
△ 咖啡馆外立面 ©TAG
△ 一层平面图 ©TAG
△ 二层平面图 ©TAG
△ 节点大样详图 ©TAG
项目地点:广州市海珠区沙渡路TIT文创园
主创建筑师:吴冠中、汪妍泽
设计团队完整名单:崔凯宁、李悦、李雨秾、林剑博
设计时间:2021年2月—2021年4月
建设时间:2021年4月—2021年7月
建筑面积:158平方米
客服
消息
收藏
下载
最近
































