查看完整案例


收藏

下载

翻译
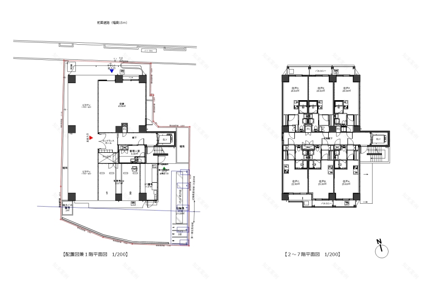
This is a case study of design for a rental apartment facing north. In Japan, it is believed that houses should face south, but on every site we can’t built like that way. There are advantages to facing north as well, such as stable natural light, solar heat reduction (cooler in summer), and forward-facing views (south-facing houses are backlit). By taking advantage of the site conditions, we thought about how to overcome the disadvantages of darkness, dampness, and coldness in the winter, and how to make it an attractive landscape.
We tried to design the north-facing balcony to be bright and airy. The cantilevered slab of the balcony does not have a reinforced concrete low wall or flashing, but instead has an eaves gutter attached to the bottom of the cantilevered slab. The handrail wall is made of folded plates with perforated metal that has brightness and transparency. It doesn’t any underlying or projection, so that allows the view and wind to pass through. The balcony handrail wall with galvanized perforated metal receives the reflected light from sunlit building on the other side of the street and looks bright. The effect of the shape of metal panel changes the expression in response to the different angles of view or the state of the sun or the night illumination.
The exterior of concrete and extruded cement panel is a rustic expression of the structure, and it has the effect of making the wall thickness thinner and increasing both the effective ratio for the owner as lender and the interior space for the resident. I aimed to create a distinctive exterior with very common materials, which is a modern interpretation of the spirit of "wabi-sabi".
客服
消息
收藏
下载
最近





























