查看完整案例


收藏

下载

翻译
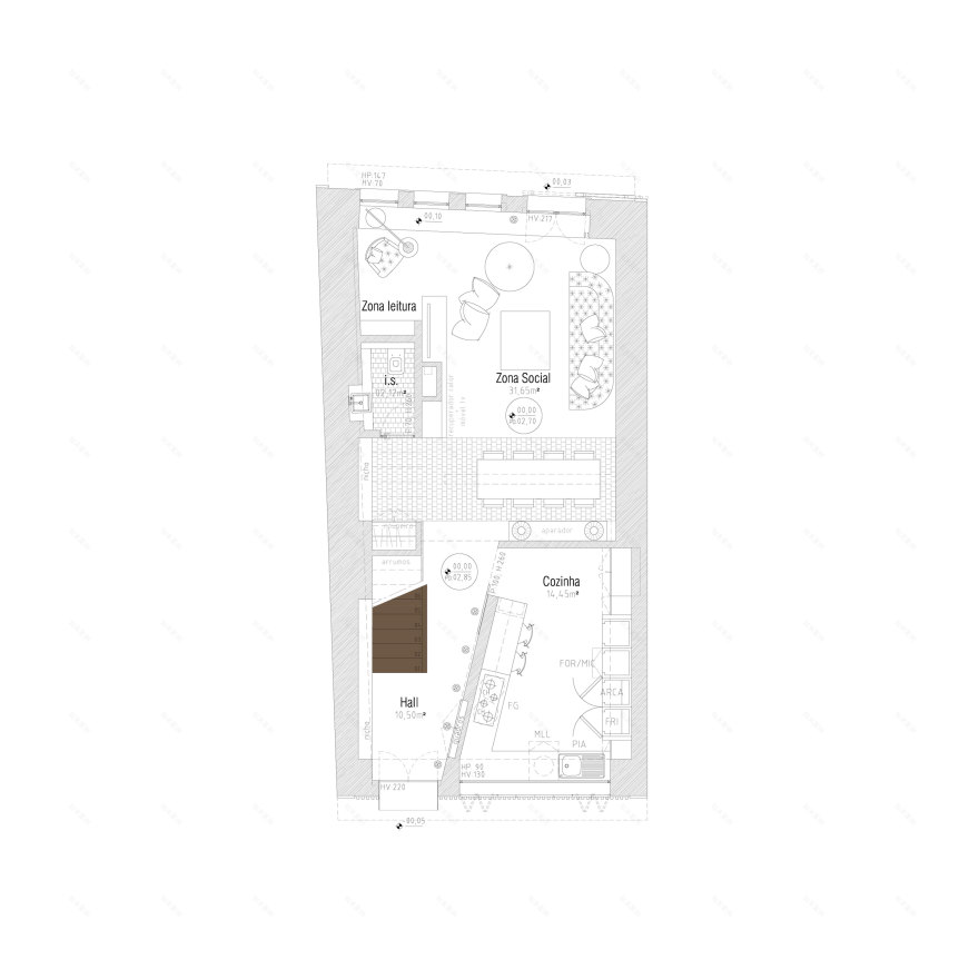
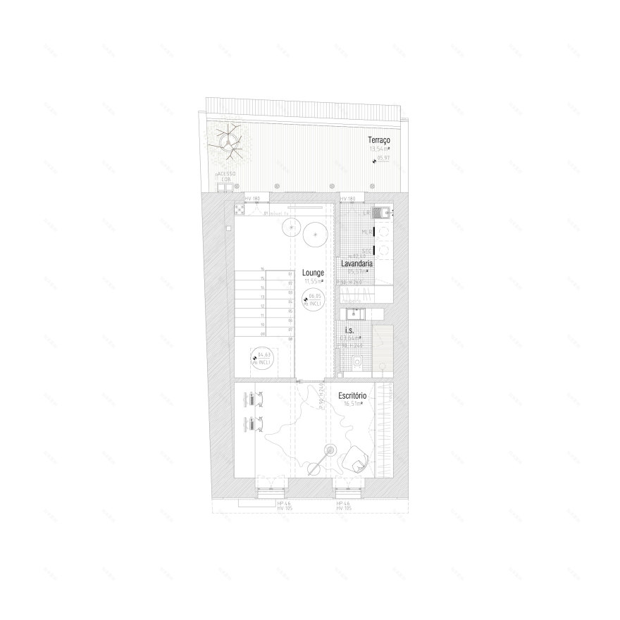
Since the 1960s, the existing building has been classified as a pension. Located in the heart of the city of Leiria - Portugal, it is part of the Historic Center and is enclosed between buildings facing two exclusively pedestrian streets. The new proposal of living for single-family housing distributes the entire program over 3 floors, where the staircase is presented as the main element, assuming the protagonist role. The exterior seeks respect for the memories of the street, maintaining the characteristics of the façades and reinforcing the care in the restoration and recovery of the elements to be conserved, applying details of the current architecture on time. It is proposed to mark the entrance with the application of a wooden slat (at the level of the pedestrian) and redefine the guards of the openings, passing from an open mesh to a bent sheet.
客服
消息
收藏
下载
最近






































